WICLINE 75 TOP - Ceinture dissimulée
Dans la variante de ceinture dissimulée du système de fenêtre en aluminium WICLINE 75 TOP, le verre est maintenu directement dans la zone de rupture thermique par une perle spéciale de vitrage. Cela donne des profils de cadre extrêmement minces qui ont d’excellentes valeurs d’isolation et des lignes de vue de cadre externe sans joint. Le rapport amélioré entre les proportions de cadre et de vitrage permet aux valeurs Uw de répondre à la norme de la maison passive et à une transmission accrue de la lumière avec vue panoramique.
Documentation
Performances techniques
System tests / CE-marked product passport according to EN 14351-1:2006+A2:2016
Perméabilité à l’air
Étanchéité à l'eau
Résistance au vent
Performance acoustique
Efforts de manœuvre
Capacité de résistance des dispositifs de sécurité
Résistance mécanique
Fonctionnement continu
Résistance à la corrosion de la quincaillerie
Anti-effraction
Assurance qualité
Class 4
E900
Class C5/B5
Rw (C;Ctr) = 46 (-1;-4) dB
Class 1
Fulfilled
Class 4
Class 3 (20 000 cycles)
Class 5
RC1N, RC2N, RC2, RC3
Certified to DIN EN ISO 9001:2008
performance technique
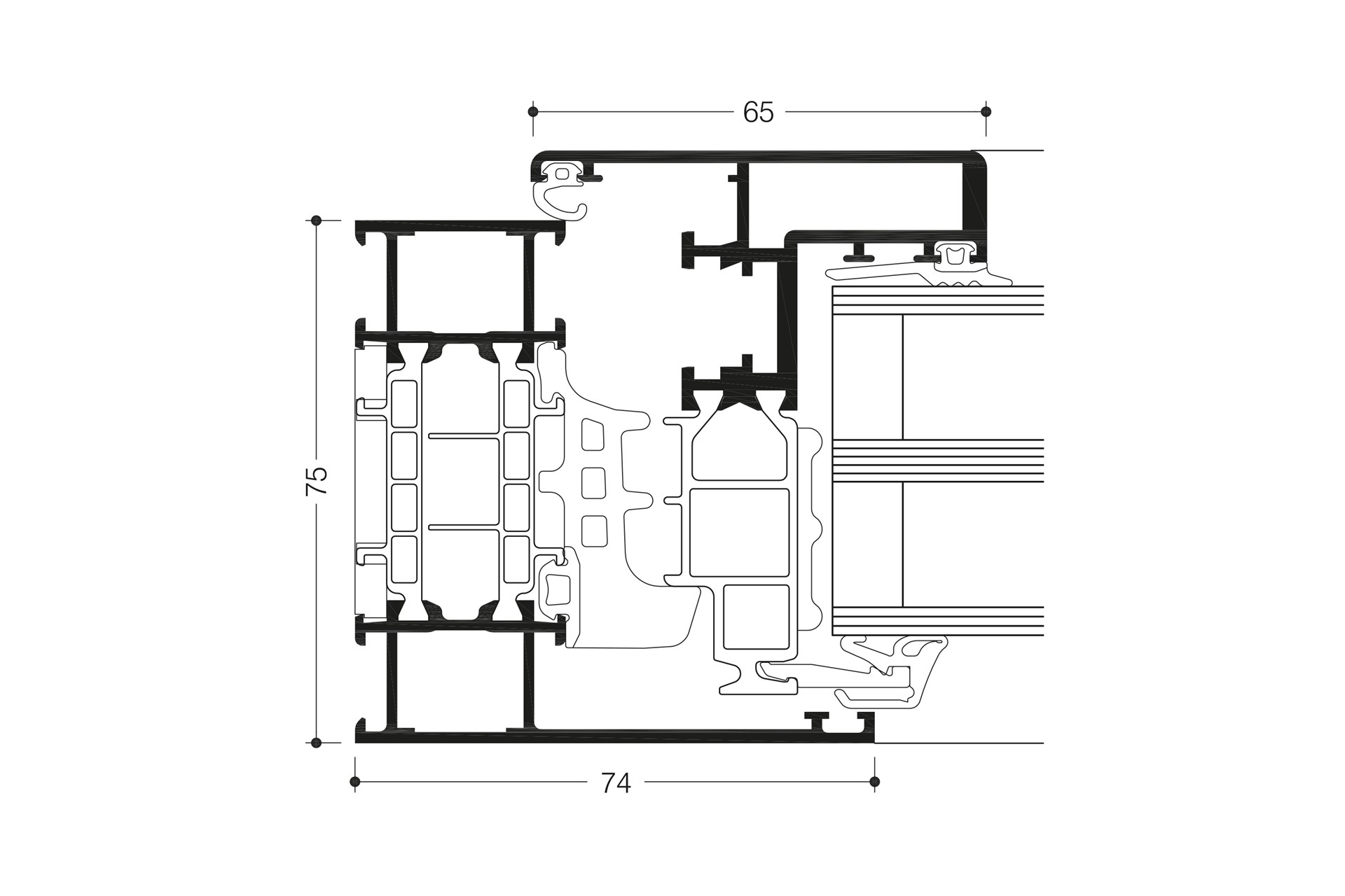
Technologie de profil
- Système multi-chambre hautement isolé thermiquement avec etc intelligence® zone de rupture thermique, qui implémente des conceptions de fenêtres avec seulement 75 mm de profondeur de cadre à la norme de maison passive.
- Technologie brevetée d’articulation de coin et de cul pour la rigidité élevée des composants
- Épaisseur de remplissage jusqu’à 50 mm
ISOLATION THERMIQUE
- Uf valeurs 0.97 à 1.3 W/(m²K) pour les unités vitrées fixes avec des lignes de vue externes de 48 à 155 mm
- Uf valeurs jusqu’à 1,2 W/(m²K) pour les combinaisons à châssis avec des lignes de vue externes de 74 à 142 mm
- Valeurs Uw inférieures à 0,80 W/(m²K)
CONCEPT DE JOINT
- Joint central en trois variantes :
- Installation circumférentielle sans pièces d’angle
- Avec les coins formés, aucun adhésif requis
- Cadres vulcanisés d’angle
Matériel
- Matériel dissimulé.
- Optionnel:
- Charnières visibles, enduites ou anodisées dans toutes les couleurs
- Charnières dissimulées avec amortissement intégré de la position de l’extrémité, angle d’ouverture max. 105°
- Poids de ceinture :
- Charnières dissimulées : jusqu’à 130 kg
- Charnières visibles : jusqu’à 130 kg
- Tailles de ceinture (w x h): jusqu’à 1300 mm x 2250 mm
- Limiteur d’ouverture optionnel
Combinaisons système
- Les fenêtres WICLINE 75 TOP peuvent être combinées avec les fenêtres WICLINE 75 evo et à l’aide de cadres d’intégration, avec des murs de rideau WICTEC actuels
- Maintenant également disponible avec la poignée cachée primée de WICONA en combinaison avec le profil 1010615




