WICLINE 75 MAX
WICLINE 75 MAX a pour base technique la série WICLINE 75 développée en Allemagne, éprouvée depuis de nombreuses années et mise en oeuvre mondialement sur de nombreux ouvrages. "MAX" exprime le potentiel innovant au plus haut degré à travers son triple spectre de performance du système : en matière de design grâce à son aspect homogène, de transparence avec son gain de lumière et de responsabilité environnementale avec un taux de recyclage élevé.
La poignée de fenêtre se cache dans le châssis de l’ouvrant et contribue ainsi à l’aspect homogène de la fenêtre. Les experts du jury international de l’iF DESIGN AWARD 2018 et du Red Dot Design Award 2018 ont jugé que cette idée innovante méritait d’être récompensée.
Documentation
Performances techniques
Perméabilité à l’air
Étanchéité à l'eau
Résistance au vent
Performance acoustique
Efforts de manœuvre
Résistance mécanique
Ouvertures / Fermetures répétées
Résistance aux chocs
Class 4
E750
Class C5 / B5
Rw up to 48 dB
Class 1
Class 4
Class 2 (10 000 cycles)
Class 2
performances techniques
technologie de profil
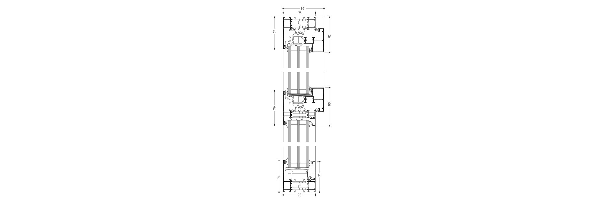
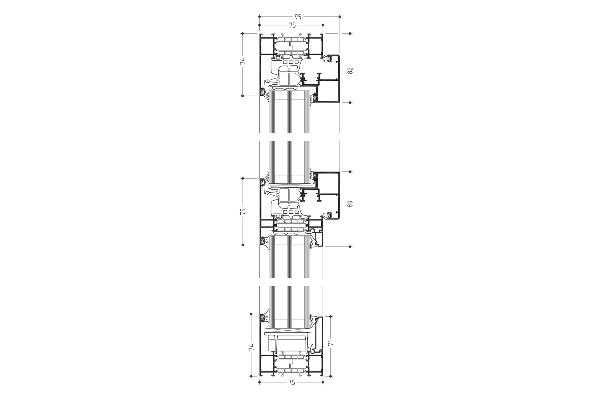
- Profondeur du cadre: 75 mm
- Hauteur de remise de cadre : 44 mm
- Profondeur globale de construction du système de profil : 95 mm
- Largeur de ceinture maximale : jusqu’à 1400 mm
- Hauteur maximale : jusqu’à 2250 mm
- Épaisseur de remplissage jusqu’à 50 mm
PROFIL SIGHTLINES
- Profils de cadre: 74 mm
- Profils Transom: 79 mm
- Profils de ceinture, dissimulés : 57 mm (ligne de visibilité interne)
ISOLATION THERMIQUE
- Valeur Uw jusqu’à 0,81 W/(m²K)
pour une fenêtre standard de 1230 mm x 1480 mm, Ug = 0,5 W/(m²K)
Types d’ouverture
- Fenêtre latérale
- Fenêtre d’inclinaison de tour
- Fenêtre en bas de tableau
- Fenêtre d’inclinaison d’abord

