WICLINE 75 evo - Volet de ventilation
Compatible avec la série de fenêtres WICLINE 75 et la série de façades WICTEC
Documentation
Performances techniques
System test results / CE product pass in accordance with EN 14351-1:2006+A2:2016
Perméabilité à l’air
Étanchéité à l'eau
Résistance au vent
Isolation acoustique
Anti-effraction
Class 4
Class 9A
Class C5 / B5
Until 42 dB
RC1N, RC2N, RC2
performance technique
sommaire
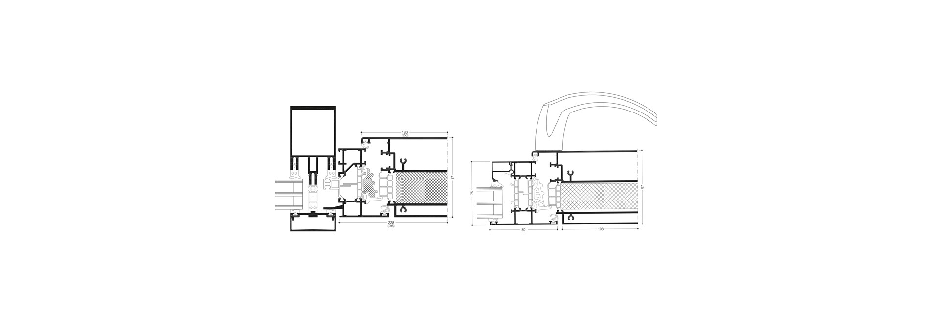
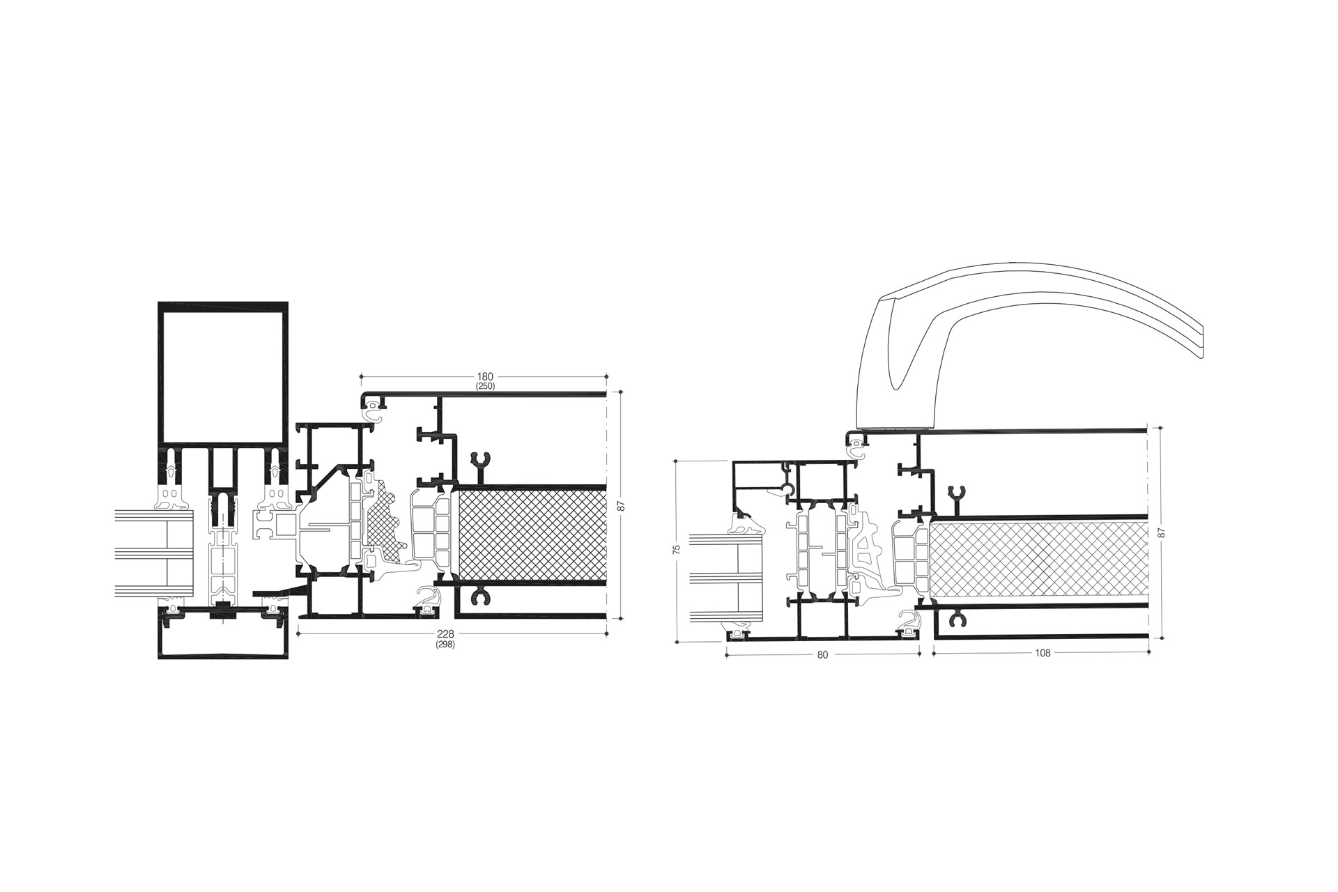
- Largeurs de ceinture de 170 à 330 mm, Dimensions standard 180 et 250 mm
- Max. tailles de ceinture (w x h): 180 mm x 3000 mm ou 250 mm x 3000 mm
- Réglage rapide et économique de la largeur de la ceinture dans l’objet
- Plus étroit écart d’ombre possible entre la ceinture et le cadre - seulement 6 mm comme dans les fenêtres WICONA standard
- 3 m de hauteur de ceinture incluant la résistance aux cambrioleurs jusqu’à RC2
- Traitement simple et efficace exclusivement avec scie à découper à 90° ou coupes d’encoche
- Les tests complets du système selon DIN 14351-1 vérifient la haute qualité de la technologie du système
ISOLATION THERMIQUE
- Valeur Uf jusqu’à 1,2 W/(m²K)
Matériel
- Raccords système de haute qualité avec système de positionnement direct (DPS). Les composants peuvent être assemblés dans n’importe quel ordre, en option :
- Charnières montées sur surface, enduites de couleur ou anodisées
- Charnières dissimulées avec arrêts intégrés de position d’extrémité
- Poids de la ceinture: 80 kg
- Facultatif avec limiteur d’ouverture
- Résistance aux cambrioleurs RC1N, RC2N et RC2
- Compatible avec la série de fenêtres WICLINE 75 et la série de façades WICTEC
intégration motrice dissimulée
intégration motrice dissimulée
- Ouverture à 90° permettant une ventilation maximale
- Faible entretien et inviolable
- Angle d’ouverture réglable
- Commande par des interrupteurs de ventilation, télécommande ou système de gestion du bâtiment
- Libération d’urgence dissimulée
- Pas de chaînes à moteur dépassant dans la zone d’ouverture




