WICLINE 75 evo
Avec une profondeur de profilés de 75 mm, WICLINE 75 evo possède les meilleures propriétés d’isolation thermique et caractéristiques structurelles. Avec ses performances techniques supérieures, cette fenêtre en aluminium répond à toutes les exigences architecturales du futur. En Suisse, WICLINE 75 evo a été la première fenêtre métallique à obtenir la certification
fenêtre modulaire Minergie-P.
Documentation
Performances techniques
Résultats d’essais suivant la norme produits CE / DIN EN 14351-1:2006+A1:2010
Perméabilité à l’air
Étanchéité à l'eau
Résistance au vent
Performance acoustique
Efforts de manœuvre
Capacité de résistance des dispositifs de sécurité
Résistance mécanique
Ouvertures / Fermetures répétées
Résistance à la corrosion de la quincaillerie
Anti-effraction
Résistance pare-balles
Assurance qualité
Gestion environnementale
Class 4
E900
Class C5 / B5
Rw (C; Ctr) = 47 (–1; –4) dB
Class 1
Fulfilled
Class 4
Class 3 (20 000 cycles)
Class 5
RC1N, RC2N, RC2, RC3
FB4 S, FB4 NS (depending on the profile combination)
Certified according to ISO 9001:2008
Certified according to ISO 14001
performance technique
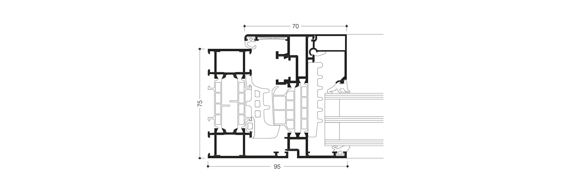
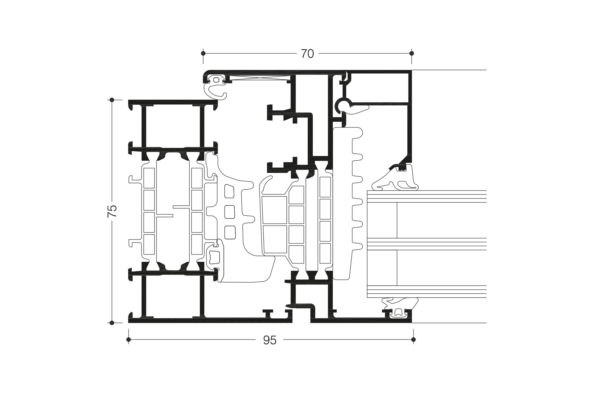
TECHNOLOGIE DE PROFIL
- Système multi-chambre haute isolation dans la conception symétrique, connexion d’isolant thermique assurée de qualité
- Technologie brevetée de connexion de joint de coin et de cul pour la rigidité élevée des cadres et des ceintures
- Épaisseur de remplissage jusqu’à 69 mm
ISOLATION THERMIQUE
- Valeurs Uf: jusqu’à 1,2 W / (m²K)
- Valeurs Uw: jusqu’à 0,87 W / (m²K) pour les ceintures,
jusqu’à 0,72 W / (m²K) pour le vitrage fixe, avec triple vitrage - Certifié comme module Minergie-P Uw 0.8 W / (m²K)
CONCEPT DE JOINT
- Joint central en trois variantes :
- Installation circumférentielle sans pièces d’angle
- Avec les coins formés, aucun adhésif requis
- Cadres vulcanisés d’angle
Matériel
- Matériel système lourd avec :
- Charnières visibles, revêtement en poudre ou anodisation de toutes les couleurs
- Charnières dissimulées avec amortissement intégré de la position de l’extrémité, angle d’ouverture max. 105°
- Poids de la ceinture:
- Charnières dissimulées : jusqu’à 160 kg
- Charnières visibles : jusqu’à 200 kg
- À la demande : jusqu’à 300 kg
- Tailles de ceinture (w x h): 1700 mm x 2500 mm, ventilateur 2500 mm x 1700 mm
- Limiteur d’ouverture optionnel
conceptions supplémentaires
- Ceinture dissimulée
- Design classique
- Cadre d’intégration pour façades de bâton
- Fanlight avec levier de main, tige à manivelle ou moteur
- Fenêtre pivotante, horizontale ou verticale
- Fenêtre coulissante parallèle, avec ou sans opération de force
- Fenêtre de style italien
- Fenêtre en haut de la taille
- Portes de fenêtre avec seuil sans barrière, porte de casage simple ou double, ouverture intérieure et extérieure
- Compatible avec la série de portes WICSTYLE 65 evo et WICSTYLE 75 evo

