WICLINE 65 evo
Avec une technologie de pointe et une gamme de profilés complète, la fenêtre aluminium WICLINE 65 evo est un modèle polyvalent, idéal pour un domaine d’applications très diversifié.
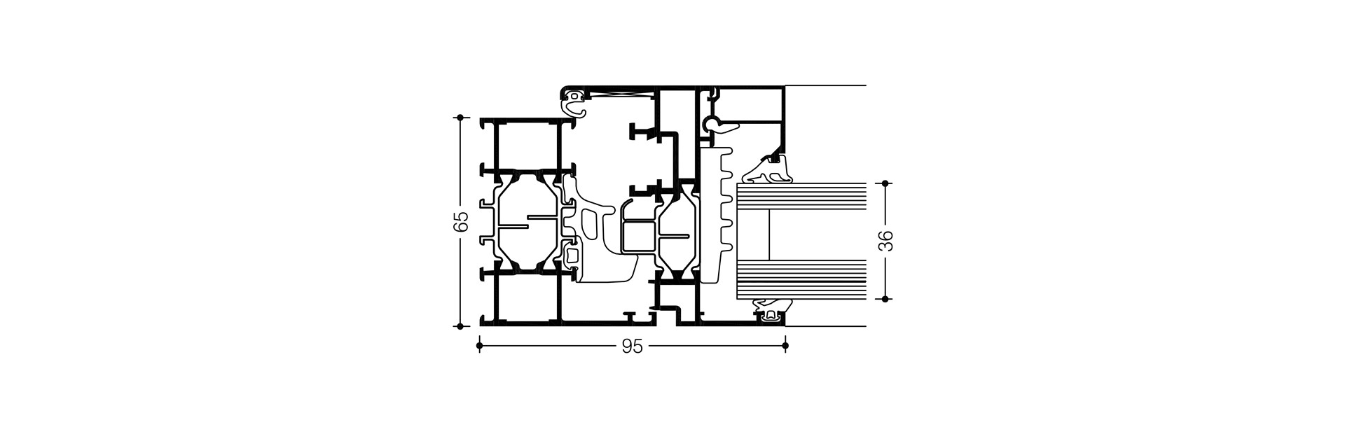
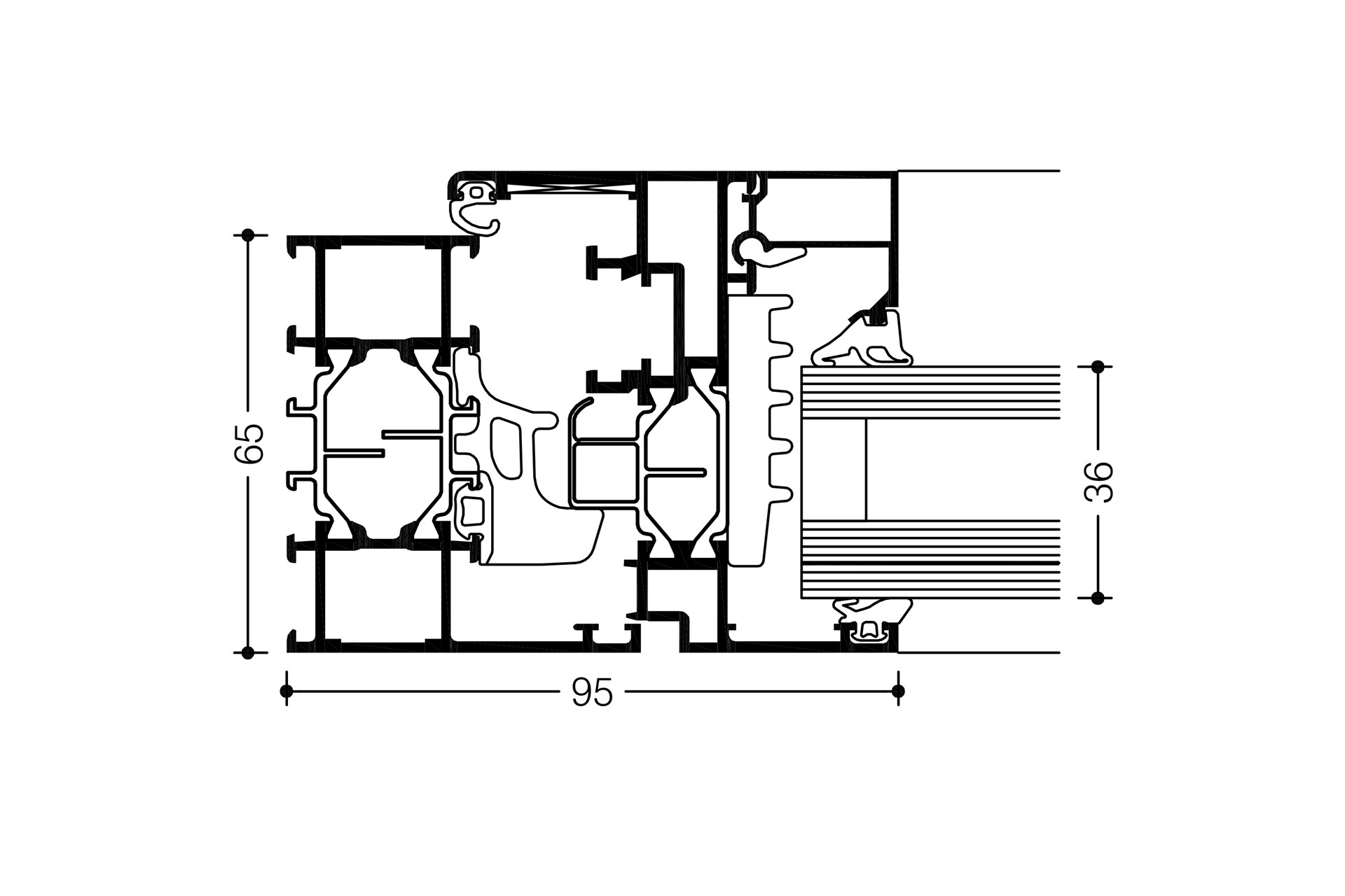
D’une profondeur de profilés de 65 mm seulement, ce système répond à des normes très strictes en matière d’isolation thermique et acoustique. WICLINE 65 evo possède un rapport prix/performances particulièrement intéressant.
Documentation
Performances techniques
Résultats d’essais suivant la norme produits CE / DIN EN 14351-1:2006+A1:2010
Perméabilité à l’air
Étanchéité à l'eau
Résistance au vent
Performance acoustique
Efforts de manœuvre
Capacité de résistance des dispositifs de sécurité
Résistance mécanique
Ouvertures / Fermetures répétées
Résistance à la corrosion de la quincaillerie
Anti-effraction
Résistance pare-balles
Assurance qualité
Gestion environnementale
Class 4
E900
Class C5 / B5
Rw (C; Ctr) = 47 (–1; –4) dB
Class 1
Fulfilled
Class 4
Class 3 (20 000 cycles)
Class 5
RC1N, RC2N, RC2, RC3
FB4 S, FB4 NS (depending on the profile combination)
Certified according to ISO 9001:2008
Certified according to ISO 14001
PERFORMANCE TECHNIQUE
TECHNOLOGIE DE PROFIL
- Système multi-chambre haute isolation dans la conception symétrique, connexion d’isolant thermique assurée de qualité
- Technologie brevetée de connexion de joint de coin et de cul pour la rigidité élevée des cadres et des ceintures
- Épaisseur de remplissage jusqu’à 59 mm
ISOLATION THERMIQUE
- Valeurs Uf : jusqu’à 1,4 W/(m²K)
- Valeurs Uw : jusqu’à 0,93 W/(m²K) avec triple vitrage
CONCEPT DE JOINT
- Joint central en trois variantes :
- Installation circumférentielle sans pièces d’angle
- Avec les coins formés, aucun adhésif requis
- Cadres vulcanisés d’angle
Matériel
- Matériel système lourd avec :
- Charnières visibles, revêtement en poudre ou anodisation de toutes les couleurs
- Charnières dissimulées avec amortissement intégré de la position de l’extrémité, angle d’ouverture max. 105°
- Poids de la ceinture:
- Charnières dissimulées : jusqu’à 160 kg
- Charnières visibles : jusqu’à 200 kg
- À la demande : jusqu’à 300 kg
- Tailles de ceinture (w x h): 1700 mm x 2500 mm, ventilateur 2500 mm x 1700 mm
- Limiteur d’ouverture optionnel

