WICLINE 90 SG
En tant qu’ajout attrayant aux façades, l’élément d’ouverture WICLINE 90SG dans le vitrage structurel assure une ventilation efficace, si désiré aussi entièrement automatique. Cette fenêtre entièrement vitrée offre des options complètes telles qu’une fenêtre de dépôt ou une fenêtre d’extension parallèle. Il peut être intégré dans la façade en verre avec vitrage structurel, WICTEC 50SG, ou les façades WICTEC style-règle. Pour une isolation thermique optimale, WICLINE 90SG peut être fourni avec du verre double ou triple. L’utilisation de verre standard sans bord de saut en longueur offre un avantage de prix et de sécurité.
Documentation
Performances techniques
System test results / CE product pass in accordance with EN 14351-1:2006+A2:2016
Perméabilité à l’air
Étanchéité à l'eau
Résistance au vent
Ouvertures / Fermetures répétées
Résistance aux chocs
Capacité de résistance des dispositifs de sécurité
Approbation
Assurance qualité
Gestion environnementale
Class 4
E750
Class C4 / B4
Class 2 (10 000 cycles)
Up to class 3
Fulfilled
ETA: -12/0551
(European Technical Approval)
Certified according to ISO 9001:2008
Certified according to ISO 14001
PERFORMANCE TECHNIQUE
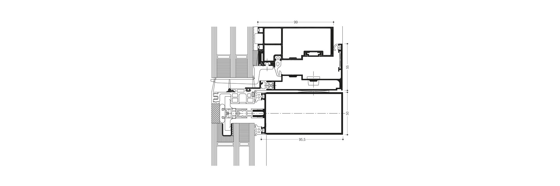
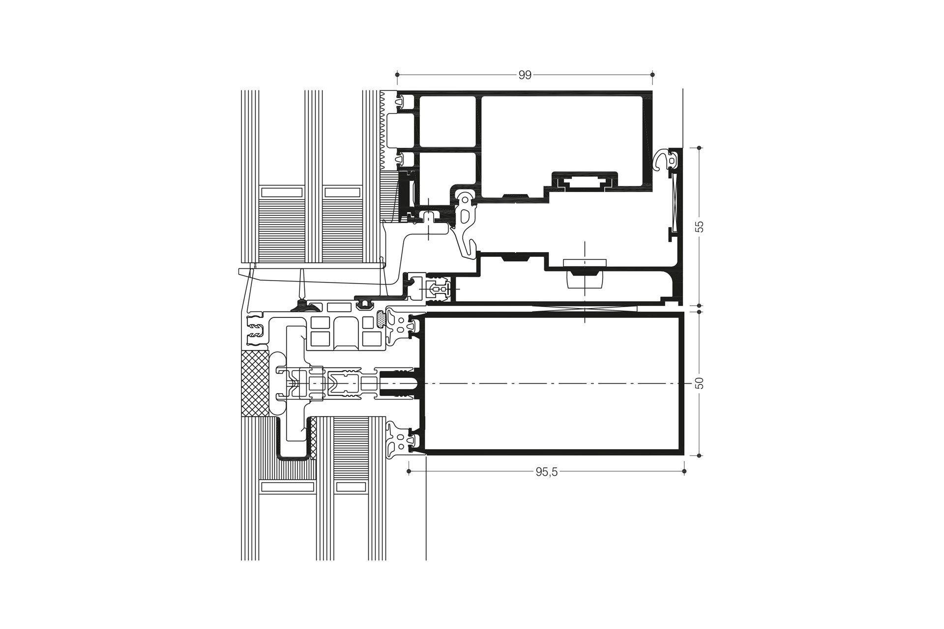
TECHNOLOGIE DE PROFIL
- Ceinture tout en verre avec design profil mince pour une transparence maximale
- Profondeur de construction 90 mm, ligne de visée interne 55 mm
- ETA accordée (Approbation technique européenne)
- Épaisseur de remplissage jusqu’à 62 mm
- Pour double ou triple vitrage
- Technologie sans vitrage en marche, plus économique et plus facile à assembler
- Raccords complets de WICONA pour le fonctionnement manuel ou moteur
ISOLATION THERMIQUE
- Valeur Uf jusqu’à 1,1 W/(m²K)
APPLICATION ITALIENNE DE SASH
- Poids de ceinture jusqu’à 180 kg
- Tailles de ceinture (w x h) : jusqu’à 1500 mm x 2500 mm ou jusqu’à 2000 mm x 1700 mm
APPLICATION PARALLÈLE DE CEINTURE EXTÉRIEURE
- Poids de la ceinture jusqu’à 200 kg
- Tailles de ceinture (w x h): jusqu’à 1500 mm x 3000 mm ou jusqu’à 2000 mm x 1500 mm



