WICLINE 65 evo/75 evo
La combinaison idéale : façades à règle de style avec fenêtres encastrées en aluminium de la série WICLINE evo. Les systèmes flexibles avec des performances supérieures offrent des solutions individuelles au plus haut niveau technique et créatif, personnalisées avec un large choix de fonctionnalités.
Documentation
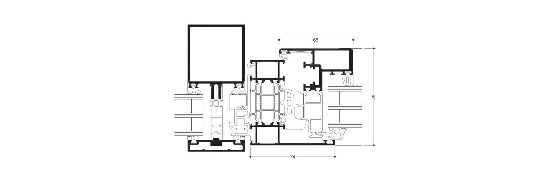
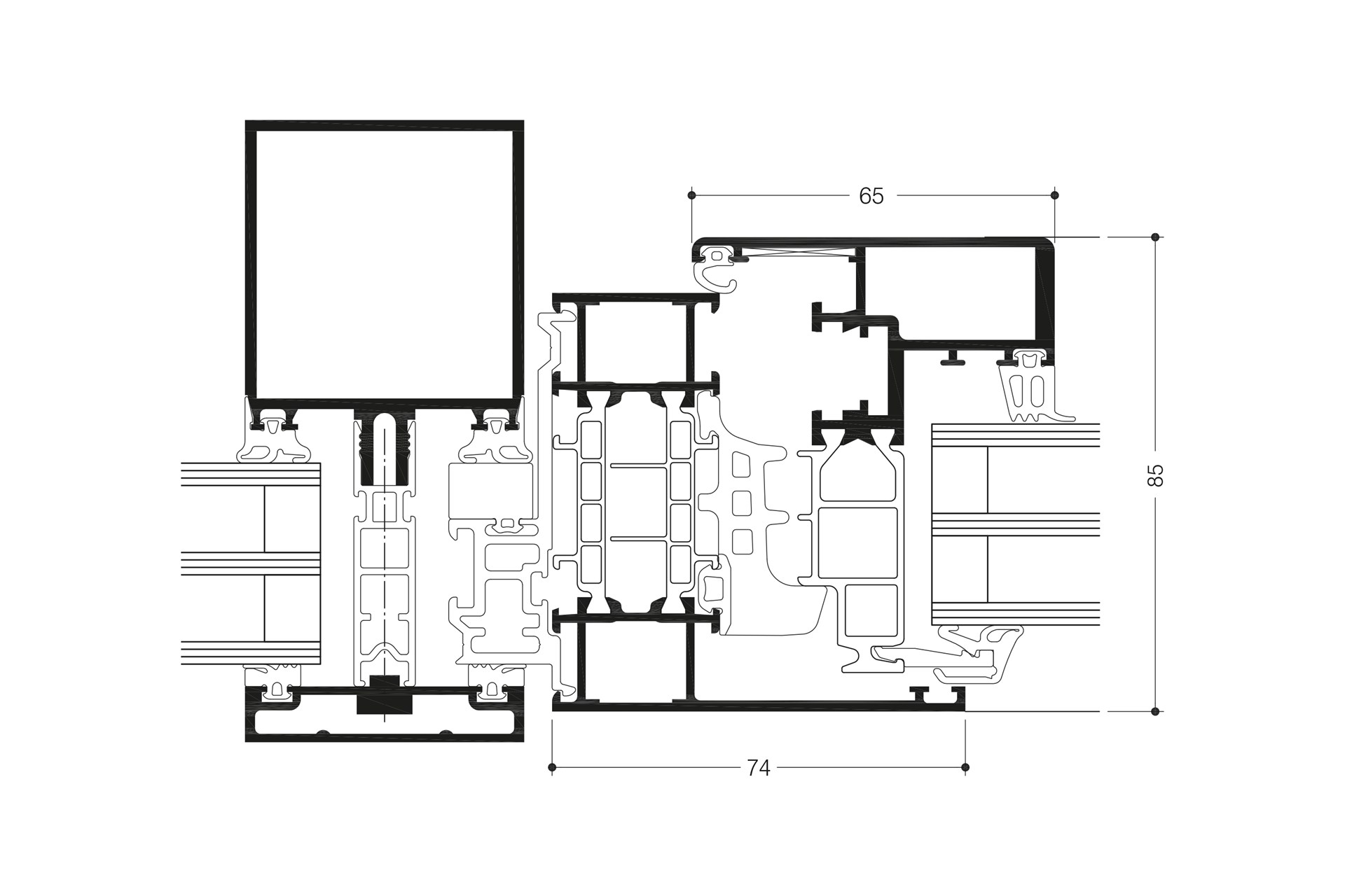
Caractéristiques techniques
Description de la construction
- Système multi-chambres hautement isolé thermiquement avec structure symétrique
- Angle breveté et technologie de connexion T pour une grande stabilité des cadres et des ailes
- Épaisseur de remplissage : jusqu’à 69 mm
Isolation thermique
- Voir les valeurs de la série de fenêtres et de façades pertinentes
Exécutions, vers l’intérieur
Uitvoeringen, naar binnen draaiend
- Fenêtre de virage / turn-tilt / tilt
- Ceinture dissimulée
- Fenêtre pivot horizontale
- Fenêtre pivot verticale
- Résistance de cambrioleur
Matériel
- Matériel système lourd avec :
- Charnières visibles, revêtement en poudre ou anodisation de toutes les couleurs
- Charnières dissimulées avec amortissement intégré de la position de l’extrémité, angle d’ouverture max. 105°
- Poids de la ceinture:
- Charnières à inclinaison de virage dissimulées : jusqu’à 160 kg
- Charnières à inclinaison de virage visibles : jusqu’à 200 kg
- Charnières de virage (à la demande) : jusqu’à 300 kg
- Tailles de ceinture (w x h): 1700 mm x 2500 mm
- Limiteur d’ouverture optionnel
Options d’ouverture vers l’extérieur
Options d’ouverture vers l’extérieur
- Fenêtre en haut de la taille
- Fenêtre latérale
- Fenêtre italienne
Matériel
- Charnières visibles top-hung ou side-hung
- Charnières cachées fenêtre de style italien
- Poids de la ceinture: jusqu’à 150 kg
- Tailles de ceinture (w x h): jusqu’à 2000 mm x 2000 mm


