RÉSISTANT AUX CAMBRIOLEURS
Sécurité personnelle et protection du bâtiment – pour votre bâtiment, vous avez besoin d’une solution qui peut être réalisée avec des systèmes en aluminium d’une manière wholistic et compatible. Ceci est réalisé par la série WICONA pour les fenêtres, les murs-rideaux et les portes. Chacun d’eux peut fournir une résistance aux cambrioleurs, en combinaison avec d’autres fonctions supplémentaires. Les différents niveaux de classes de résistance peuvent être atteints avec toutes les séries de fenêtres WICLINE sans altération visuelle des constructions, avec seulement un minimum de mesures supplémentaires sur la base de la conception standard.
Documentation
Performances techniques
System test results / CE product pass in accordance with EN 14351-1:2006+A2:2016
Informations générales
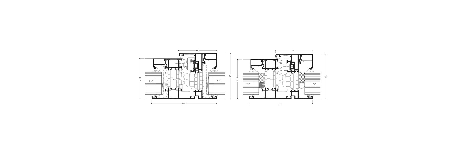
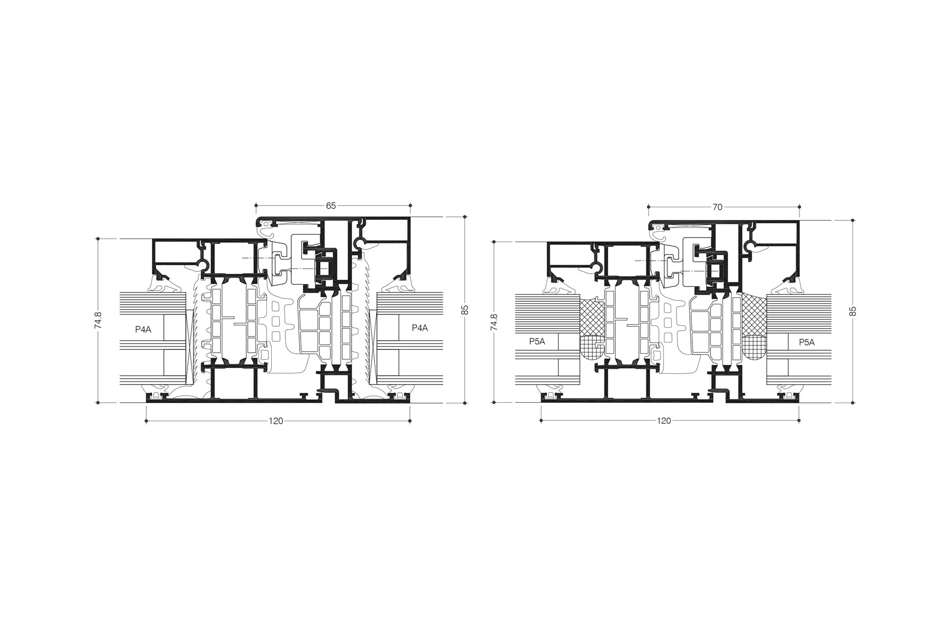
See classification of the respective WICLINE window series.
performance technique
RÉSISTANCE DE CAMBRIOLEUR SELON EN 1627
La norme actuellement valable pour la résistance aux cambrioleurs, l’EN 1627, est entrée en vigueur dans les pays européens en 2011 et 2012. Il a remplacé les anciennes normes nationales. Les classifications ont été modifiées en classes RC1N à RC3, qui ne sont pas identiques aux anciennes classes WK1 à WK3.
RÉSULTATS DES TESTS DE LA SÉRIE DE FENÊTRES WICONA
Les nouvelles séries WICLINE 65 evo et WICLINE 75 evo avec plusieurs variantes ont été testées selon la nouvelle norme EN 1627. Ils peuvent facilement être spécifiés et mis en œuvre sans aucune mesure supplémentaire selon cette nouvelle norme.




