RÉSISTANT AUX BALLES
Sécurité personnelle et protection du bâtiment – pour votre bâtiment, vous avez besoin d’une solution qui peut être réalisée avec des sys-tems en aluminium d’une manière wholistic et compatible. Ceci est réalisé par la série WICONA pour les fenêtres, les murs-rideaux et les portes. Chacun d’eux peut fournir une résistance aux balles, en combinaison avec d’autres fonctions. Les exigences pour la résistance de balle sont atteintes avec diverses combinaisons de profil de fenêtre WICLINE, simplement par addition spéciale planche d’aluminium solide.
Documentation
performance technique
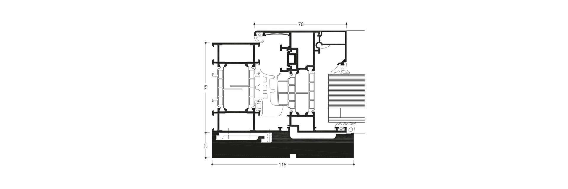
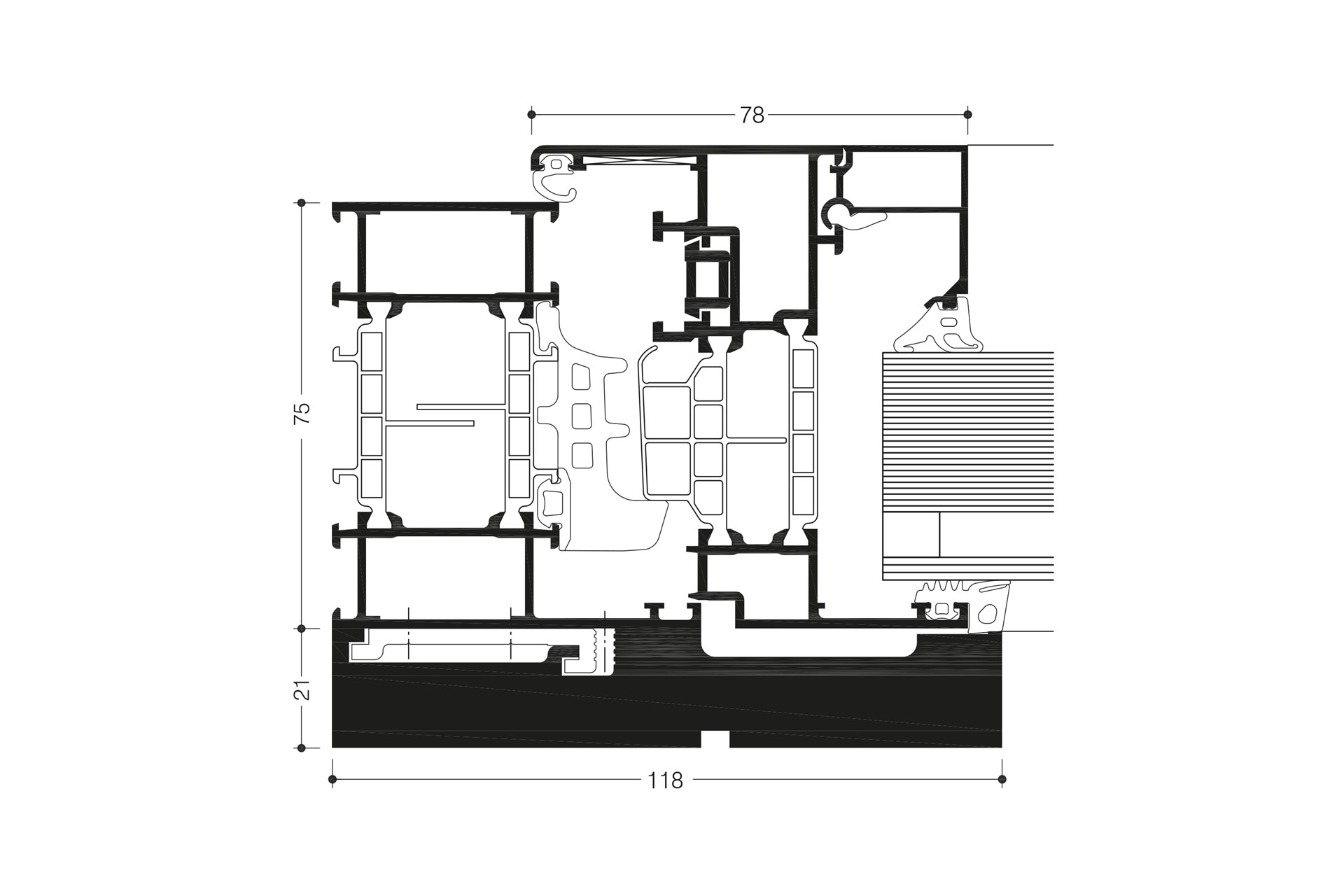
RÉSISTANCE AUX BALLES SELON EN 1522
- Les exigences de résistance aux balles pour les fenêtres sont réglementées à l’échelle de l’Europe dans la norme EN 1522.
- La nouvelle série de fenêtres WICLINE 65 evo et WICLINE 75 evo ont été testées selon cette norme dans diverses combinaisons de profils, et ont été certifiées avec succès dans les classes FB4 S et FB4 NS.
- La résistance aux balles dans les classes FB4 S et FB4 NS peut être atteinte pour différents types d’ouverture, dans les applications de trous perforés ou dans les fenêtres de ruban.
- La résistance aux balles peut être combinée à la résistance des cambrioleurs dans les classes RC1N, RC2N, RC2, RC3 selon l’EN 1627.
combinaisons possibles avec d’autres séries de produits WICONA en résistance aux balles dans la classe FB4
- Portes WICSTYLE 65 evo / WICSTYLE 75 evo
- Murs-rideaux de bâton WICTEC 50




