FAÇADE À VITRAGE STRUCTUREL
L’une des caractéristiques du mur-rideau à vitrage structurel WICTEC 50SG est sa conception en affleurant, avec joints silicone minces entre les panneaux vitrés. Le système propose une technologie tout verre, aussi bien pour les murs-rideaux verticaux que pour les vitrages pour toits en pente. À partir du système standard WICTEC 50, ces options peuvent être réalisées en faisant appel à un procédé et un assemblage simples et économiques, tout en assurant un niveau de qualité élevé.
Documentation
Performances techniques
Résultats d’essais suivant la norme produits CE / DIN EN 13830
Perméabilité à l’air
Étanchéité à l'eau
Résistance au vent
Résistance aux chocs
Approbation
Assurance qualité
Gestion environnementale
Class AE
RE 750
2000 Pa, security ± 3000 Pa
Class E5 / I5
ETA: 12/0551
(European Technical Approval)
Certified according to ISO 9001:2008
Certified according to ISO 14001
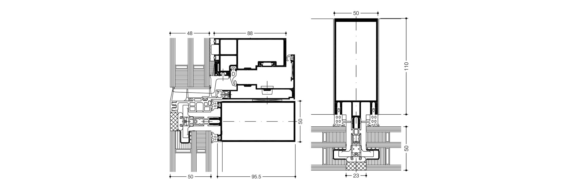
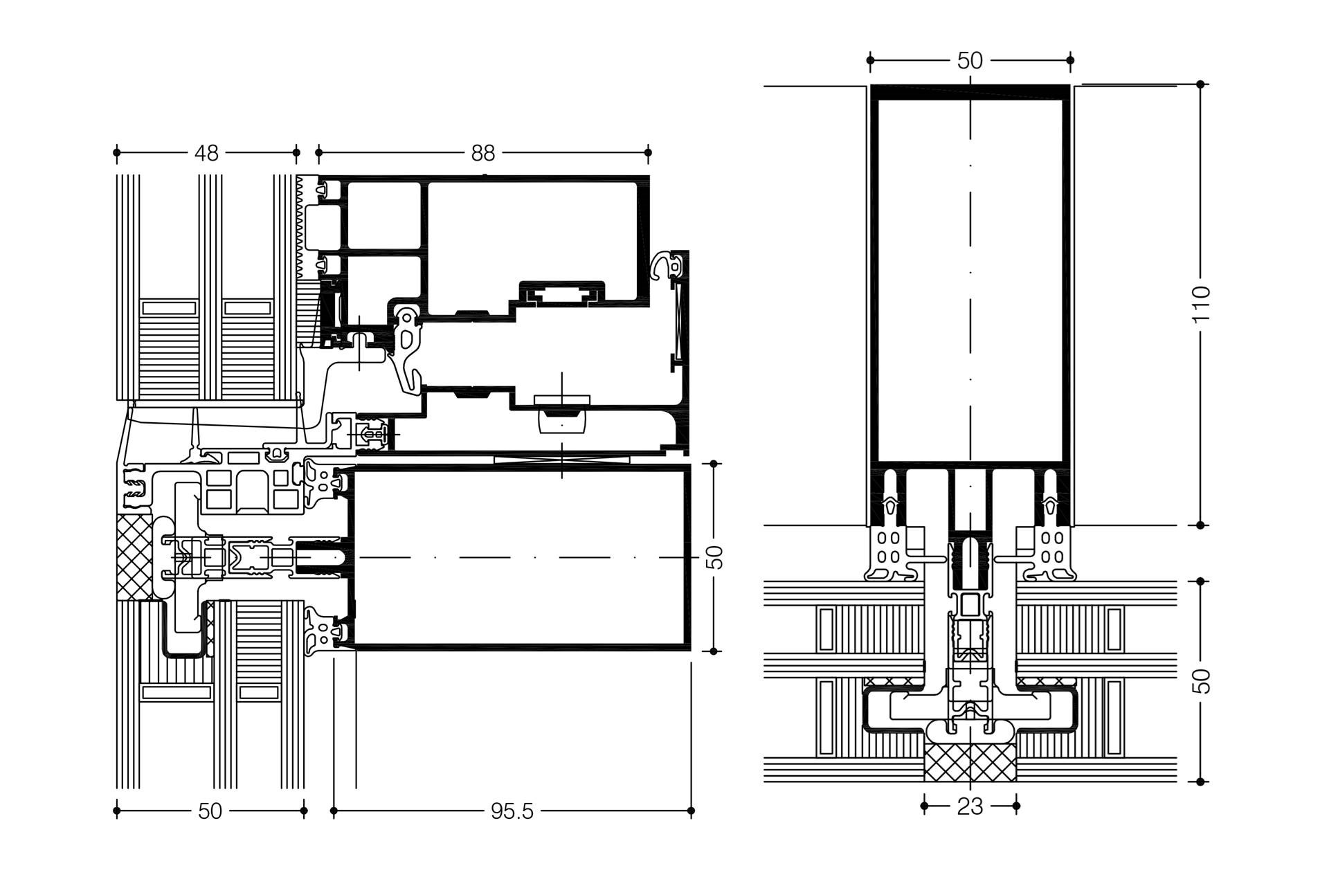
Performance technique
Largeur du système
Isolation thermique
Épaisseur de remplissage
Profils internes en aluminium 50 mm / Joint externe en silicone 23 mm
Uf jusqu’à 1,6 W/(m²K)
up to 64 mm
Technologie du système
- L’ETA (Approbation technique européenne) a obtenu
- Apparence exceptionnelle
- Structure de base identique au mur rideau WICTEC 50, avec profil identique et technologie de joint
- Installation rapide et simple des IGU, grâce à une attache brevetée spéciale
- Peut également être combiné avec des profils de couverture externes dans différentes formes et conceptions
- Le complément idéal : ceinture intégrée en tout verre WICLINE 90SG avec style italien ou fonctionnalité d’ouverture extérieure parallèle

