MUR-RIDEAU AJOUTÉ
Dans certains cas, il est bénéfique du point de vue esthétique ou structurel de concevoir des murs-rideaux avec structure porteuse réalisée en bois ou en acier. WICTEC 50A est une option d’installation permettant de fixer le vitrage directement sur de telles structures porteuses. WICTEC propose un libre choix de matériaux de support – aluminium, acier ou bois – pour une apparence extérieure et une technologie de vitrage identiques à celles du mur-rideau.
Documentation
Performances techniques
System test results / CE product pass in accordance with DIN EN 13830
Perméabilité à l’air
Étanchéité à l'eau
Résistance au vent
Résistance aux chocs
Anti-effraction
Résistance pare-balles
Assurance qualité
Gestion environnementale
Class AE
RE 1200
2000 / –3200 Pa, security 3000 / –4800 Pa
Class E5 / I5
RC1N, RC2N, RC2
FB4
Certified according to ISO 9001:2008
Certified according to ISO 14001
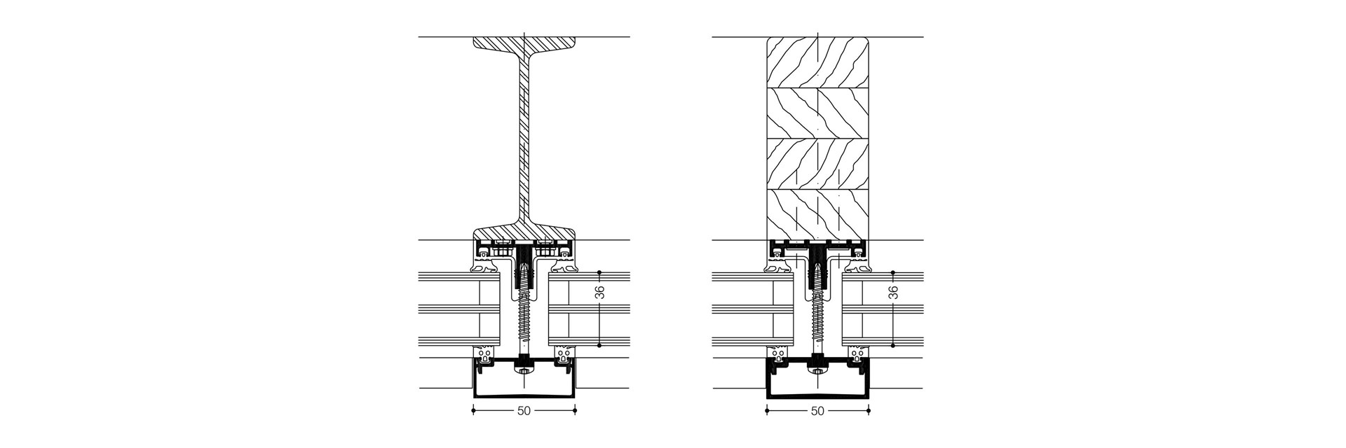
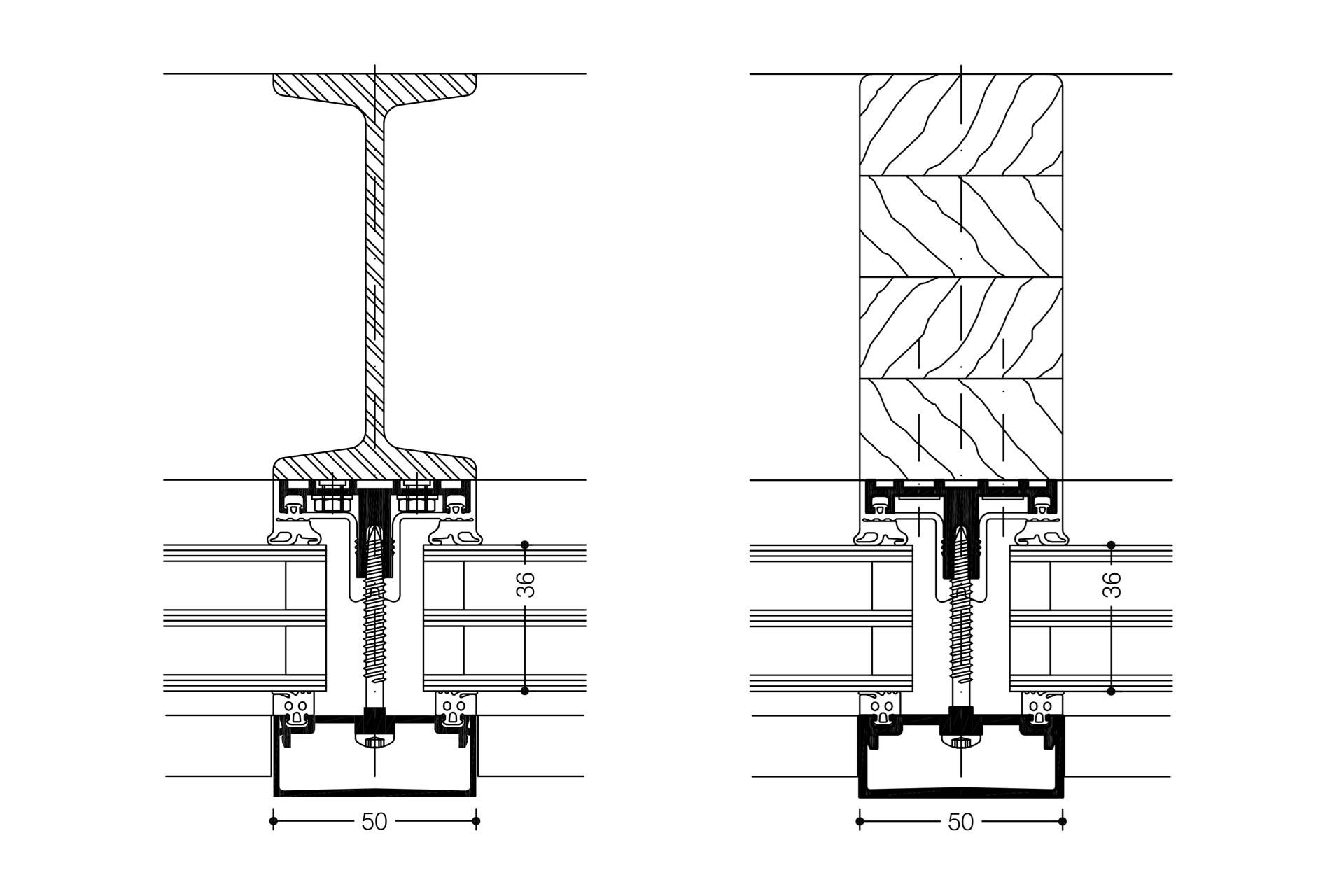
Technologie du système
- Libre choix des matériaux (acier ou bois), pour des largeurs de profilés à partir de 50 mm
- Mêmes profilés d’interface pour montants et traverses
- Recouvrement par profilés de superstructure verticaux et horizontaux en une seule pièce, avec différents niveaux de drainage
- Fixation simple efficace du profilé aluminium au moyen de vis
- Alternative simple de fixation avec technique à manchons en acier, pour tubes d’acier à épaisseur de paroi à partir de 4 mm
- Idéal pour les façades verticales et polygonales, les vitrages inclinés et les structures spatiales
- Pose du vitrage par l’extérieur, avec vis apparentes ou dissimulées


