WICTEC 60EL
WICTEC EL60 est la version étroite parmi les systèmes de murs-rideaux par éléments, avec masses vues étroites de 60 mm seulement, à l’intérieur comme à l’extérieur. Les profilés de vitrage extérieurs avec joints à onglet permettent d’obtenir un aspect particulièrement élégant avec effet “cadre de tableau”. Grâce à l’isolation thermique optimisée, le système montre la voie, avec des valeurs Ucw exceptionnelles de 0,9 W/(m²K).
Documentation
Performances techniques
Résultats d’essais suivant la norme produits CE / DIN EN 13830
Perméabilité à l’air
Étanchéité à l'eau
Résistance au vent
Résistance aux chocs
Assurance qualité
Gestion environnementale
Class AE
RE 1200
2000 / –3200 Pa, security 3000 / –4800 Pa
Class E5 / I5
Certified according to ISO 9001:2008
Certified according to ISO 14001
technologie système
- WICTEC EL60 est un système unitaire de base qui peut être adapté individuellement pour répondre aux exigences spécifiques du projet
- Les unités complètes sont produites dans l’atelier, en évitant l’influence des conditions météorologiques et en assurant un niveau de qualité constamment élevé
- Assemblage rapide, efficace et projectable sur place
- Profils composites en aluminium avec excellente isolation thermique, de la qualité assurée et de la production surveillée
- Lignes de visée minces de seulement 60 mm, pour la fenestration intégrale et les cadres couplés
- Les mullions et les transoms ont la même profondeur de profil
- Connexions fiables de support d’angle
- Installation rapide et facile sur place à l’aide d’un système d’ancrage dédié
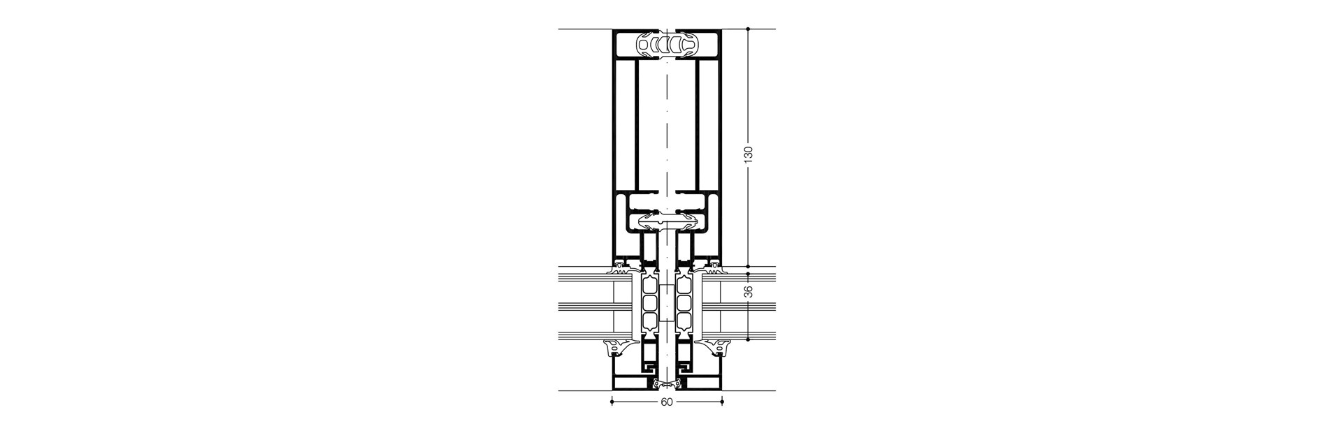
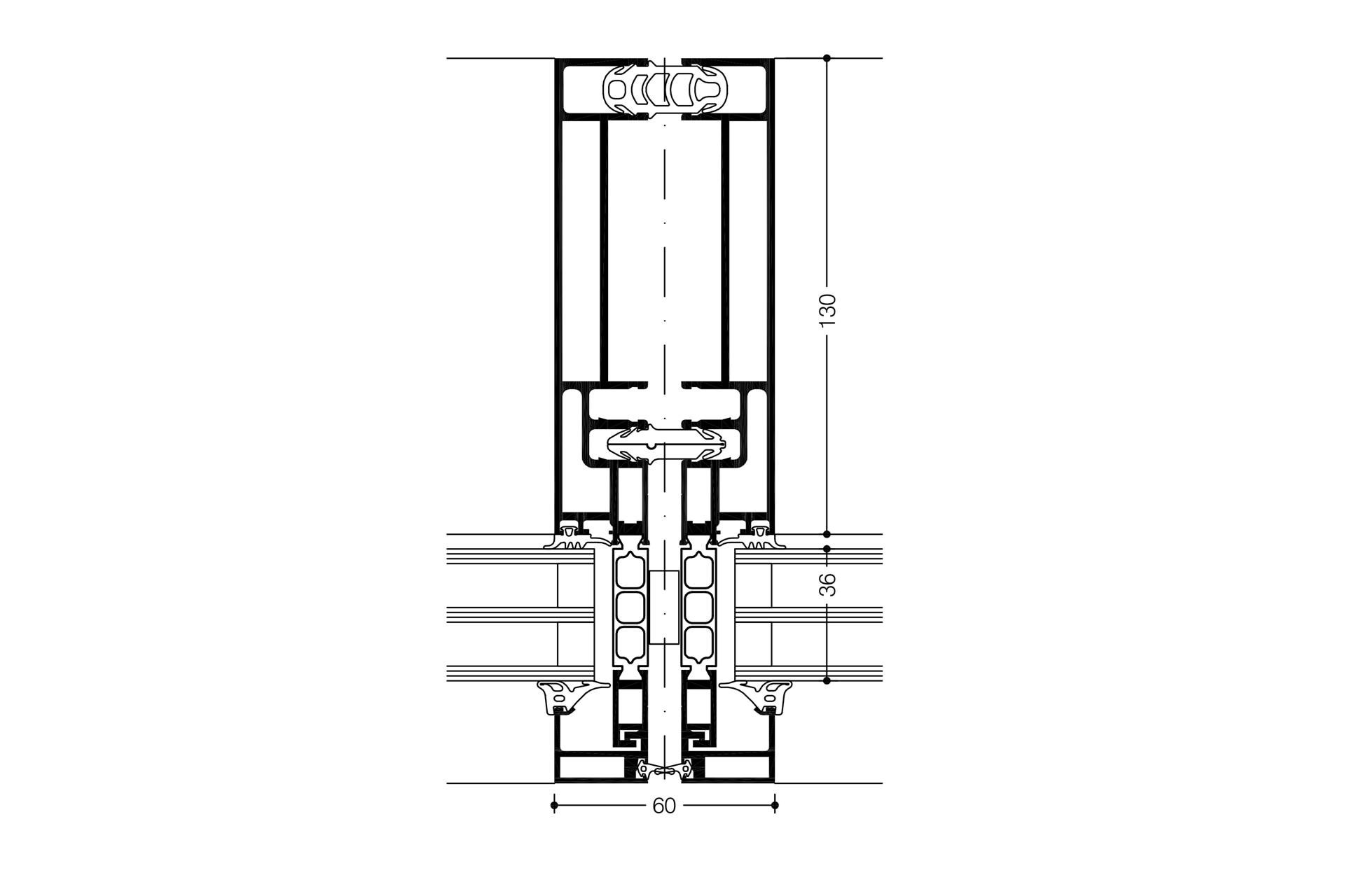
Caractéristiques techniques
largeur du système
Profondeur de la bande de roulement
isolation thermique
Épaisseurs de remplissage
Dimensions des éléments
60mm
198mm
Uf = 1,6 W/(m²K) pour les profils de support et de contrôle Uf = 1,8 W/(m²K) pour les nations de combinaison de fenêtres Ucw jusqu’à 0,9 W/(m²K)
jusqu’à 36 mm en tant que système standard, en plus d’être adaptable individuellement
B x H) jusqu’à 2800 mm x 3500 mm, sans style moyen jusqu’à 1500 mm de largeur


