WICTEC 50EL
WICTEC 50EL est une version par éléments du système WICTEC 50. Cette gamme réunit les avantages des structures de cadres et ceux des murs-rideaux par éléments, avec des masses vues extrêmement étroites de seulement 50 ou 65 mm. Les profilés extérieurs, avec joints à onglet montés à l’extérieur, permettent d’obtenir un aspect particulièrement élégant de type “cadre de tableau”. WICTEC 50 EL représente la solution idéale, notamment lorsque des exigences rigoureuses sont imposées en matière d’isolation thermique.
Documentation
performance technique
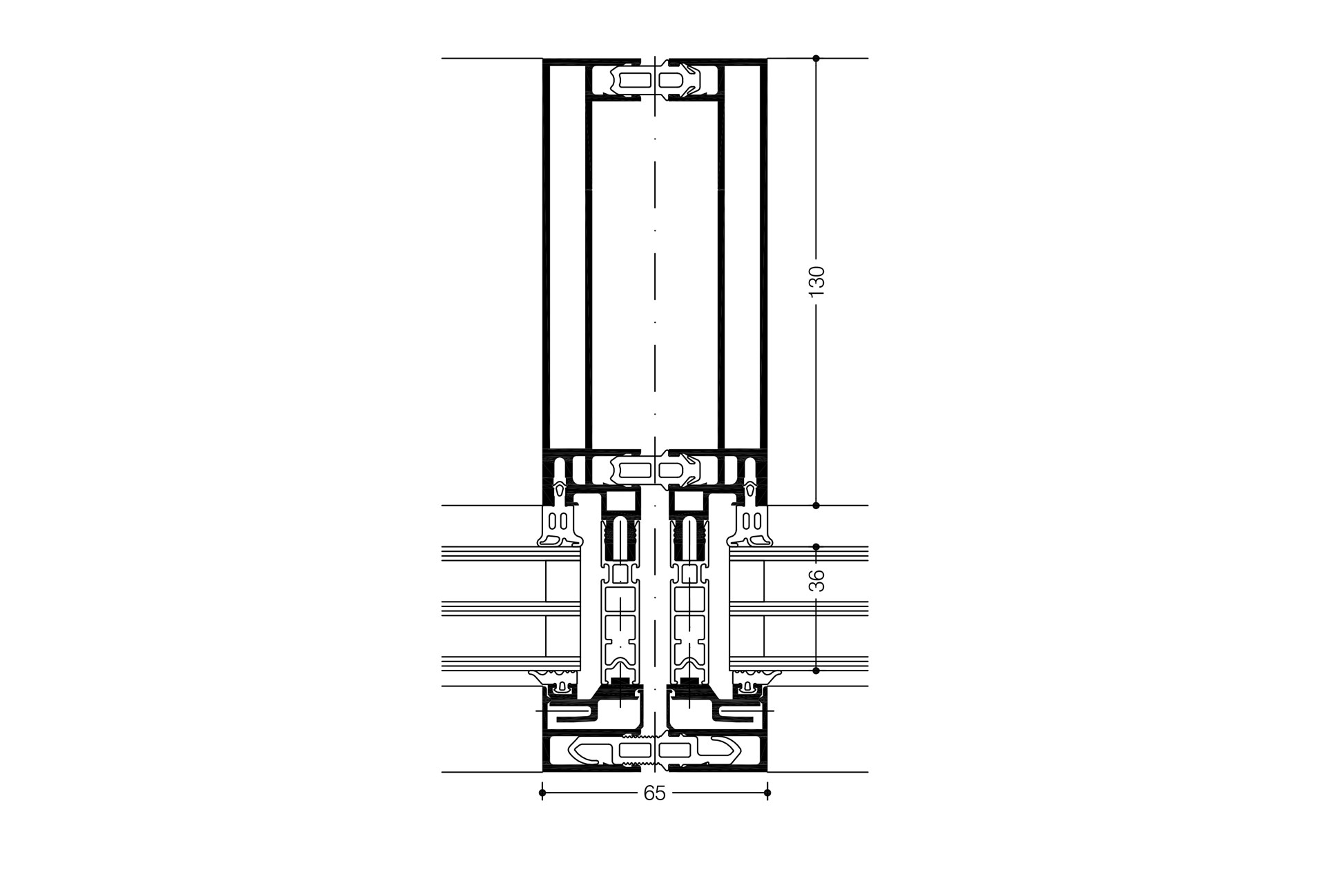
largeur du système
Profondeur de profil
Isolation thermique
Épaisseur de remplissage
Taille des unités
50 mm pour la fenestration intégrale et 65 mm pour les cadres couplés
195 mm à 213 mm
Uf jusqu’à 1,4 W/(m²K) horizontalement et Uf jusqu’à 1,5 W/(m²K) verticalement
jusqu’à 44 mm
(w x h) jusqu’à 3000 mm x 3500 mm, jusqu’à 1500 mm de largeur sans mullions intégrées
technologie système
- WICTEC 50EL est un système unitaire de base qui peut être adapté individuellement pour répondre aux exigences spécifiques du projet
- Les unités complètes sont produites dans l’atelier, en évitant l’influence des conditions météorologiques et en assurant un niveau de qualité constamment élevé
- Assemblage rapide, efficace et projectable sur place
- Profils en aluminium utilisant la technologie mullion-transom, avec des profils isolants qui fournissent un niveau élevé d’isolation thermique
- Lignes de visibilité étroites pour une transparence maximale
- Les mullions et les transoms ont la même profondeur de profil
- Performance thermique efficace, jusqu’à Uf = 1,4 W/(m²K)
- Connexion de coin fiable avec des supports systulés
- Installation rapide et facile sur place à l’aide d’un système d’ancrage dédié






