RÉSISTANCE DE CAMBRIOLEUR DE WICSTYLE
Sécurité personnelle et protection du bâtiment – pour votre bâtiment, vous avez besoin d’une solution qui peut être réalisée avec des systèmes en aluminium d’une manière wholistic et compatible. Ceci est réalisé par la série WICONA pour les fenêtres, les murs-rideaux et les portes. Chacun d’eux peut fournir dans la résistance de cambrioleur, en combinaison avec d’autres fonctions supplémentaires. Les différents niveaux de classes de résistance peuvent être atteints avec toutes les séries de portes WICSTYLE sans modifications visuelles des constructions, avec seulement un minimum de mesures supplémentaires sur la base de la conception standard.
Documentation
performance technique
RÉSISTANCE DE CAMBRIOLEUR SELON DIN EN 1627
- La norme actuellement valable pour la résistance aux cambrioleurs, DIN EN 1627, est entrée en vigueur dans les pays européens en 2011 et 2012. Il a remplacé les anciennes normes nationales. Les classifications ont été modifiées en classes RC1N à RC3, qui ne sont pas identiques aux anciennes classes WK1 à WK3, car les séquences d’essai ont été modifiées.
RÉSULTATS DES TESTS DE LA SÉRIE DE PORTES WICONA
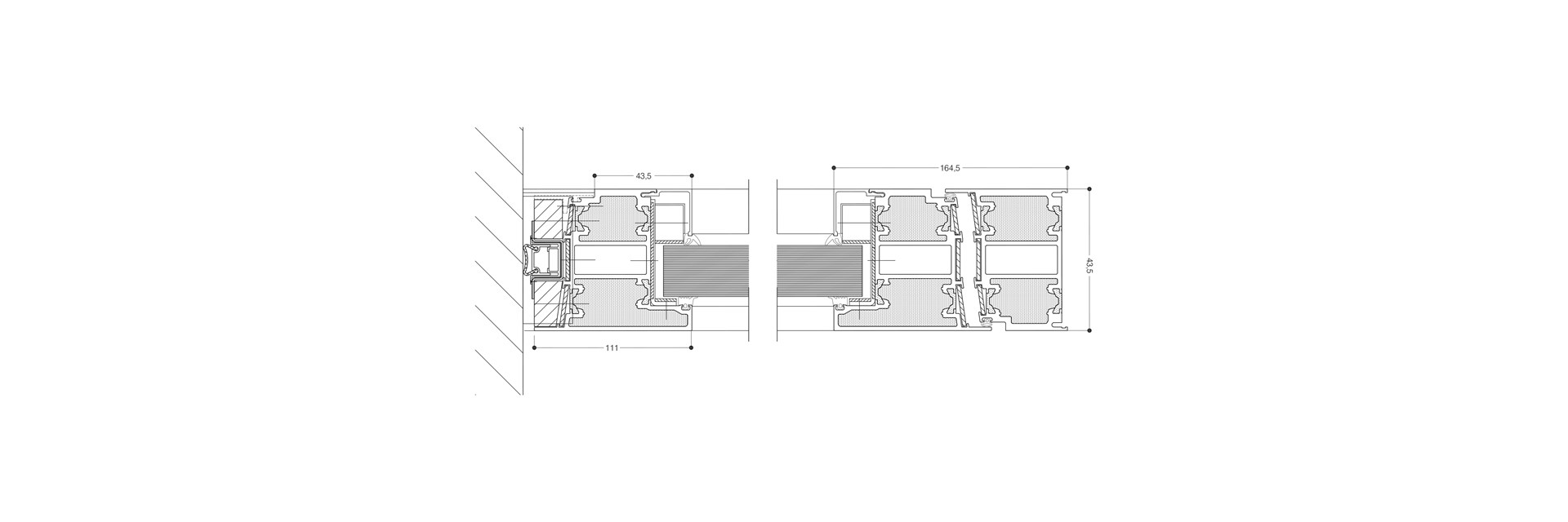
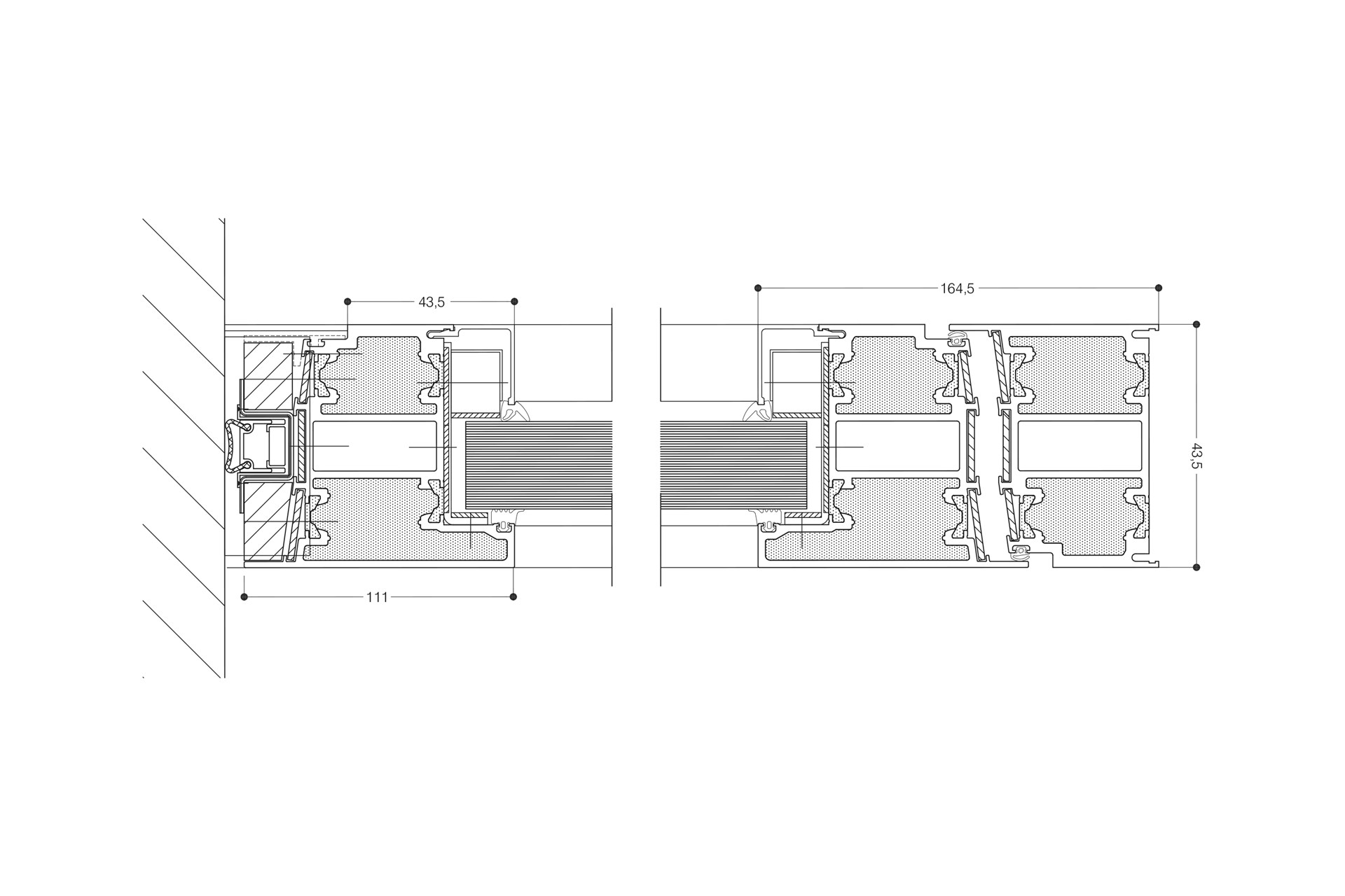
- Les séries de portes evo WICSTYLE 65 et WICSTYLE 75 avec plusieurs variantes ont été testées selon la nouvelle norme DIN EN 1627. Ils peuvent facilement être spécifiés et mis en œuvre sans aucune mesure supplémentaire selon cette nouvelle norme.
- Les portes de panique à double feuille complète ont été testées avec succès jusqu’à RC3
Résistance de cambrioleur selon DIN EN 1627 resp. DIN 1627 / classifications
WICSTYLE 65 evo / 75 evo Portes à charnières
WICSTYLE 65 evo / 75 evo Design classique
WICSTYLE 65N, non isolé
RC1N, RC2N, RC2, RC3
RC1N, RC2N, RC2, RC3
WK1, WK2




