WICLINE 75FP
Avec la série de fenêtres de protection contre les incendies WICLINE 75FP, le programme de protection contre les incendies WICONA est terminé. La con-struction est basée à 100 % sur une conception standard WICLINE 75 et ne peut pas être visuellement différenciée de cette conception. Le vitrage de protection contre l’incendie ouvert auto-fermé peut être mis en œuvre sous forme de fenêtres à poinçons, de fenêtres avec des environs ou intégrées dans un mur rideau de bâton de protection contre l’incendie WICTEC 50FP.
Documentation
performance technique
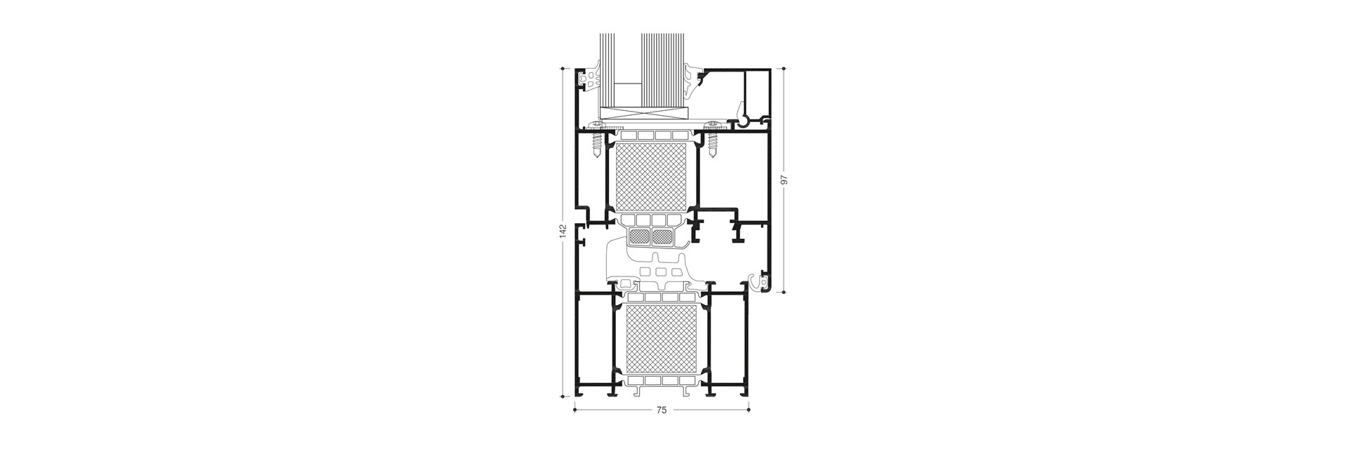
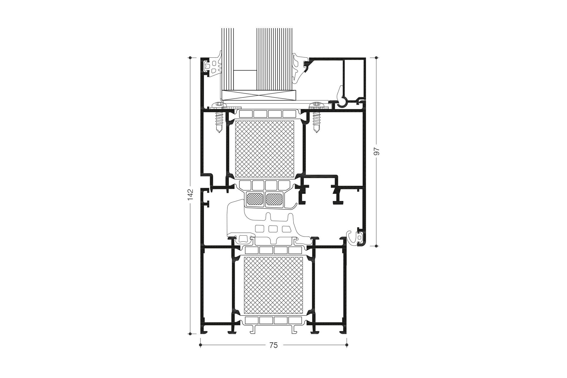
TECHNOLOGIE DE PROFIL
- Marquage CE selon DIN EN 16034 EI2 30-C2Sa
- Exécution dans les classes de protection contre l’incendie EI30 ou EW30
- Technologie brevetée de connexion de joint de coin et de cul pour la rigidité élevée des cadres et des ceintures
- Épaisseur de remplissage jusqu’à 49 mm
- En option avec cadre d’intégration pour les murs-rideaux de bâton WICTEC 50FP
ISOLATION THERMIQUE
- Valeurs Uf : jusqu’à 1,3 W/(m²K)
CONCEPT D’ÉTANCHÉITÉ
- Joint central à grand volume en trois variantes :
- Insertion linéaire de joint sans morceaux d’angle
- Avec les coins formés, aucun adhésif requis
- Cadres vulcanisés d’angle
Matériel
- Raccords de système lourd, avec charnières dissimulées, amortissement intégré de la position d’extrémité, angle d’ouverture max. 105°
- Poids de la ceinture:
- Jusqu’à 160 kg
- Tailles de ceinture (w x h): 1300 mm x 2300 mm




