WICSTYLE Skuddshemmende dør
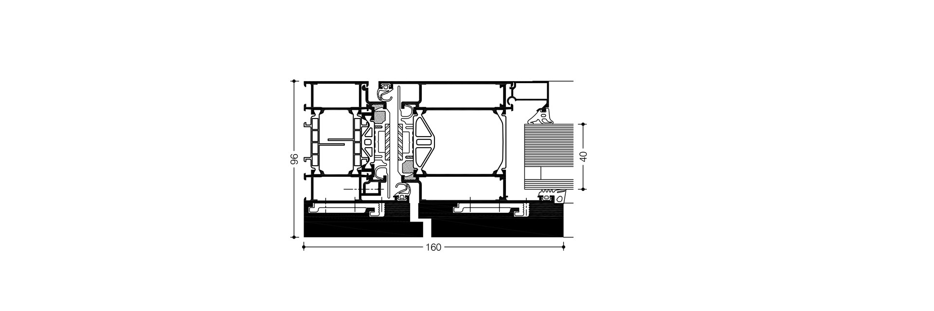
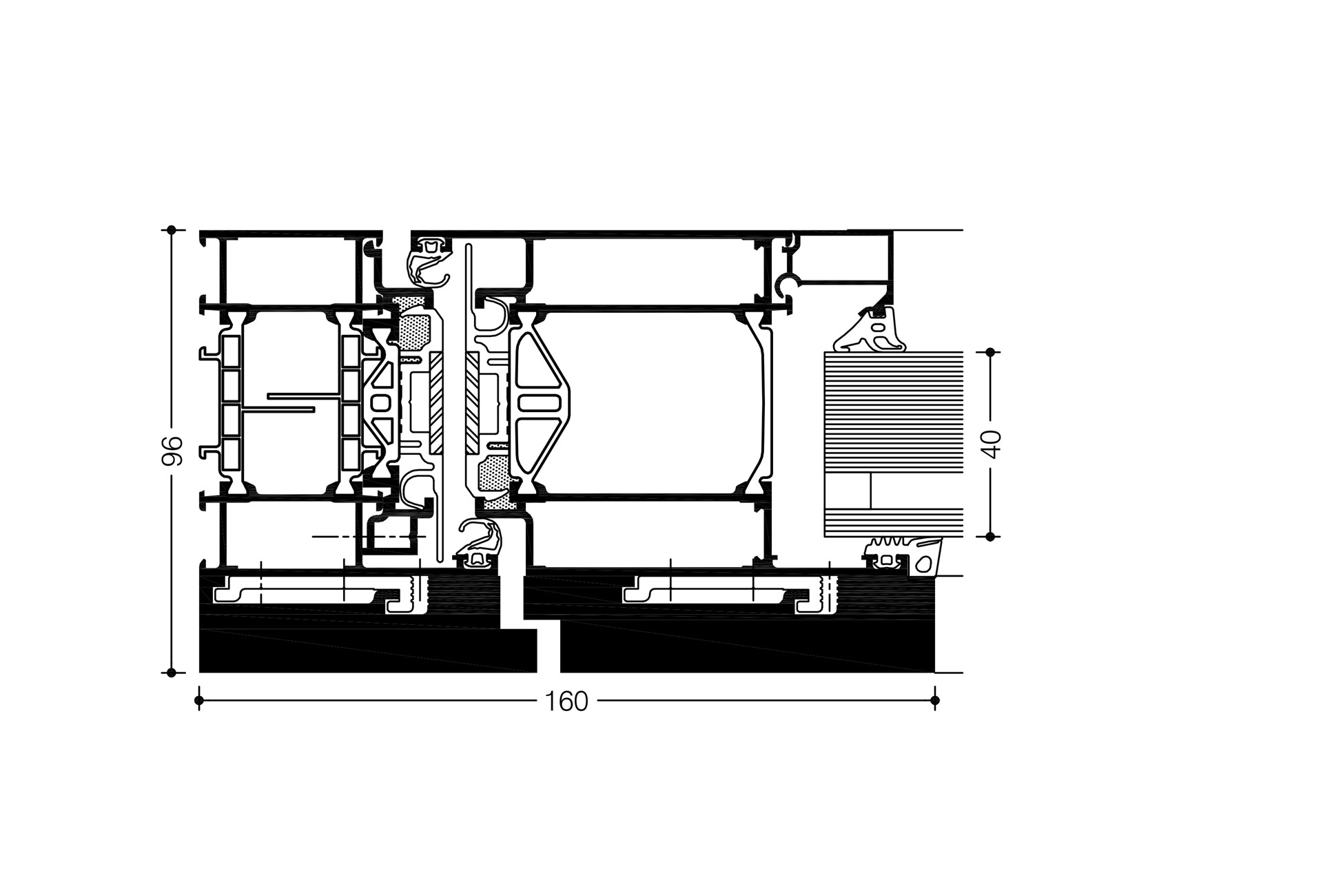
Den skuddhemmende døren er utviklet fra WICSTYLE evo-serien, etter WICONAs UNISYS-prinsipp. De skuddhemmende egenskapene oppnås ved å montere en spesialutviklet tilleggsprofil i aluminium utenpå standardprofilen, uten endring av dørens utseende. Produksjonsprosessen er den samme som for standardversjonen, men den må naturligvis suppleres med flerpunktlås og skuddsikkert glass.
Dokumentasjon
Egenskaper
Systemtester / CE produktsertifikat i henhold til NS EN 14351-1:2006+A2:2016
Generell informasjon
Se klassifisering av den enkelte dørserie
Tekniske ytelser
Skuddshemming etter NS EN 1522
- WICSTYLE 65 evo og WICSTYLE 75 evo er med enkle oppgraderinger testet etter ovennevnte norm, og er sertifisert i klassene FB4 S og FB4 NS.
- Skuddhemmende dører kan kombineres med innbruddshemmende utførelse i klassene RC1N, RC2N, RC2, RC3 i henhold til NS EN 1627.
Kombinasjonsmuligheter med andre produkter i skuddhemmende klasse FB4
- WICLINE 65 evo / WICLINE 75 evo vinduer
- WICTEC 50 fasadesystemer
Skuddshemming etter EN 1522 / klassifiseringer
WICSTYLE 65 evo / WICSTYLE 75 evo en- og tofløyet slagdør, innad- eller utadslående
FB4 S / FB4 NS


