WICLINE 65 evo / 75 evo
Con questa tipologia di apertura “salva-spazio”, l’anta può essere aperta a ribalta oppure fatta scorrere lateralmente in parallelo. La grande semplicità di manovra, il versatile posizionamento per la ventilazione senza ingombri interni, unitamente alle elevate prestazioni sono le caratteristiche di questa tipologia di apertura del sistema finestra in alluminio WICLINE evo.
Documentazione
Performances
Risultati dei test / CE product pass conforme ad UNI EN 14351-1:2006+A2:2016
Permeabilità all'aria
Tenuta all'acqua
Resistenza al carico del vento
Forze operative
Forza meccanica
Chiusura/apertura ripetuta
Garanzia di qualità
Gestione dell'ambiente
Classe 4
E750
Classe C5 / B5
Classe 1
Classe 4
Classe 2 (10 000 cicli)
Certificata secondo ISO 9001:2008
Certificata secondo ISO 14001
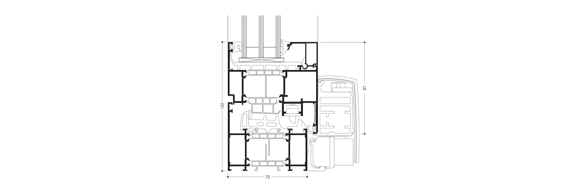
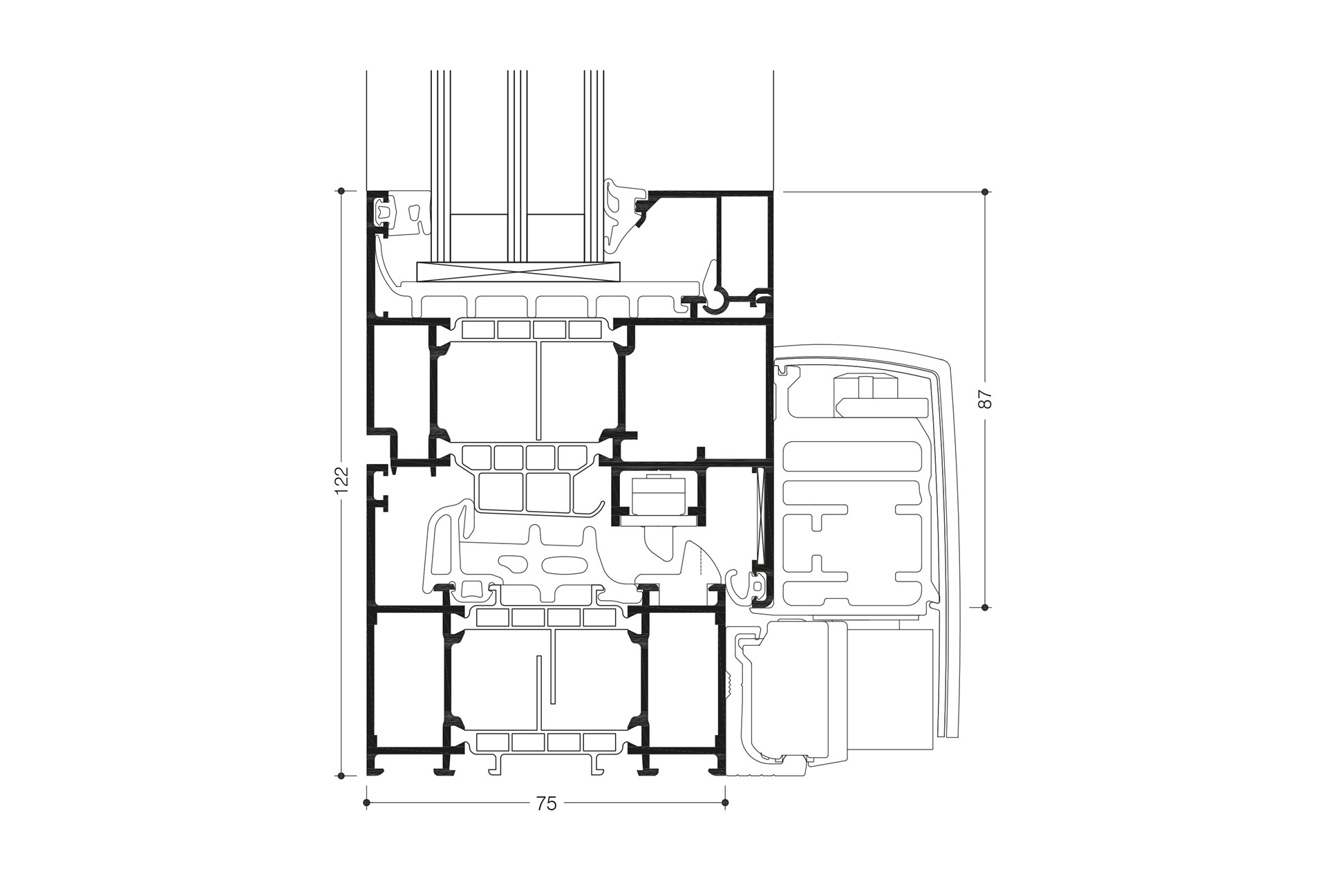
Caratteristiche tecniche
Tecnologia
- Sistema a camera multipla ad elevato isolamento termico con design simmetrico e qualità dell’assemblaggio garantita
- Sistema per connessioni d’angolo brevettato, per garantire la stabilità dei telai e delle ante
- Spessore dei tamponamenti fino a 69 mm
Isolamento termico
- Valori Uf fino a 1,2 W/(m²K)
Concetto di tenuta
- Speciale guarnizione centrale in telai vulcanizzati
Ferramenta
- Ferramenta a ribalta / scorrimento con opzione
- senza meccanismo di manovra
- con meccanismo di manovra (wfo)
- Peso dell’anta:
- fino a 160 Kg
- fino a 200 Kg (wfo)
- Dimensioni dell’anta (l x h):
- fino a 1685 mm x 2500 mm
- fino a 2000 mm x 2700 mm (wfo)
Compatibile con le serie porta WICSTYLE 65 evo e WICSTYLE 75 evo.


