WICSTYLE Antieffrazione
Per una sicurezza personale e protezione dell’edificio è necessaria una soluzione che possa essere realizzata con un sistema in alluminio progettato con un approccio globale. Ciò è possibile con le soluzioni finestre, facciate e porte WICONA. Ognuno di essi può essere progettato per resistere all’effrazione, con semplici accorgimenti ed aggiunte. Con l'aggiunta di pochi componenti, le varie classi di resistenza all'effrazione possono essere raggiunte con i sistemi porte WICSTYLE senza alcuna alterazione estetica della costruzione.
Documentazione
Performances
Risultati dei test / CE product pass conforme a UNI EN 14351-1
Informazioni generali
Vedere classificazioni relative alle rispettive
serie di porte WICSTYLE.
Technical performance
Resistenza all’effrazione secondo UNI EN 1627
- L’attuale normativa valida per la resistenza all’effrazione, UNI EN 1627, è in entrata in vigore nei Paesi europei nel 2011 e 2012. Essa sostituisce la precedente normative nazionale. Sono state introdotte le classificazioni da RC1N a RC3, non identiche alle precedenti classi da WK1 a WK3, poiché è stata modificata la sequenza dei test.
Risultati delle prove sulle porte WICONA
- Le nuove serie WICSTYLE 65 evo e WICSTYLE 75 evo, con alcune modifiche sul sistema base, sono state testate secondo la nuova norma UNI EN 1627. Esse possono essere facilmente classificate senza ulteriori prove, in conformità a tale normativa.
Resistenza all’effrazione secondo UNI EN 1627 o rispettive classificazioni DIN 1627
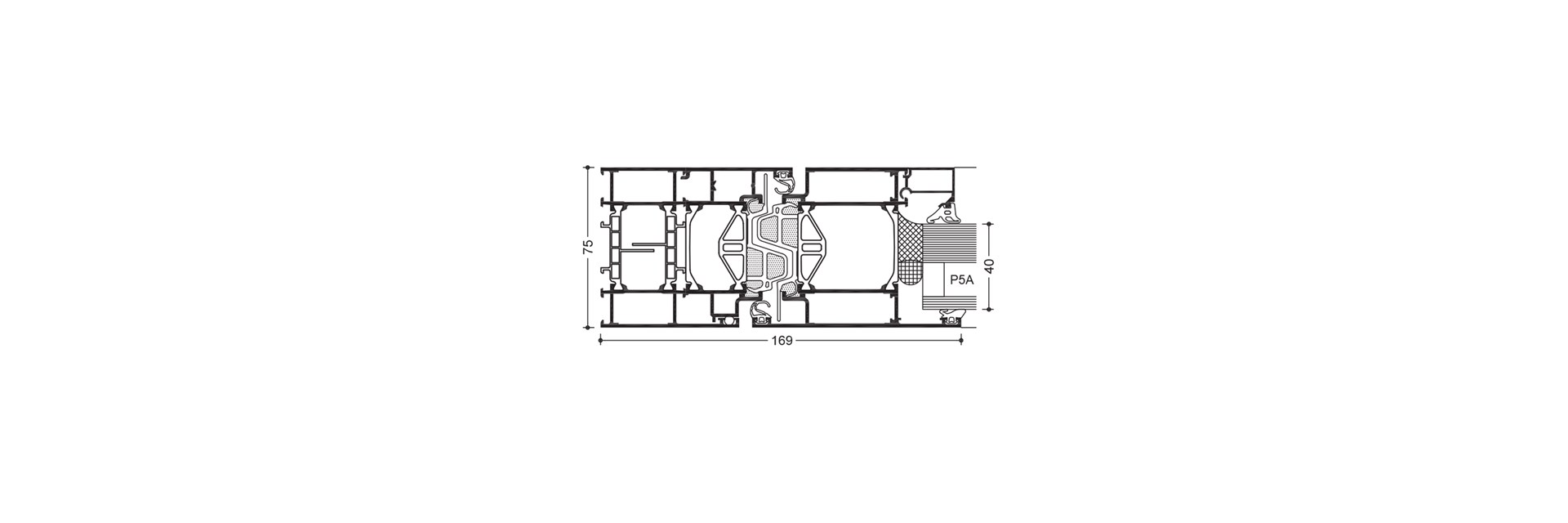
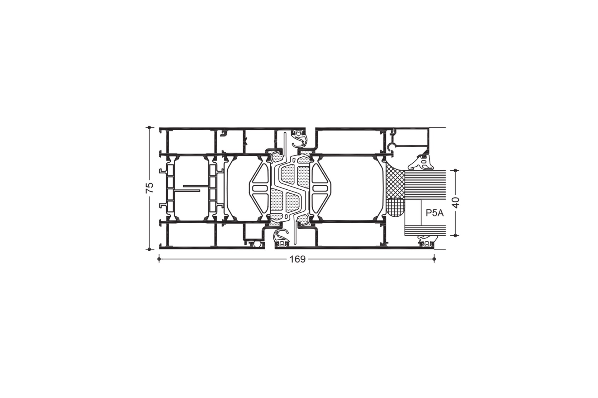
WICSTYLE 65 evo / 75 evo Porta a battente
WICSTYLE 65 evo / 75 evo Design classico
RC1N, RC2N, RC2, RC3
RC1N, RC2N, RC2, RC3


