WICLINE 65 evo/75 evo
Elegancki wygląd w połączeniu ze skuteczną wentylacją to cechy charakterystyczne okien aluminiowych WICLINE evo w wersji otwieranej na zewnątrz. Ukryte nożyce pozwalają na otwarcie na zewnątrz również skrzydeł o dużych wymiarach, z bezpiecznym blokowaniem uchylonego skrzydła w dowolnej pozycji. Specjalne profile ościeżnicowe do montażu w fasadzie tradycyjnej lub w ścianie osłonowej oraz szeroki wybór rozmiarów nożyc gwarantują maksymalną wszechstronność systemu.
Dokumentacja
Charakterystyka
Wyniki badań systemu/zatwierdzenie CE wg EN 14351-1:2006+A2:2016
Przepuszczalność powietrza
Wodoszczelność
Odporność na obciążenie wiatrem
Siły operacyjne
Nośność urządzeń zabezpieczających
Wytrzymałość mechaniczna
Powtarzane otwieranie / zamykanie
Odporność na uderzenie
Kontrola jakości
Zarządzanie środowiskowe
Klasa 4
E1200
Klasa C5 / B5
Klasa 1
Spełniono
Klasa 4
Klasa 2 (10 000 cykli)
Klasa 3
Certyfikowany zgodnie z normą ISO 9001:2008
Certyfikowany zgodnie z normą ISO 14001
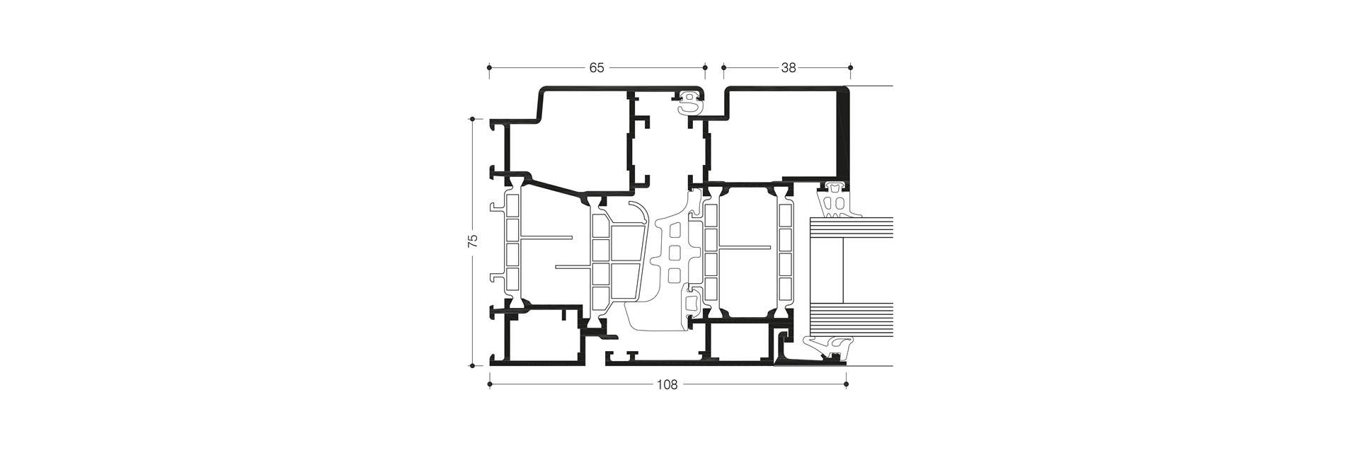
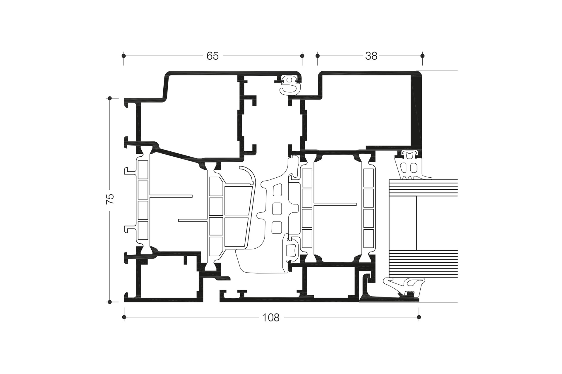
Parametry techniczne
Technologia profilu
- Wielokomorowy system o symetrycznej budowie i wysokiej izolacyjności cieplnej, z wysokiej jakości izolatorem termicznym
- Opatentowana technologia łączenia narożników i wykonywania połączeń doczołowych, zapewniająca wysoką sztywność ościeżnic i skrzydeł
- Grubość wypełnienia do 69 mm
- Opcjonalna możliwość integracji okna w ścianach osłonowych w technologii słupowo-ryglowej
Izolacja termiczna
- Wartość współczynnika Uf: do 1,5 W/(m²K)
- Wartość współczynnika Uw: do 1,0 W/(m²K) z potrójną szybą
Uszczelnienie
- Uszczelka centralna o dużej objętości z formowanymi narożami
Okucia
- Zintegrowane nożyce z regulacją pionową
- Obsługiwane ręcznie lub napędzane silnikiem
- Ciężar skrzydła: do 150 kg
- Wymiary skrzydła (szer. x wys.): do 2000 mm x 2200 mm




