WICLINE Skuddhemming
Personsikring og bygningsbeskyttelse – for ditt bygg trenger du en løsning som kan realiseres med aluminiumsystemer på en helhetlig og kompatibel måte. Dette kan oppnås med WICONAs serier for vinduer, dører og fasader, som alle kan utføres som skuddhemmende konstruksjoner, i kombinasjon med andre tilleggsfunksjoner. De forskjellige nivåene for skuddhemming kan oppnås med forskjellige WICLINE vindusprofilkombinasjoner, ganske enkelt ved å legge til en spesialutviklet aluminiumplanke på standardkonstruksjonen.
Dokumentasjon
Egenskaper
Systemtestresultater / CE produktsertifikat i henhold til NS EN 14351-1:2006+A2:2016
Generell informasjon
Se klassifi sering av den enkelte vindusserie.
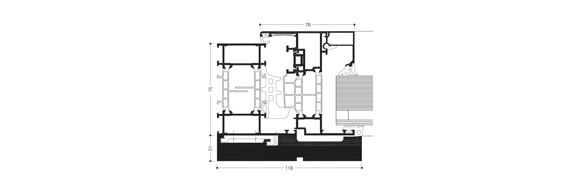
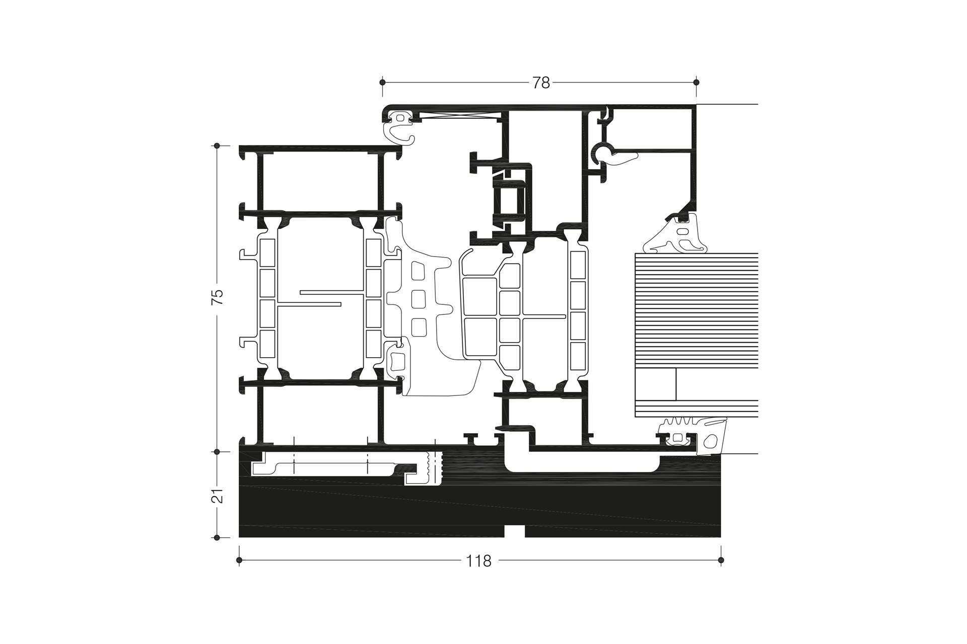
Tekniske ytelser
Skuddhemmende i henhold til NS EN 1522
- Krav til skuddhemming for vinduer er regulert i hele Europa ved standarden NS EN 1522
- De nye vindusseriene WICLINE 65 evo og WICLINE 75 evo er testet i henhold til denne standarden i ulike profilkombinasjoner, og har suksessfult bestått klassene FB4 S og FB4 NS
- De skuddhemmende klassene FB4 S og FB4 NS kan utføres for ulike åpningstyper, som enkeltvindu eller som vindusbånd.
- Den skuddhemmende utførelsen kan kombineres med innbruddshemming i klassene RC1N, RC2N, RC2 og RC3 i henhold til NS EN 1627.
Skuddhemmende i henhold til NS EN 1522 / klassifikasjoner
WICLINE 65 evo/ 75 evo Side, dreie/vipp, vipp, vipp/dreie, Fransk vindu
WICLINE 65 evo/ 75 evo Overlys
FB4 S / FB4 NS
FB4 S / FB4 NS
Mulige kombinasjoner med andre WICONA produktserier i skuddhemmende klasse FB4
- Dører WICSTYLE 65 evo / WICSTYLE 75 evo
- Post-losholt-fasader WICTEC 50


