WICTEC 50A
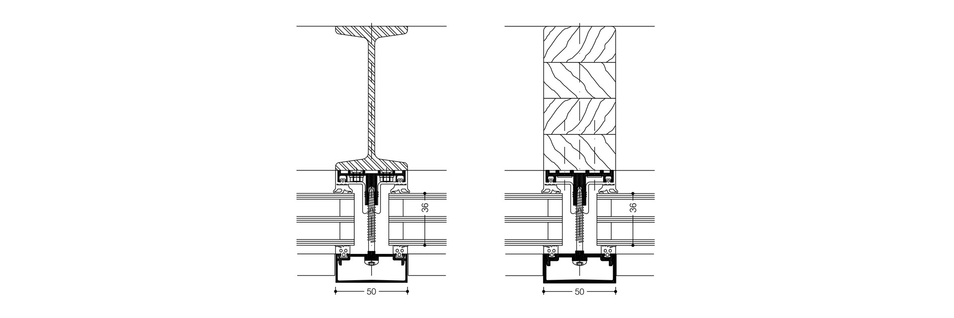
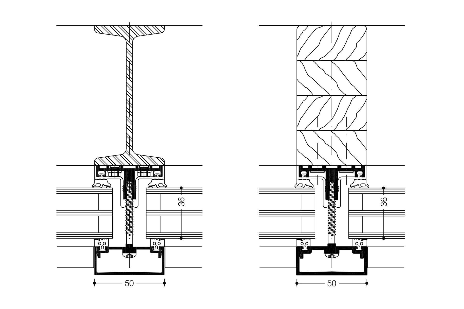
I visse tilfeller vil det av hensyn til statikk eller estetikk være en fordel å utføre fasaden i kombinasjon med en primær bærestruktur i treverk eller stål. WICTEC 50A har alle systemtekniske fordeler, men uten innvendige hulprofiler. Dermed kan profilene monteres direkte på en bærekonstruksjon i annet materiale samtidig som det ytre uttrykket fremstår som et ordinært WICTEC 50 system.
Egenskaper
Systemtestresultater / CE produktsertifikat i henhold til NS EN 13830
Luftgjennomstrømming
Regntetthet
Motstand mot vindlast
Motstand mot støt
Innbruddshemming
Skuddhemming
Kvalitetssikring
Miljøledelse
Klasse AE
RE 1200
2000 / –3200 Pa, sikkerhet 3000 / –4800 Pa
Klasse E5 / I5
RC1N, RC2N, RC2
FB4
Sertifisert iht. ISO 9001:2008
Sertifisert iht. ISO 14001
Tekniske ytelser
Systembredde
Bredde bæreprofi ler
Bærekonstruksjon
50 mm
Fra 50 mm
Trestendere, stålprofiler, stålrør
Systemteknologi
- Bærestrukturer i treverk eller stål designes fritt i bredder fra 50 mm
- Samme WICTEC påbygningsprofil benyttes horisontalt og vertikalt
- Horisontale og vertikale pakningsprofiler med ulike dreneringsnivåer sikrer overlapping og tetthet i profilkryss
- Enkel montering av aluminiumprofilene mot underkonstruksjon med skruer
- Ved montering på stålkonstruksjon med tykkelse > 4 mm kan stålplatespiker for boltepistol benyttes
- Et ideelt alternativ for ulike fasade- og takkonstruksjoner
- Montasje av glass fra utsiden med dekklister med synlige eller skjulte skruer


