WICSLIDE 65
L'elemento scorrevole WICSLIDE 65 combina in modo elegante grandi dimensioni con eccellenti caratteristiche termiche. Possibilità di personalizzazione grazie ai numerosi dettagli come un design delle ante rettilineo e uno arrotondato, un drenaggio a vista o uno a scomparsa. Le numerose combinazioni dei profili ampliano la libertà di progettazione. La soglia ribassata opzionale soddisfa i requisiti per un facile accesso per persone con mobilità ridotta, ma è anche ideale ad es. per ingressi su balconi o terrazze.
Documentazione
Performances
Risultati dei test / CE product pass conforme a UNI EN 14351-1
Permeabilità all'aria
Tenuta all'acqua
Resistenza al carico del vento
Performance acustiche
Forze operative
Resistenza alla corrosione della ferramenta
Garanzia di qualità
Gestione dell'ambiente
Classe 4
Classe 7A
Classe A3
RA,tr = 36 dB
Classe 1
Classe 4
Certificata secondo ISO 9001:2008
Certificata secondo ISO 14001
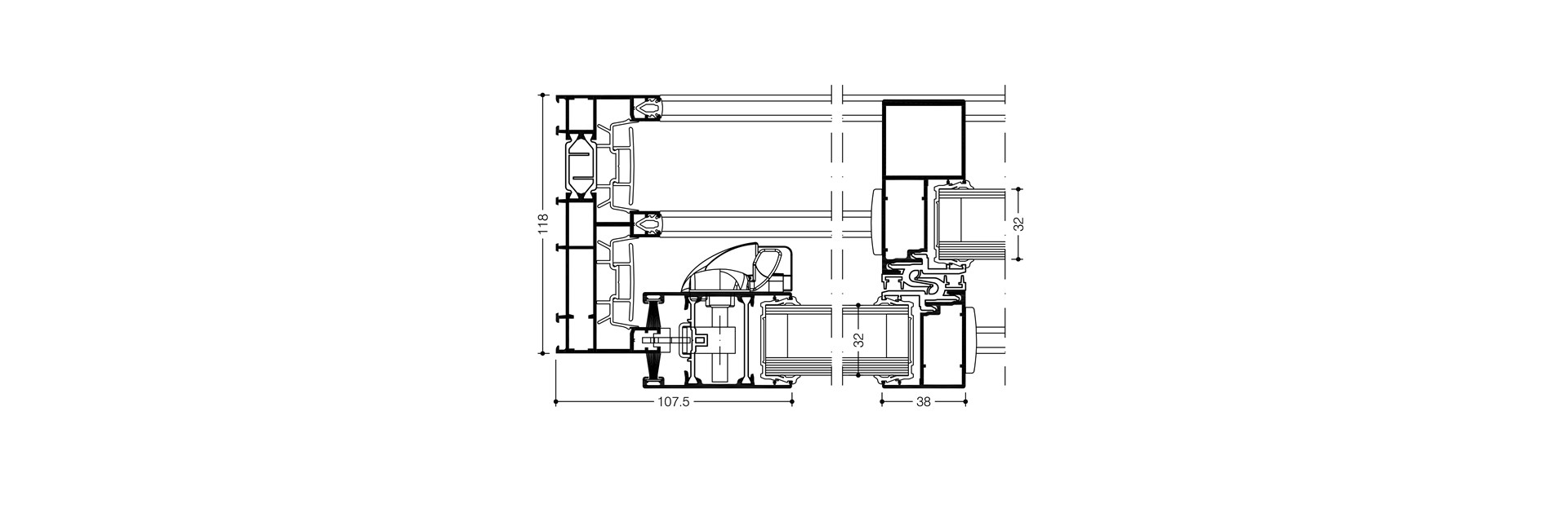
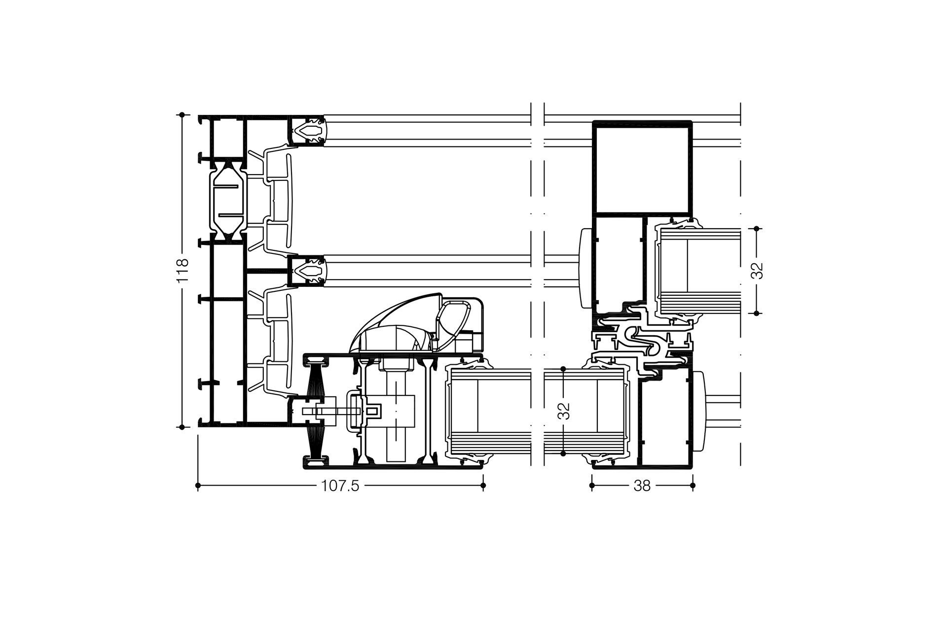
Caratteristiche tecniche
Tecnologia
- Elementi scorrevoli con profondità 65 mm (due binari) o 118 mm (tre binari)
- Applicazione a due, tre, quattro o sei ante
- Tecnica di connettori d’angolo brevettata per una elevata resistenza dei componenti e un consumo ridotto di adesivo
- Spessori di tamponamento: 24 mm, 28 mm o 32 mm
- Drenaggio a scomparsa o a vista
- Profili d’anta in stili diversi, diritti o arrotondati
- Possibilità di personalizzare la tecnica di connessione dei profili
- Optional: soglia ribassata
Isolamento termico
- Uw fino a 1,5 W/(m²K) con Ug = 1,0 W/(m²K)
Ferramenta
- Peso massimo anta con carrello singolo: 80 kg
- Peso massimo anta con doppio carrello: 220 kg
- Dimensioni dell’anta (l x h): fino a 2400 mm x 2500 mm
- Maniglie dall’esclusivo design WICONA



