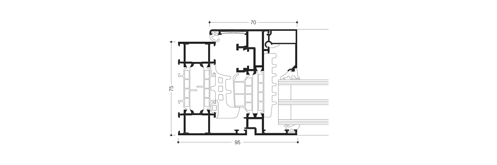
WICLINE 75 evo
Con una profondità di 75 mm, WICLINE 75 evo raggiunge le più alte prestazioni di isolamento termico e resistenza strutturale. Con la sua prestazione tecnica superiore, questa finestra in alluminio soddisfa tutte le richieste architettoniche del futuro. In Svizzera, WICLINE 75 evo è stata la prima finestra in alluminio ad essere certificata come modulo Minergie-P.
Documentazione
Performances
Risultati dei test / CE product pass conforme ad UNI EN 14351-1:2006+A2:2016
Permeabilità all'aria
Tenuta all'acqua
Resistenza al carico del vento
Performance acustiche
Forze operative
Capacità di carico dei dispositivi di sicurezza
Forza meccanica
Chiusura/apertura ripetuta
Resistenza alla corrosione della ferramenta
Classe antieffrazione
Resistenza ai proiettili
Garanzia di qualità
Gestione dell'ambiente
Classe 4
E900
Classe C5 / B5
Rw (C; Ctr) = 47 (–1; –4) dB
Classe 1
Conforme
Classe 4
Classe 3 (20 000 cicli)
Classe 5
RC1N, RC2N, RC2, RC3
FB4 S, FB4 NS (a seconda della combinazione di profili)
Certificata secondo ISO 9001:2008
Certificata secondo ISO 14001
Caratteristiche tecniche
Tecnologia
- Sistema a camera multipla ad elevato isolamento termico con design simmetrico e qualità dell’assemblaggio garantita
- Sistema per connessioni d’angolo brevettato, per garantire la stabilità dei telai e delle ante
- Spessore dei tamponamenti fino a 69 mm
Isolamento termico
- Valori Uf fino a 1,2 W/(m²K)
- Valore Uw fino al 0,72 W/(m²K) con vetro triplo
- Certificata come modulo Minergie-P con Uw ≤ 0,8 W/(m²K)
Concetto di tenuta
- Speciale guarnizione centrale con tre opzion:
- guarnizione perimetrale continua, senza giunti negli angoli
- angoli preformati senza necessità di incollaggio
- telai vulcanizzati
Ferramenta
- Sistema ad elevata portata con:
- cerniere in vista, verniciatura a polveri o anodizzazione in tutti i color
- cerniere nascoste con frizione di fine corsaintegrata, angolo di apertura max. 105°
- Peso dell’anta:
- con cerniere nascoste: fino a 160 Kg
- con cerniere in vista: fino a 200 Kg
- su richiesta: fino a 300 Kg
- Dimensioni dell’anta (l x h): fino a 1700 mm x 2500 mm, finestra per tetti fino a 2500 mm x 1700 mm
- Limitatore di apertura opzionale con varie configurazioni
Opzioni aggiuntive
Opzioni aggiuntive
- Anta a scomparsa
- Design classico
- Telaio ad inserimento per facciate continue
- Lucernario con asta a leva, manovella o motorizzazione
- Bilico orizzontale o verticale
- Scorrevole parallelo, con o senza meccanismo
- Apertura a sporgere con frizioni
- Apertura a sporgere con cerniere
- Portafinestra con soglia ribassata, ad una o due ante, apertura interna o esterna
Compatibile con le serie porta WICSTYLE 65 evo e WICSTYLE 75 evo.

