WICLINE 75 evo
Completamente integrabile nei sistemi finestra WICLINE 75 e sistemi per facciate WICTEC
Documentazione
Performances
Risultati dei test / CE product pass conforme ad UNI EN 14351-1:2006+A2:2016
Permeabilità all'aria
Tenuta all'acqua
Resistenza al carico del vento
Isolamento acustico
Classe antieffrazione
Classe 4
Classe 9A
Classe C5 / B5
Fino a 42 dB
RC1N, RC2N, RC2
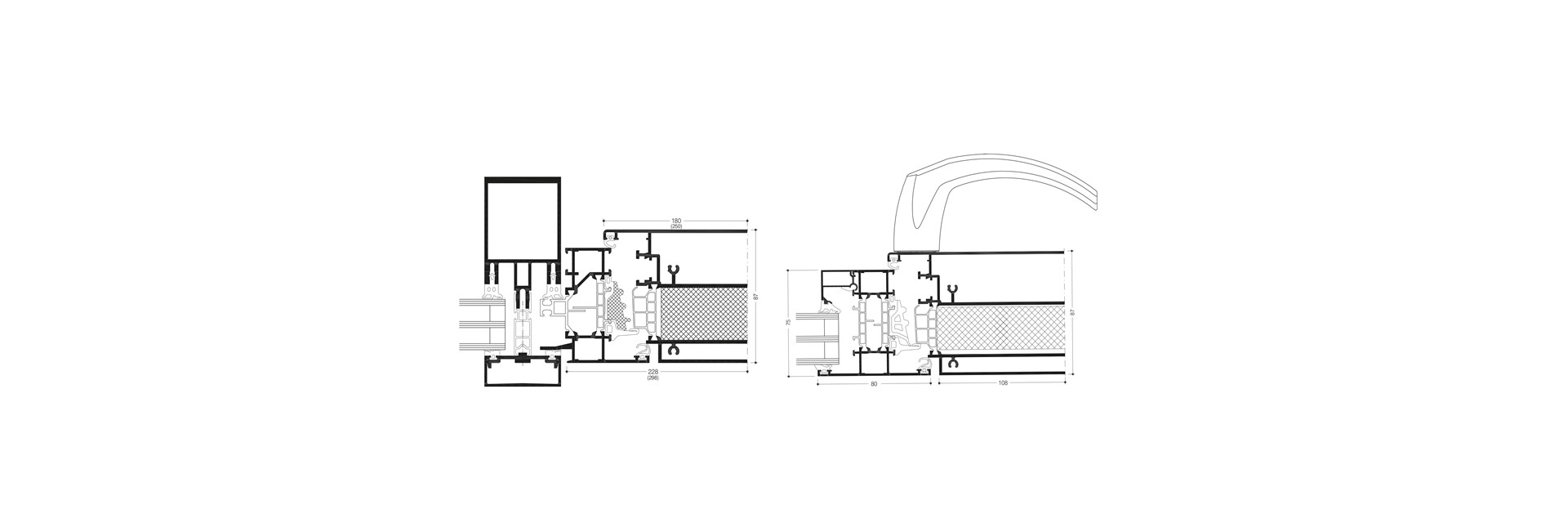
Caratteristiche tecniche
Caratteristiche principal
- Larghezze anta da 170 a 330 mm, Dimensioni standard 180 e 250 mm
- Dimensioni dell’anta (l x h): 180 mm x 3 000 mm o 250 mm x 3 000 mm
- Adeguamento rapido ed economico della larghezza anta nell’immobile
- Profilato di tenuta perimetrale sottilissimo tra anta e controtelaio – solo 6 mm come nelle finestre WICONA standard
- Altezza anta 3 m incl. protezione antieffrazione fino a RC2
- Lavorazioni semplici e razionali, esclusivamente con tagli rettilinei a 90° / a lembi intagliati
- Esaustive verifiche di sistema a norma UNI EN 14351-1
dimostrano l'elevata qualità della tecnologia dei sistemi
solamento termico
- Valore Uf adattabile fino ad 1,2 W/(m²K)
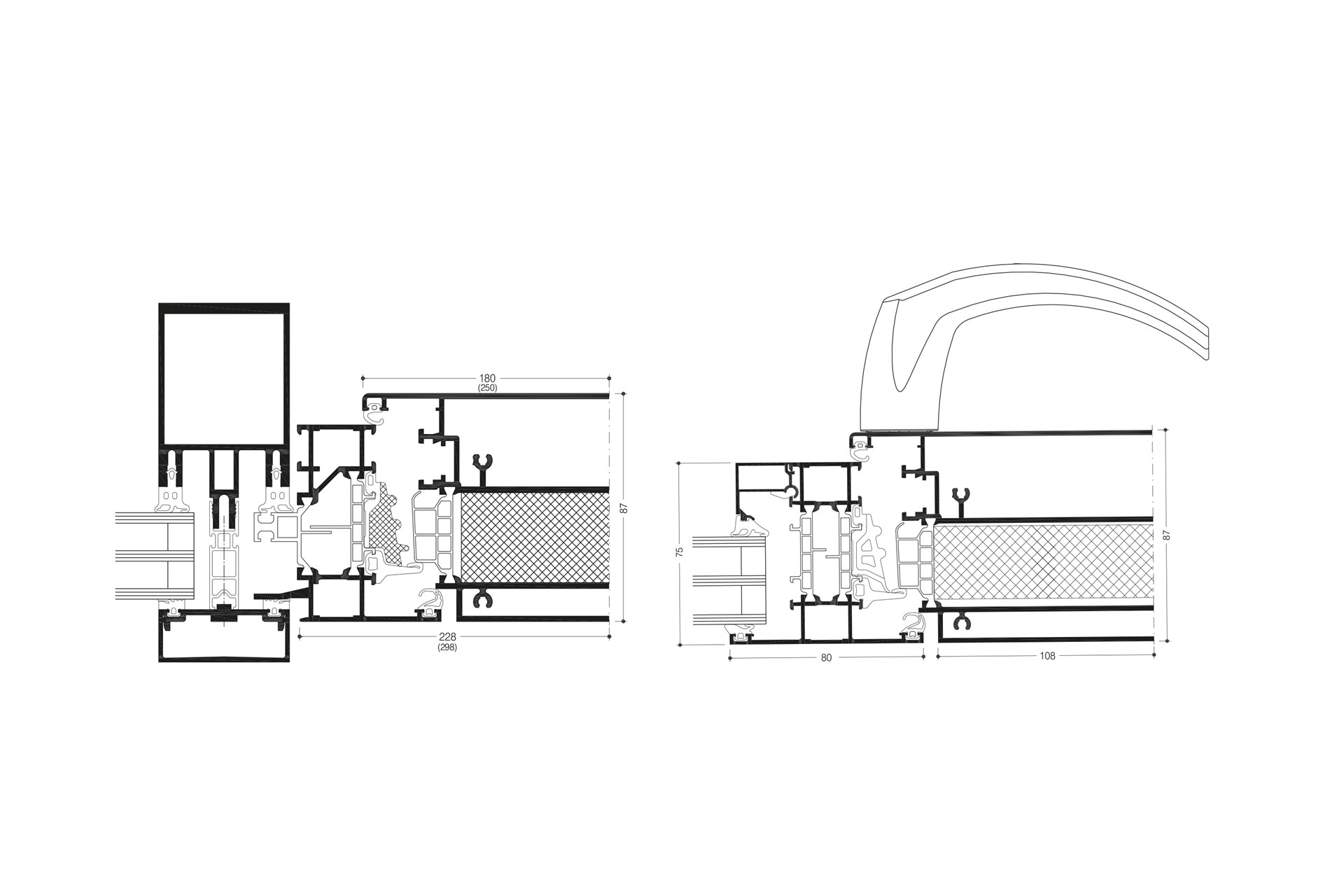
Ferramenta
- Ferramenta di sistema di alta qualità con sistema di posizionamento diretto (DPS). Montaggio componenti in qualsiasi ordine, a scelta:
- Cerniere a sporgere verniciabili o anodizzabili
- Cerniere a scomparsa con finecorsa integrato di smorzamento
- Pesi anta: 80 kg
- Limitatore di apertura opzionale
- Resistenza all'effrazione RC1N, RC2N e RC2
Completamente integrabile nei sistemi finestraWICLINE 75 e sistemi per facciate WICTEC
Trasmissione senza catena a scomparsa
- Massima sezione di ventilazione grazie ad apertura a 90°
- Esente da manutenzione e prova di manomissione
- Angolo di apertura regolabile
- Pilotaggio tramite pulsante di ventilazione, telecomando o automazione edifici
- Sblocco di emergenza invisibile
- Nessuna catena a motore a sporgere nella superficie di apertura


