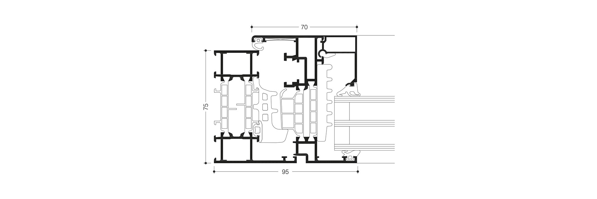
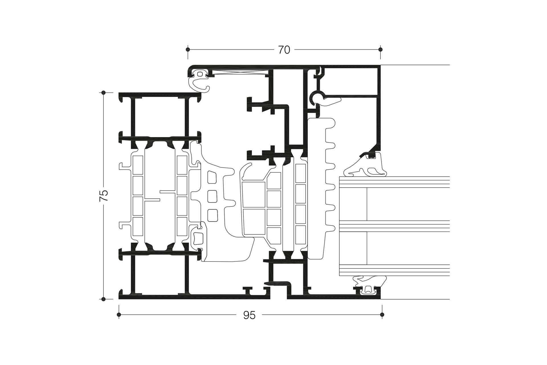
Fenêtre ouvrant visible evo 75mm
La gamme WICLINE evo rassemble des menuiseries aluminium complémentaires, toutes ayant pour point commun de proposer des performances techniques exceptionnelles. Soucieuse de l’environnement, la marque WICONA utilise tout son savoir-faire technologique pour lutter contre les déperditions thermiques et construire les bâtiments de demain, respectueux de l’environnement et proposant un niveau de qualité de vie exceptionnel à leurs utilisateurs.
Les fenêtres aluminium à ouvrant visible WICLINE 75 evo répondent à ces caractéristiques en affichant d’excellents résultats en termes d’isolation thermique. Avec une profondeur de profilé de 75 mm, elles offrent en plus une stabilité structurelle optimale la rendant parfaitement adaptée aux besoins architecturaux modernes. WICLINE 75 evo a ainsi notamment été la première fenêtre métallique à obtenir la certification de fenêtre en module Minergie-P en Suisse.
Disponible en fenêtres aluminium à ouvrant visible, la gamme de fenêtres WICLINE 75 evo propose également de nombreuses options, facilitant notamment l’accès PMR.
Documentation
Performances techniques
Résultats d'essais du système / produit avec certification CE conforme à la norme EN 14351-1:2006+A2:2016
Perméabilité à l’air
Étanchéité à l'eau
Résistance au vent
Performance acoustique
Efforts de manœuvre
Capacité de résistance des dispositifs de sécurité
Résistance mécanique
Ouvertures / Fermetures répétées
Résistance à la corrosion de la quincaillerie
Anti-effraction
Résistance pare-balles
Gestion environnementale
Classe 4
E900
Class C5 / B5
Rw (C; Ctr) = 47 (–1; –4) dB
Classe 1
Adéquate
Classe 4
Classe 3 (20 000 cycles)
Classe 5
RC1N, RC2N, RC2, RC3
FB4 S, FB4 NS (en fonction des combinaisons de profilés)
Certification selon la norme ISO 14001
Caractéristiques
Technologie des profilés
- Système multi-chambres à isolation thermique élevée et structure symétrique
- Technologie brevetée d'assemblage des fonds de joint et des angles pour une grande rigidité des châssis et des vantaux
- Épaisseur de remplissage jusqu'à 69 mm
Isolation thermique
- Valeurs Uf : jusqu'à 1,2 W/(m²K)
- Valeurs Uw : jusqu'à 0,87 W/(m²K) pour les vantaux, jusqu'à 0,72 W/(m²K) pour les vitrages fixes, triple vitrage
- Module certifié Minergie-P Uw 0,8 W/(m²K)
Concept des joints d'étanchéité
- Joint central en trois variantes :
- Installation circulaire sans pièce d'angle
- Avec des angles formés, sans adhésif
- Châssis vulcanisés pour les angles
Quincaillerie
- Quincaillerie des systèmes pour charges lourdes avec :
- Paumelles visibles, laquées ou anodisées de toutes les couleurs
- Paumelles cachées avec amortissement de fin de course intégré, angle d'ouverture max. 105° - Poids du vantail :
- Paumelles cachées : jusqu'à 200 kg
- Paumelles visibles : jusqu'à 200 kg
- Sur demande : jusqu'à 300 kg - Dimensions du vantail : L 1 700 mm et H 2 500 mm ou L 2 500 et H 1 700 mm
- Limiteur d’ouverture en option
- Compatible avec poignée cachée
Compatible avec les gammes de portes WICSTYLE 65 evo et WICSTYLE 75 evo
Finitions
- Qualanod
- Qualicoat ou Qualicoat Seaside
- Qualimarine ou Qualimarine Seaside
Designs supplémentaires
- Vantail ouvrant caché
- Design classique
- Châssis d'intégration pour les façades Stick (aspect grille)
- Vasistas avec manette manuelle, manivelle ou moteur
- Fenêtre pivotante ou basculante
- Fenêtre coulissante parallèle, avec ou sans effort de manoeuvre
- Fenêtre à l'italienne
- Fenêtre à projection
- Portes-fenêtres avec seuil PMR, porte à battant simple ou double, ouverture vers l’intérieur ou l’extérieur
Applications


