Fenêtre design et durable - WICLINE 75 MAX
La gamme WICLINE MAX est le symbole de l’innovation de pointe défendue par WICONA. Elle se manifeste notamment par un design élégant et épuré au maximum, un confort d’utilisation maximal, et fait la part belle à la quantité d’éclairage disponible pénétrant dans une pièce. Elle fait également une utilisation maximale des matières recyclées au sein de l’offre.
Grâce au système de vantail caché proposé par WICLINE 75 MAX, ouvrants et fixes sont indissociables de l’extérieur du bâtiment. À l’intérieur, les lignes restent également claires et continues grâce à des paumelles et ferrures intelligemment dissimulées. Pour parfaire l’harmonie de la fenêtre aluminium, la poignée se cache elle aussi dans le vantail. Cette idée de design innovante a été récompensée par les jurys d'experts internationaux de l'iF Product Design Award 2018, du Red Dot Design Award 2018 et du German Design Award 2019.
Les vantaux cachés de la gamme WICLINE 75 MAX de WICONA sont conçus à partir d’aluminium recyclé Hydro CIRCAL, obtenu à partir de déchets post-consommation. Pour l’industrie de la construction, il est synonyme de haute qualité et de réduction de l’empreinte carbone liée à sa production.
Documentation
Performances techniques
Essais du système / Passeport produit avec marquage CE selon la norme EN 14351-1:2006+A2:2016
Perméabilité à l’air
Étanchéité à l'eau
Résistance au vent
Performance acoustique
Efforts de manœuvre
Résistance mécanique
Ouvertures / Fermetures répétées
Résistance aux chocs
Classe 4
E750
Classe C5 / B5
Rw jusqu'à 48 dB
Classe 1
Classe 4
Classe 2 (10 000 cycles)
Classe 2
Caractéristiques
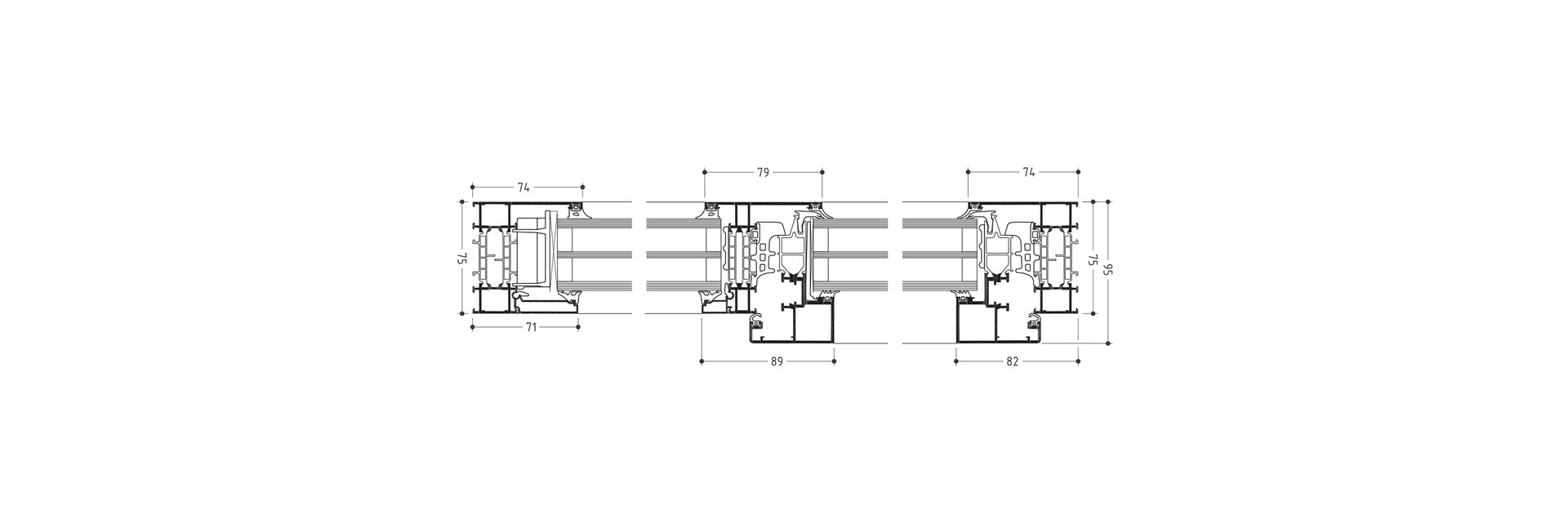
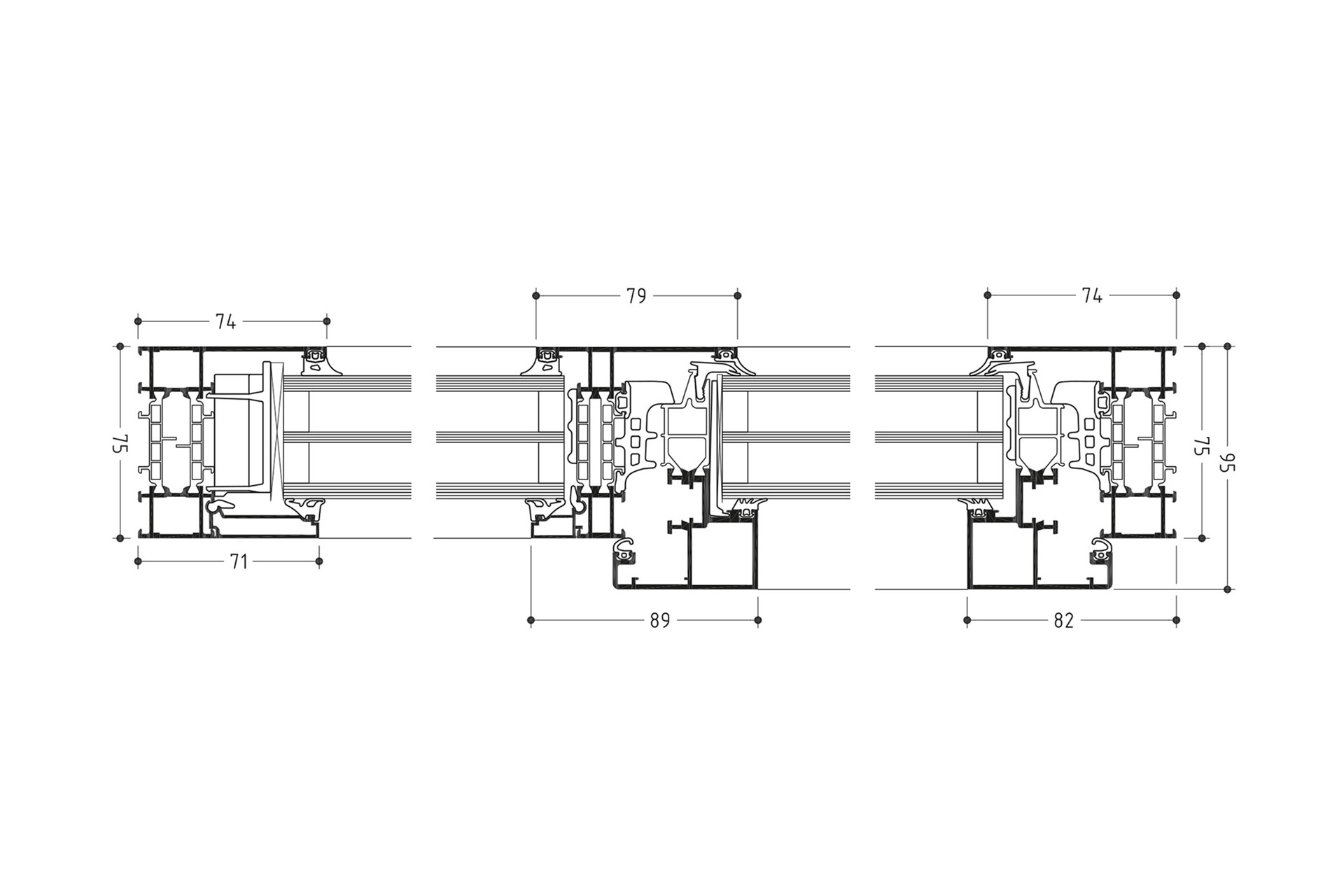
Technologie des profilés
Profondeur du châssis
Hauteur de la feuillure du châssis
Profondeur de construction globale du système de profilé
Largeur max. du vantail
Hauteur max. du vantail
Épaisseur de remplissage
75 mm
44 mm
95 mm
jusqu'à 1 400 mm
jusqu'à 2 250 mm
jusqu'à 50 mm
Vues des profilés
Profilés de châssis
Profilés de traverse
Profilés de vantail, cachés
74 mm
79 mm
57 mm (vue interne)
Isolation thermique
- Valeur Uw jusqu'à 0,81 W/(m²K) pour une fenêtre de taille standard de 1 230 mm x 1 480 mm, Ug = 0,5 W/(m²K)
Quincaillerie
- Compatible avec poignée cachée
Finitions
- Qualanod
- Qualicoat ou Qualicoat Seaside
- Qualimarine ou Qualimarine Seaside
Types d'ouverture
- Fenêtre oscillo-battante, fenêtre à la française, fenêtre OB logique, soufflet
Applications


