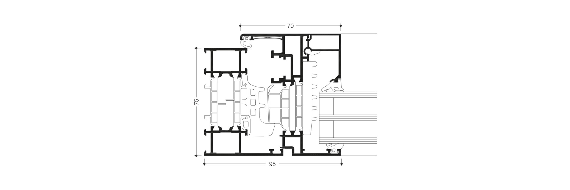
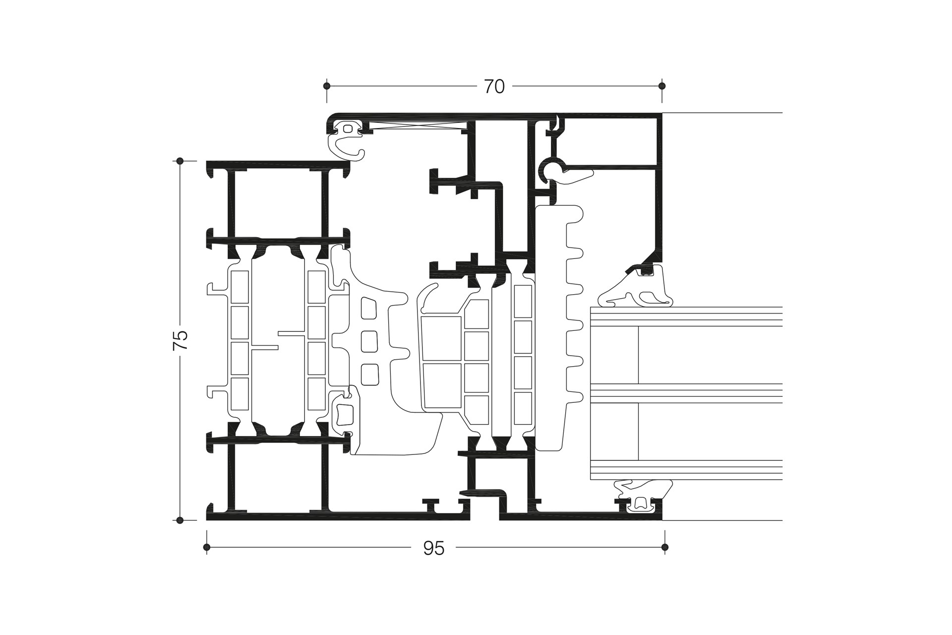
WICLINE 75 evo - Hoja vista
La ventana de aluminio WICLINE 75 evo, además de ofrecer unas magníficas prestaciones a todos los niveles, es la gama que mejor se adapta a las exigencias arquitectónicas requeridas ya que ofrece múltiples aplicaciones.
Documentación
Características
Resultados de ensayo / Marcado CE de producto según DIN EN 14351-1:2006+A1:2010
Permeabilidad al aire
Estanqueidad al agua
Resistencia a cargas del viento
Aislamiento acústico
Fuerza de maniobra
Capacidad de carga ante situación de riesgo
Resistencia mecánica
Durabilidad a ciclos de apertura y cierre
Resistencia a la corrosión de herrajes
Protección al robo
Protección antibalas
Garantía de calidad
Gestión medioambiental
Clase 4
E900
Clase C5 / B5
Rw (C; Ctr) = 47 (–1; –4) dB
Clase 1
Cumple requisitos
Clase 4
Clase 3 (20.000 ciclos)
Clase 5
RC1N, RC2N, RC2, RC3
FB4 S, FB4 NS (depende de las combinaciones de perfil)
Certificado según ISO 9001:2008
Certificado según ISO 14001
Prestaciones técnicas
Tecnología de los perfiles
- Módulo de 75 mm con sistema de perfil multicámara de alto aislamiento.
- Tecnología patentada en las uniones de la carpintería, que asegura la rigidez adecuada en marcos y hojas.
- Capacidad de acristalamiento hasta 69 mm.
Aislamiento térmico
- Valores Uf: hasta 1.2 W/(m²K).
- Valores Uw: hasta 0.87 W/(m²K) en practicables, hasta 0.72 W/(m²K) en fijos con triple acristalamiento.
- Certificado Minergie-P module Uw 0.8 W/(m²K).
Concepto de sellado
- Junta central de gran dimensión, de 3 tipologías:
-
Instalación perimetral, continuo en esquinas.
-
Con esquinas preformadas, sin necesidad de uso de adhesivos de unión.
-
Marcos vulcanizados.
-
Herrajes
- Opción herraje visto u oculto.
- Bisagras ocultas, con final de carrera amortiguado. Ángulo máximo de apertura: 105º.
- Pesos de hoja:
- Bisagras ocultas: hasta 160 kg.
- Bisagras vistas: hasta 200 kg.
- Bajo demanda: hasta 300 kg.
- Dimensiones de hoja (b x h): hasta 1700 mm x 2500 mm, lucernarios hasta 2500 x 1700 mm.
- Opción de instalación de limitador de apertura.
Diseños adicionales
- Hoja oculta.
- Diseño clásico.
- Marco de integración para fachadas stick.
- Lucernario con apertura de palanca manual, manivela o motorizada.
- Ventana pivotante, horizontal o vertical.
- Ventana oscilo-paralela.
- Ventana de apertura italiana.
- Opción balconera con perfil suelo PMR, de hoja doble o simple, apertura interior o exterior.
Compatible con las series de puertas WICSTYLE 65 evo y WICSTYLE 75 evo

