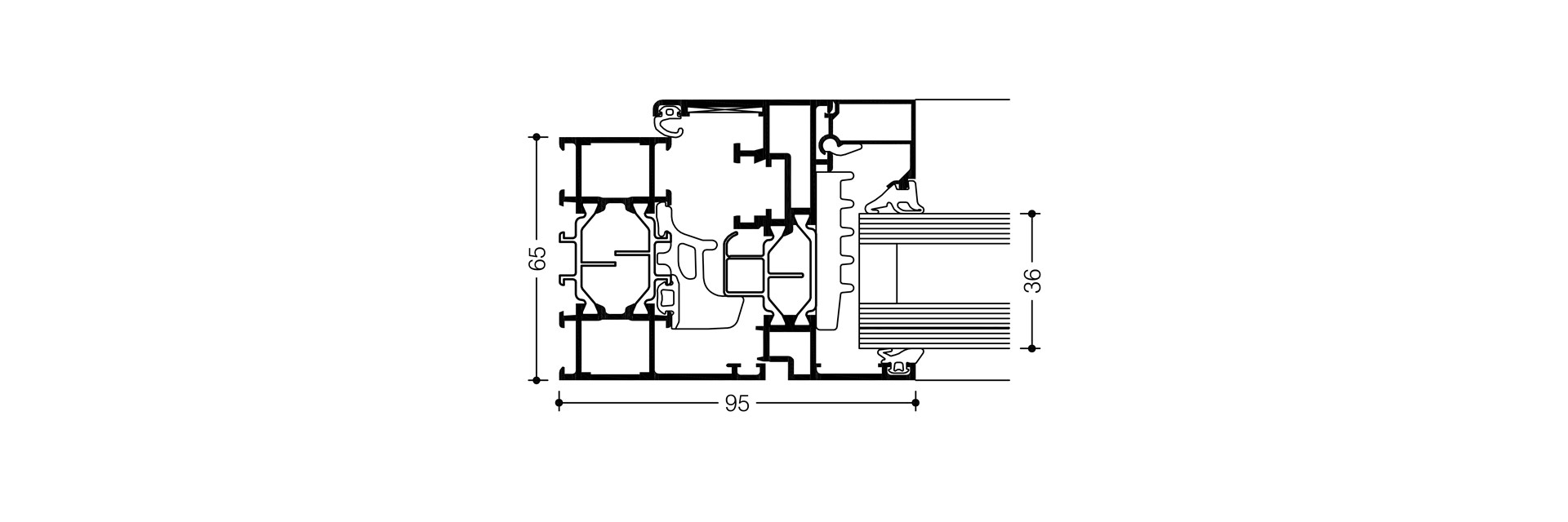
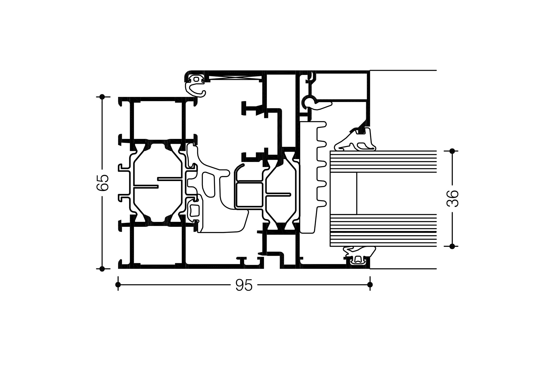
WICLINE 65 evo - Hoja vista
Con tecnología de vanguardia y una amplia gama de perfiles, la ventana de aluminio WICLINE 65 evo es un sistema que se adap- ta a todos los requerimientos, ofreciendo diversas aplicaciones. Con una profundidad de diseño de solamente 65 mm, el sistema proporciona unas elevadas prestaciones para el aislamiento térmico y acústico.
Documentación
Características
Resultados de ensayo / Marcado CE de producto según DIN EN 14351-1:2006+A1:2010
Permeabilidad al aire
Estanqueidad al agua
Resistencia a cargas del viento
Aislamiento acústico
Fuerza de maniobra
Capacidad de carga ante situación de riesgo
Resistencia mecánica
Durabilidad a ciclos de apertura y cierre
Resistencia a la corrosión de herrajes
Protección al robo
Protección antibalas
Garantía de calidad
Gestión medioambiental
Clase 4
E900
Clase C5 / B5
Rw (C; Ctr) = 47 (–1; –4) dB
Clase 1
Cumple requisitos
Clase 4
Clase 3 (20 000 cycles)
Clase 5
RC1N, RC2N, RC2, RC3
FB4 S, FB4 NS (depending on the profile combination)
Certificado según ISO 9001:2008
Certificado según ISO 14001
Prestaciones técnicas
Tecnología de los perfiles
- Sistema multicámara de elevado aislamiento.
- Capacidad de acristalamiento hasta 59 mm.
Aislamiento térmico:
- Valores Uf: hasta 1.4 W/(m²K)
- Valores Uw: hasta 0.93 W/(m²K) con triple vidrio
Concepto de sellado
- Junta central de gran dimensión, de 3 tipologías:
- Instalación perimetral, continuo en esquinas
- Con esquinas preformadas, sin necesidad de uso de adhesivos de unión.
- Marcos vulcanizados.
Herraje
- Opción herraje visto u oculto.
- Bisagras ocultas, con final de carrera amortiguado.
Ángulo máximo de apertura: 105°.
-
Pesos de hoja:
- Bisagras ocultas: hasta 160 kg
- Bisagras vistas: hasta 200 kg
- Bajo demanda: hasta 300 kg
- Dimensiones de hoja (b x h): hasta 1700 x 2500 mm.
- Opción de instalación de limitador de apertura.
Diseños adicionales
- Con hoja oculta. Opción de balconeras de apertura interior o exterior, con
perfil umbral PMR disponible. - Diversas opciones de manilla posibles:
- Disponible manilla mínima (sin roseta).
- Opción de manilla con bloqueo por llave.
- Acabado en acero inoxidable disponible.
- Para una mayor seguridad: Posibilidad de incluir detector de cierre completo de la ventana, como complemento a sistemas de alarma y monitorización.
Compatible con las series de puertas WICSTYLE 65 evo y WICSTYLE 75 evo.

