WICLINE 75 evo - Flap de ventilación
Compatible con ventanas de la serie WICLINE 75 y fachadas WICTEC
Documentación
Características
Resultados de ensayo / Marcado CE de producto según DIN EN 14351-1:2006+A1:2010
Permeabilidad al aire
Estanqueidad al agua
Resistencia a cargas del viento
Aislamiento acústico
Protección al robo
Clase 4
Clase 9A
Clase C5 / B5
Hasta 42 dB
RC1N, RC2N, RC2
Prestaciones técnicas
Aspectos destacados
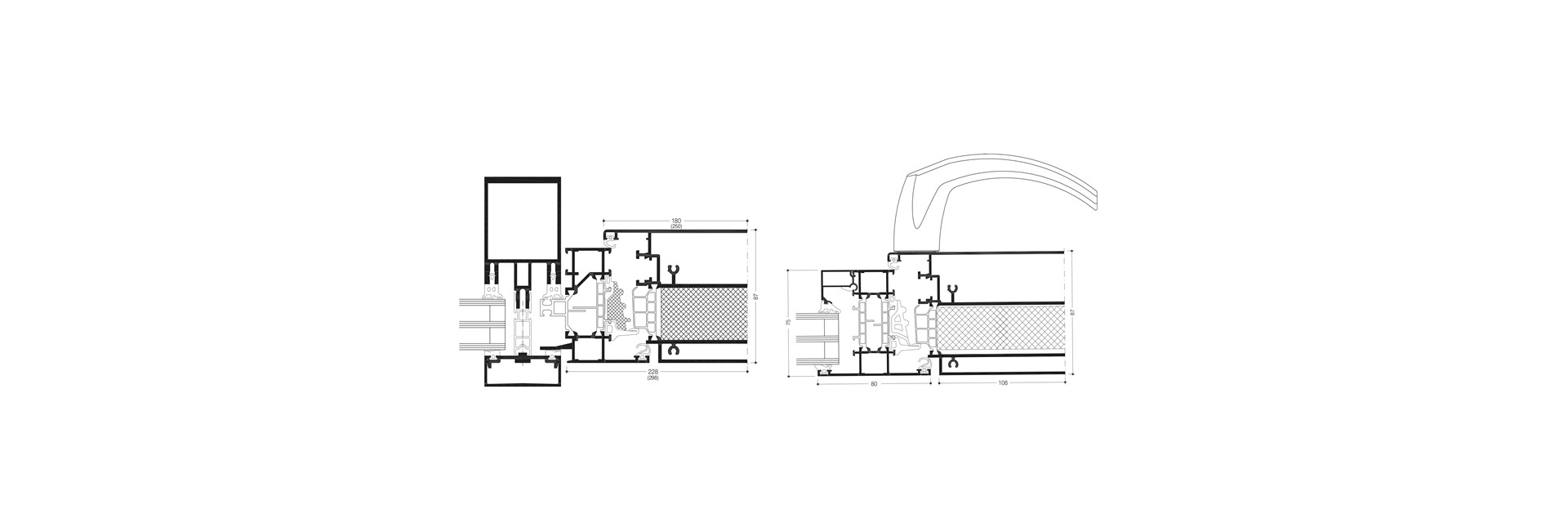
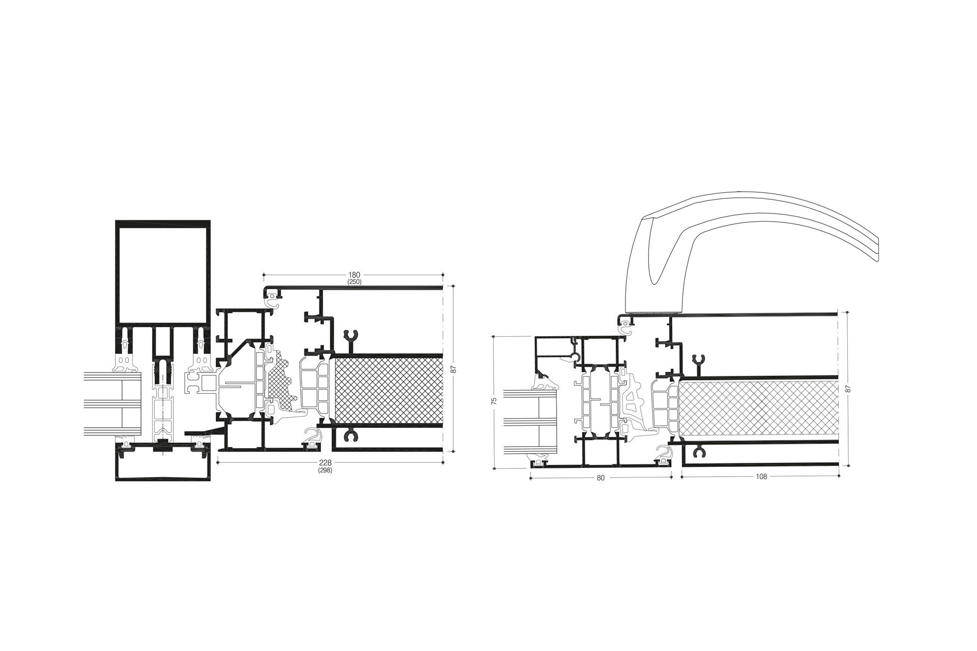
- Anchos de hoja de 170 a 330 mm.
- Dimensiones estándar 180 y 250 mm.
- Dimensiones máximas de hoja (b x h): 180 mm x 3000 mm o 250 mm x 3000 mm.
- Ajuste de la hoja de forma rápida y económica.
- Espacio mínimo entre marco y hoja – solamente 6 mm como en las ventanas WICONA estándar.
- Hoja de hasta 3 m de altura con resistencia antirobo hasta RC2.
- Fabricación sencilla y eficiente, con cortes a 90° o retestado.
- Los exhaustivos ensayos según DIN 14351-1 verifican la calidad de la tecnología del sistema.
Aislamiento térmico
- Valores Uf hasta 1.2 W/(m²K)
Herraje
- Herrajes del sistema de alta calidad, con Sistema de Posicionamiento Directo (en inglés, las siglas DPS). Los componentes se pueden ensamblar en cualquier orden.
- Opcionales:
- Bisagras vistas, lacadas o anodizadas.
- Bisagras ocultas con limitador de apertura integrado.
- Pesos de hoja: hasta 80 kg.
- Opción de incluir limitador de apertura.
- Resistencia antirrobo RC1N, RC2N y RC2.
Compatible con la serie de ventanas WICLINE 75 y las series de fachadas WICTEC.
Integración de motor oculto
- Apertura de 90° permitiendo una ventilación eficaz.
- Requiere mínimo mantenimiento.
- A prueba de manipulaciones o sabotajes.
- Ángulo de apertura ajustable.
- Control mediante interruptores de ventilación, control remoto o sistema de gestión de edificios.
- Desbloqueo de emergencia oculto.
- Sin cadenas de motor que sobresalgan en el área de apertura.


