WICTEC 50 A - Fachada sobrepuesta a estructuras de acero o madera
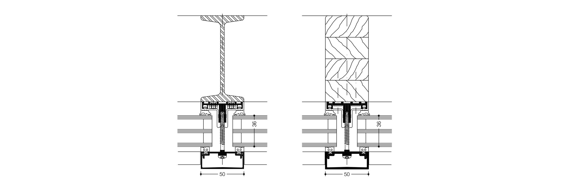
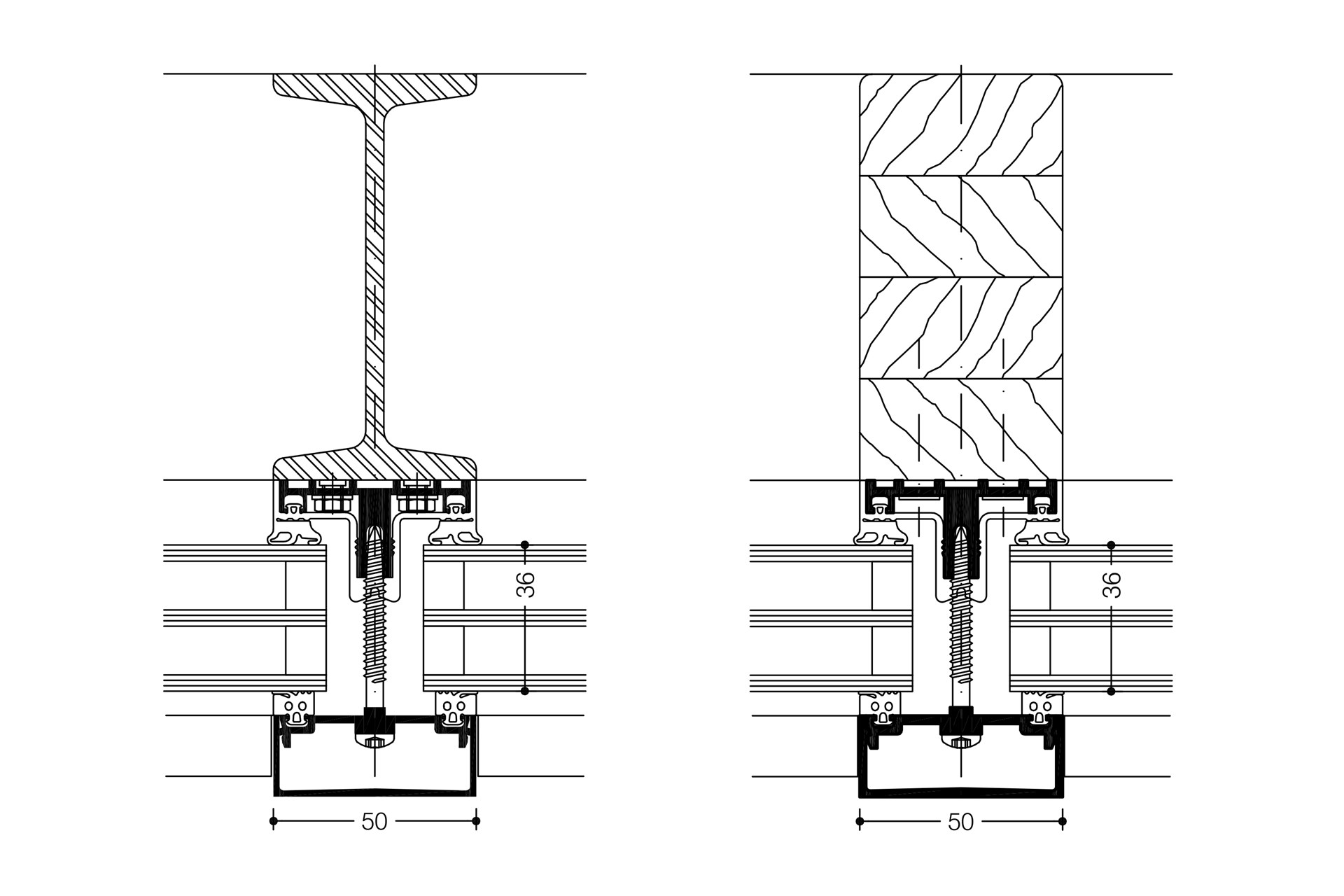
Opción de montaje basada en el sistema WICTEC 50 estándar, hace posible fijar los acristalamientos en estructuras existentes de forma directa. Fachada sobrepuesta a estructura existente de acero, madera o aluminio, con una apariencia exterior idéntica al muro cortina convencional. Fácil montaje, con tornillos de fijación directa, para construcciones con una estructura de acero a partir de 4 mm de espesor de pared.
Documentación
Características
Resultados de ensayo del sist ema / Marcado CE según DIN EN 13830
Permeabilidad al aire
Estanqueidad al agua
Resistencia a cargas del viento
Resistencia al impacto
Protección al robo
Garantía de calidad
Gestión medioambiental
Clase AE
RE 1200
2000 / –3200 Pa, seguridad 3000 / –4800 Pa
Clase E5 / I5
RC1N, RC2N, RC2
Certificado según ISO 9001:2008
Certificado según ISO 14001
Prestaciones técnicas
Línea vista:
Marcos de sujección:
Perfiles estructurales:
50 mm
desde 50 mm de ancho
Perfiles de madera, tubos de acero, perfiles abiertos de acero
Tecnología del sistema
- Libertad de elección del material estructural (aluminio, acero o madera) para anchos de perfil desde los 50 mm.
- El mismo perfil es válido para montantes y travesaños.
- Solapado mediante juntas de estanqueidad verticales y horizontales de EPDM, de una pieza, que cubren la totalidad del perfil, con diferentes niveles de drenaje.
- Sencilla fijación del perfil de aluminio a partir de atornillado.
- Solución idónea para fachadas verticales, poligonales y acristalamientos inclinados.
- Acristalamiento desde el exterior, con tornillos vistos u ocultos.


