WICLINE - Sistemas de ventanas con protección antirrobo
El diseño modular de la gama WICLINE permite ofrecer tecnologías de seguridad adaptadas para cada edificio en particular y para cada nivel de demanda.
Las ventanas WICLINE permiten obtener elevados niveles de seguridad en resistencia a la efracción sin comportar alteraciones visuales en la construcción, adaptándose al nivel de seguridad requerido para cada caso. Disponen de los niveles de resistencia a la efracción RC1N, RC2N, RC2 y RC3. Todas las ventanas han sido ensayadas según el estándar EN 1627, referente a la DIN 1627. Se puede combinar fácilmente con los sistemas de fachada WICTEC y las puertas WICSTYLE.
Documentación
Prestaciones técnicas
Burglar resistance according to EN 1627
- The currently valid standard for burglar resistance, EN 1627, has come into effect in European countries in 2011 and 2012. It replaced former national standards. The classifications have been modified to classes RC1N to RC3, which are not identical with the former classes WK1 to WK3.
Test results of the WICONA window series
- The new WICLINE 65 evo and WICLINE 75 evo series with several variations have been tested according to the new standard EN 1627. They can easily be specified and implemented without any additional measurement according to this new standard.
Clasificación del nivel de seguridad de las ventanas WICLINE según la norma europea EN 1627
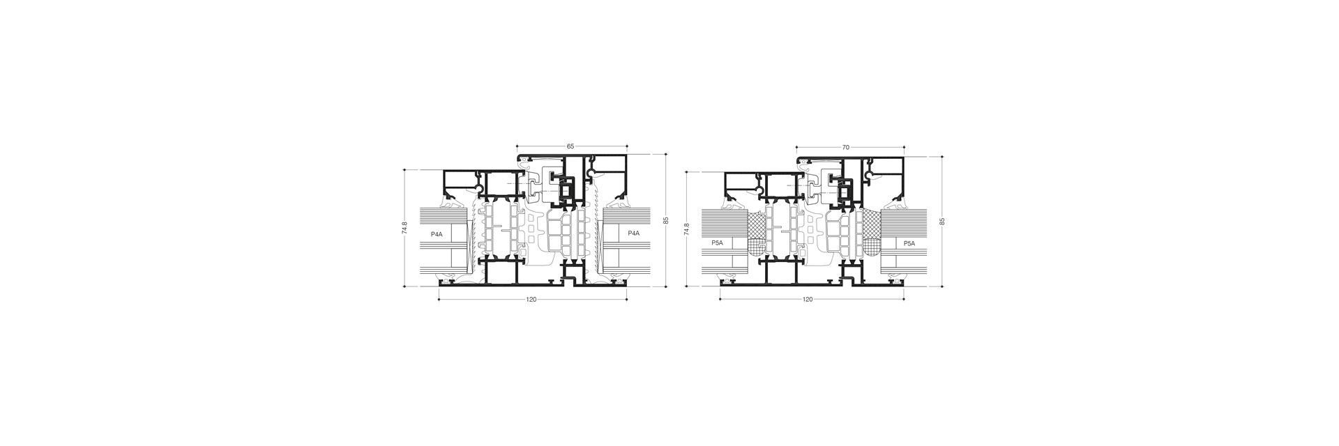
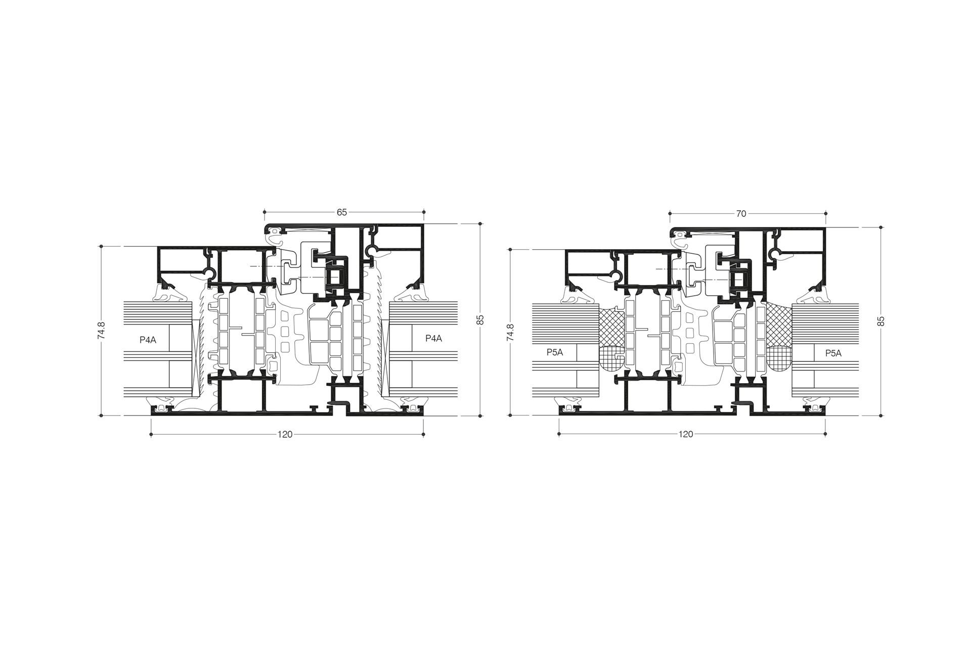
WICLINE 65 evo / 75 evo Practicable / osciloba- tiente / abatible / doble hoja
WICLINE 65 evo / 75 evo Lucernario
WICLINE 65 evo / 75 evo Hoja oculta
WICLINE 65 evo / 75 evo Classic design
WICLINE 95 Practicable / oscilo- batiente / abatible / lucernario
WICLINE 115 AFS Turn/ Turn-tilt/ Tilt/ Tilt-first/ fixed field
RC1N, RC2N, RC2, RC3
RC1N, RC2N, RC2, RC3
RC1N, RC2N, RC2, RC3
RC1N, RC2N, RC2, RC3
RC1N, RC2N, RC2, RC3
RC1N, RC2N, RC2, RC3


