WICLINE 115 AFS
Med det nye koblede vindussystemet WICLINE 115 AFS tilbys arkitekter, konstruktører og produsenter den optimale løsningen for komplekse prosjekter med særlig høye krav til termisk ytelse, lydisolering og solskjerming. Vindussystemet er tilpasset for både nybygg og rehabilitering. Det koblede WICLINE 115 AFS vinduet er oppbygd med en indre og en ytre vindusramme. Konstruksjonen skaper et hulrom mellom vindusrammene, noe som gir en betydelig forbedring av systemets termiske og lydisolerende ytelse uten ekstra tiltak.
Egenskaber
System test results / CE product pass in accordance with EN 14351-1:2010-08
Varmeisolering Uf
Varmeisolering Uw
Lydisolering
Lufttæthed
Vandtæthed
Vindtæthed
Mekanisk holdbarhed
Holdbarhed gentagelse åbning
Standard
EN ISO 10077-2
EN ISO 10077-1
EN ISO 717-1
EN 12207
EN 12208
EN 12210
EN 13115
EN 12400
Class
1.1 – 1.3 W/(m²K)
below 0.80 W/(m²K)*
up to 50 (-1;-4) dB
4
up to E1200
up to C5/B5
up to 4
up to 3
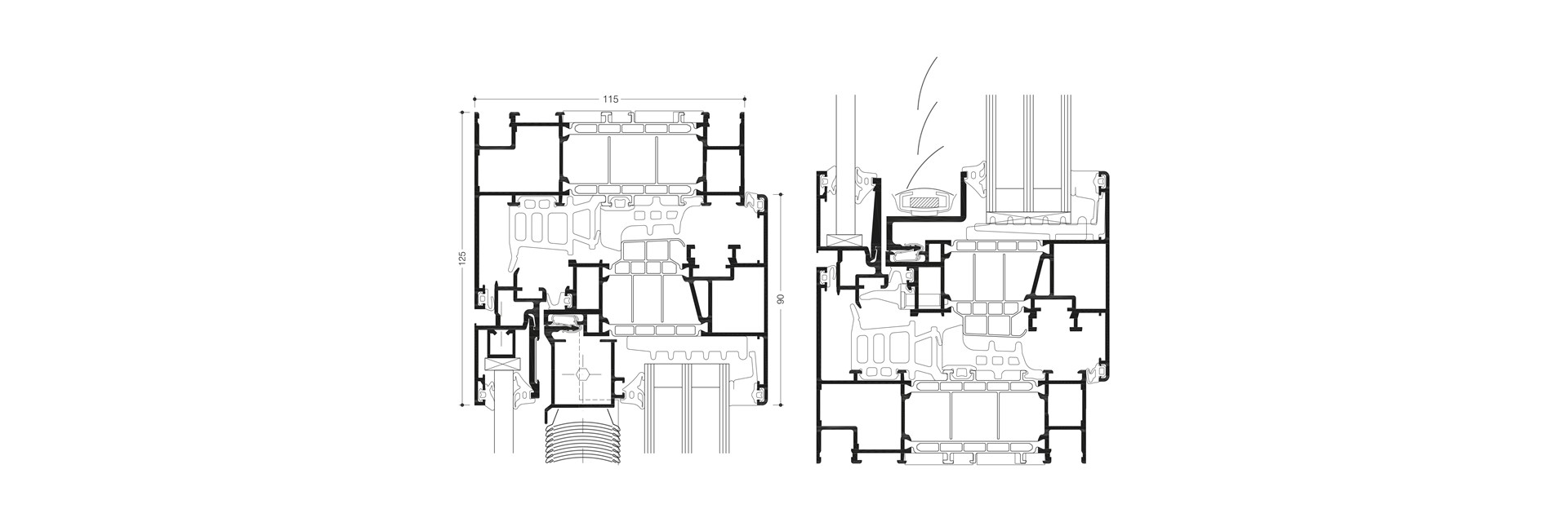
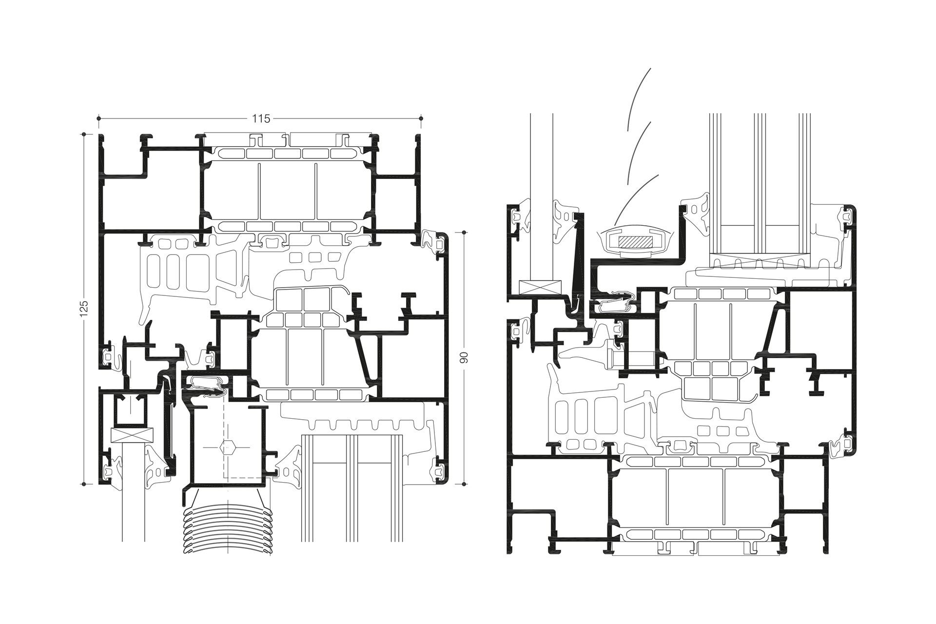
Teknisk beskrivelse
Profilernes opbygning
- Profildybde: 115 mm
- Sigtlinje: 125 eller 135 mm
- Fyldningstykkelse op til 48 mm (58 mm) og op til 100 mm (fast felt)
- Trykudligning mellem den ydre og indre vinduesramme
- Optimerede egenskaber forhindrer kondens i konstruktionen, certificeret af CSTB-instituttet i Frankrig (Centre Scientifique et Technique du Bâtiment)
- Integreret og skjult persiennesystem, som er beskyttet mod vejrliget og snavs, intet indfald af dagslys i siderne
- Optimal betjeningskomfort
- Enkel montage, vedligeholdelse og rengøring takket være en ydre vinduesramme, som kan betjenes særskilt
- Valgbar vinduesramme med universal zone for solafskærmning
Sigtlinje profiler
- Karmprofil fra 84 mm op til 94 mm
- Sprosseprofil fra 128 mm op til 158 mm
- Vinduesrammeprofil 35 mm
Varmeisolering
- Uw-værdi under 0,80 W/(m²K) med en karmdybde på 115 mm og en slank sigtlinje på kun 125 mm, en dimension på 1.230 mm x 1.480 mm og Ug = 0,60 W/(m²K), 0,031 W/(mK) psi
Lydisolering
- Op til 50 dB (lydisoleret glas indvendigt, enkeltglas udvendigt)
- Op til 43 dB (isoleringsglas indvendigt, enkeltglas udvendigt)
Beslag
- Skjulte beslagskomponenter af høj kvalitet med DPS (Direct Positioning System). Rammevægt for skjulte hængsler op til 160 kg, op til 200 kg for synlige hængsler
- Rammevægt op til 200 kg
- Rammestørrelse (b x h): op til 1.200 mm x 2.500 mm
Åbningsvarianter
- Sidehængt, dreje-kip, bundhængt, tilt-first

