WICLINE Indbrudshæmmende
Objektbeskyttelse og brugerbeskyttelse – For bygningskroppen har De brug for løsningsmuligheder til facaden, der i helhed kan udføres med kompatible aluminiumskonstruktioner. Disse løsninger tilbyder WICONA serierne for facader, døre og vinduer i forskellige udførelser der alle kan kombineres med tillægs funktioner. De forskellige høje krav der stilles til indbrudssikring kan ved alle WICLINE facadeserierne opfyldes uden optiske ændringer, ved mindre ændringer på basis af grundkonstruktionerne.
Dokumentation
Egenskaber
System test results / CE product pass in accordance with EN 14351-1:2006+A2:2016
Generel information
See classification of the respective WICLINE window series.
Teknisk beskrivelse
Indbrudshæmmende jævnfør EN 1627
- Normen for indbrudssikring EN 1627 blev i 2011 indført i alle europæiske lande. Denne erstattede de tidligere nationale standarder. Klasserne har ændret sig til at gå fra RC1N til RC3. Disse er dog ikke i dentiske med de tidligere klasser WK1 til WK3, da selve testudførelsen er ændret.
Testresultater for WICONA facadesystemer
- De nye WICLINE 65 evo og WICLINE 75 evo vinduesserier i alle deres varianter er blevet testet efter den nye norm EN 1627 og kan derfor foreskrives, indbygges og godkendes efter de aktuelle normkrav.
Indbrudshæmmende jævnfør EN1627 henholdsvis DIN1627
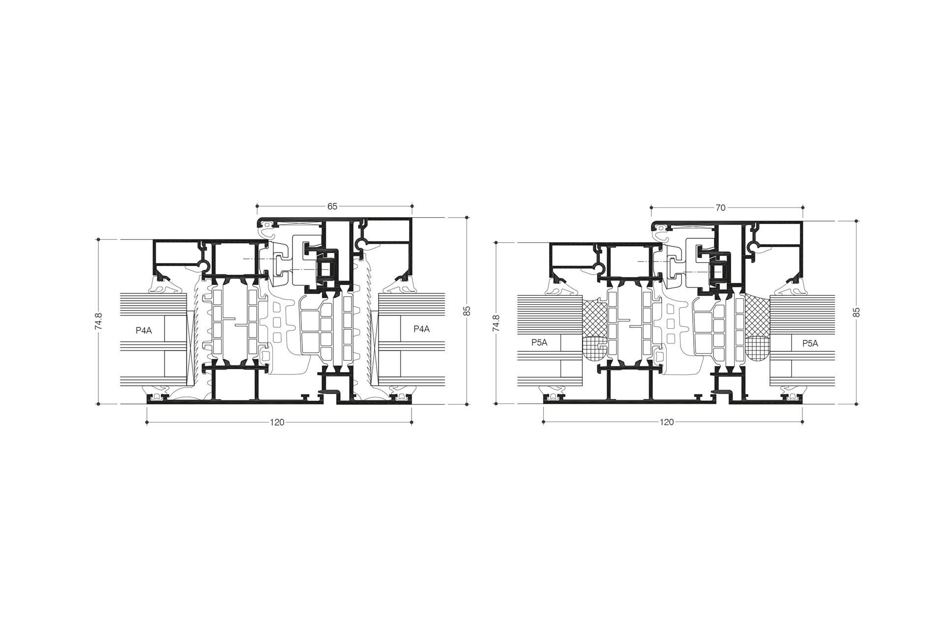
WICLINE 65 evo / 75 evo Sidehængt- dreje / kip – kip Kip før dreje / stulp
WICLINE 65 evo / 75 evo Skjult ramme (Block vindue)
WICLINE 65 evo / 75 evo Klassisk-Design
WICLINE 125 Koblet vindue
RC1N, RC2N, RC2, RC3
RC1N, RC2N, RC2, RC3
RC1N, RC2N, RC2, RC3
WK1, WK2, WK3


