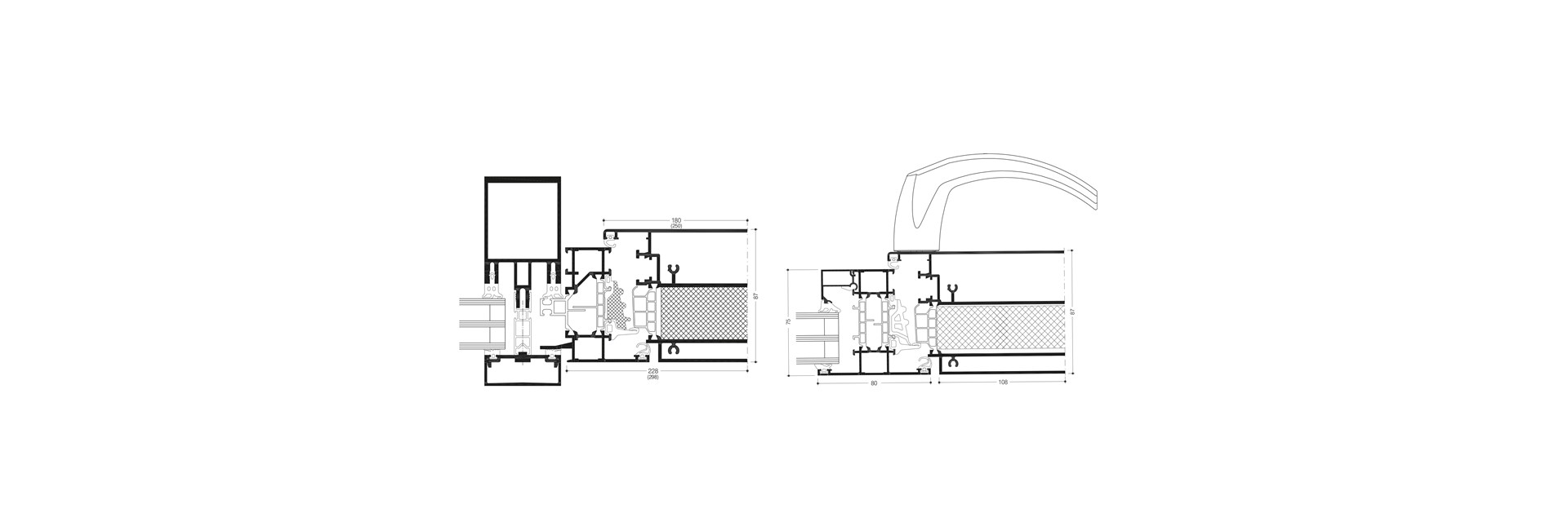
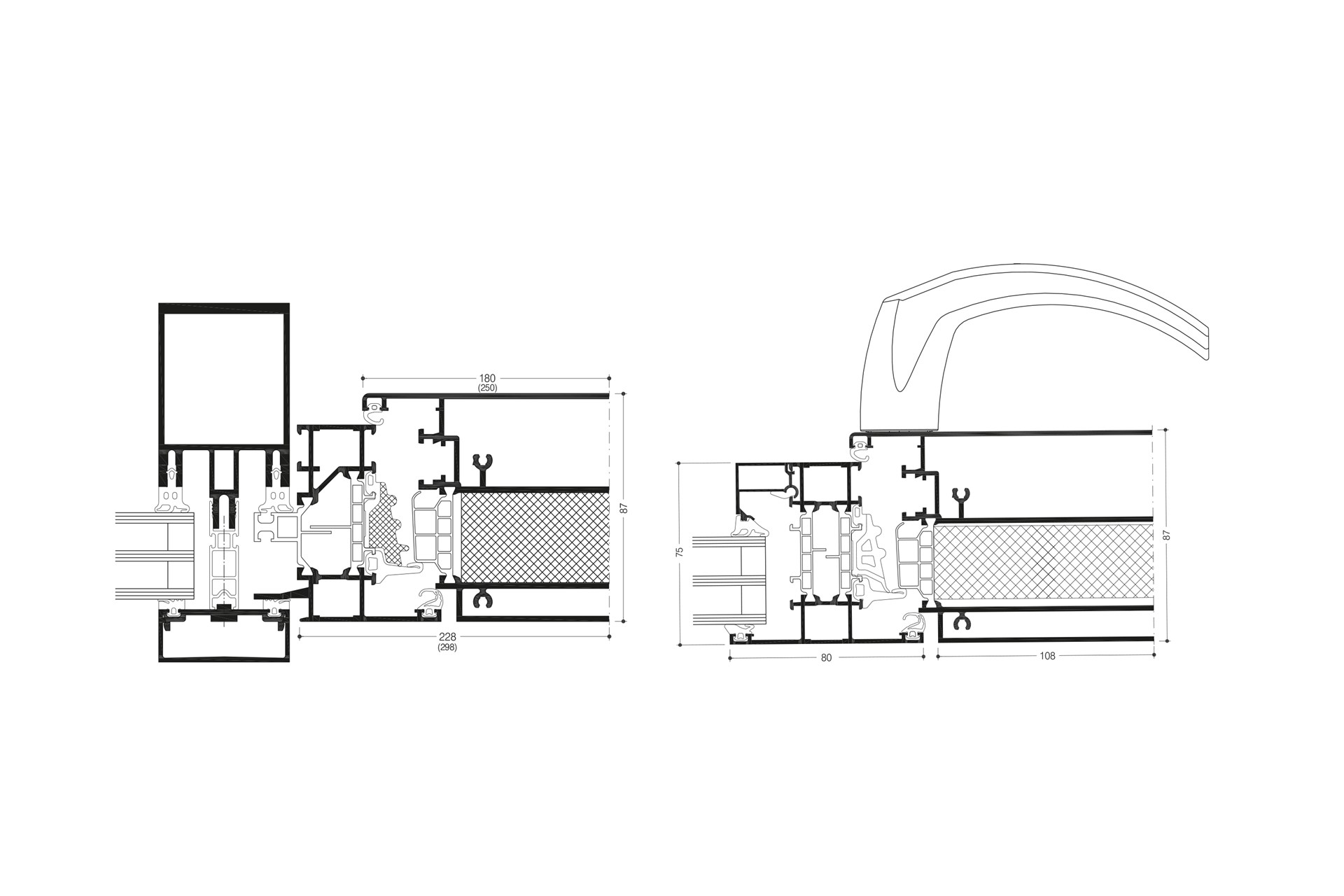
WICLINE 75 evo
Compatible with the window series WICLINE 75 and façade series WICTEC
Egenskaber
System test results / CE product pass in accordance with EN 14351-1:2006+A2:2016
Luftpermeabilitet
Vandtæthed
Modstand mod vindbelastning
Lydisolering
Indbrudshæmmende
Class 4
Class 9A
Class C5 / B5
Until 42 dB
RC1N, RC2N, RC2
Technical performance
Highlights
- Sash widths from 170 to 330 mm, Standard dimensions 180 and 250 mm
- Max. sash sizes (w x h): 180 mm x 3000 mm or 250 mm x 3000 mm
- Fast and economical adjustment of the sash width in the object
- Narrowest possible shadow gap between sash and frame - only 6 mm as in standard WICONA windows
- 3 m sash height including burglar resistance up to RC2
- Simple and efficient processing exclusively with 90° cutting saw or notch cuts
- Comprehensive system testing according to DIN 14351-1 verifies the high quality of the system technology
Thermal insulation
- Uf value up to 1.2 W/(m²K)
Hardware
- High quality system fittings with Direct Positioning System (DPS). Components can be assembled in any order, optionally:
- Surface-mounted hinges, colour coated or anodised
- Concealed hinges with integrated end-position stops
- Sash weights: 80 kg
- Optionally with opening limiter
- Burglar resistance RC1N, RC2N and RC2
Compatible with the window series WICLINE 75 and façade series WICTEC
Concealed motor integration
- 90° opening allowing for maximum ventilation
- Low-maintenance and tamper-proof
- Adjustable opening angle
- Control via ventilation switches, remote control or building management system
- Concealed emergency release
- No motor chains protruding into the opening area


