WICLINE 75FP
Med det nye WICLINE 75FP brandhæmmende vindue, kompletteres brandbeskyttelses programmet fra WICONA. Konstruktionen baserer sig 100 % på WICLINE 75 grundkonstruktionen og er optisk ikke at skelne fra denne. Den selvlukkende oplukkelige brandhæmmende glasning kan udføres som hulvindue, vindue med side og overfelter, eller integreret i en post / rigel konstruktionen fra brandfacaden WICTEC 50FP.
Dokumentation
Egenskaber
Luftpermeabilitet
Vandtæthed
Modstand mod vindbelastning
Arbejdskræfter
Sikkerhedsudstyrs belastningskapacitet
Mekanisk styrke
Gentagen åbning / lukning
Slagmodstand
Kvalitetssikring
Miljøhåndtering
Class 4
E750
Class C4 / B4
Class 2
Fulfilled
Class 4
Class 2 (10 000 cycles)
Class 3
Certified according to ISO 9001:2008
Certified according to ISO 14001
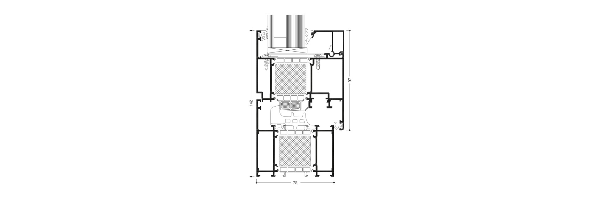
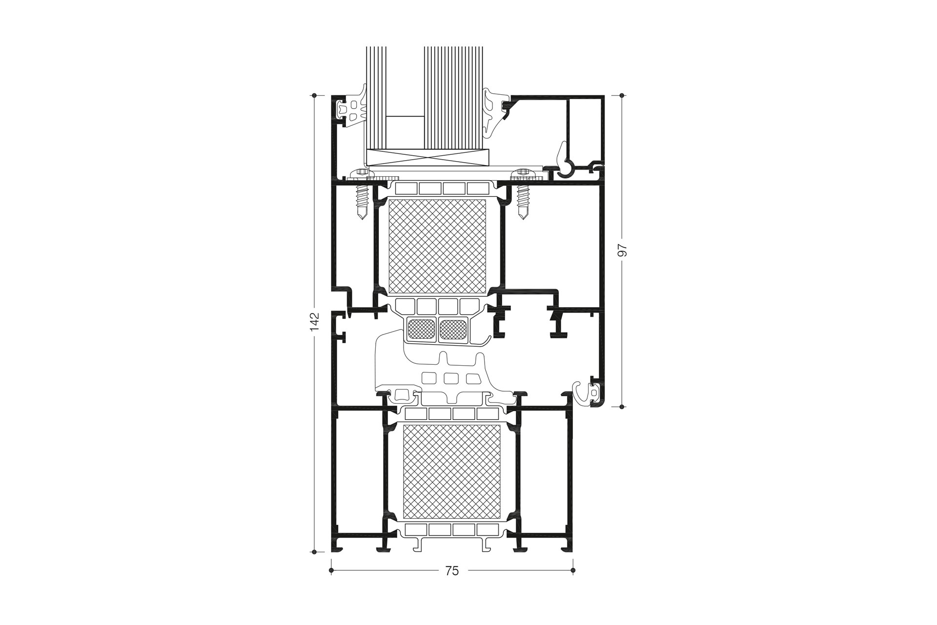
Teknisk beskrivelse
Profilteknik
- Godkendt af bygningsmyndighederne
- Godkendt jævnfør EN1634
- Udførlig i brandklassen EI30 eller EW30 gennem enkelt udvidelse med tilbehørsdele
- Patenterede hjørne og sprosseforbindere for høj stabilitet i karme og rammer
- Fyldningstykkelser op til 43 mm
- Kan vælges med indbygningskarm for integrering i post / rigel facade
Varmeisolering
- Uw værdier ned til 1,6 W/(m²K)
Tætningskoncept
- Stor midtetætning i 3 varianter:
- Omløbende indbygning uden stød i hjørner
- Med støbte hjørner, uden klæbning af stødene
- Hjørnevulkaniseret ramme
Beslag
- Skjulte enhåndsbetjente beslag efter valg med:
- Udenpå liggende hængsler, eloxeret eller lakeret
- Skjulte hængsler med integreret lukkedæmpning, åbningsvinkel op til 105°
- Rammevægte
- Op til 160 kg
- Rammeformater (B x H) op til 1170 mm x 2170 mm


