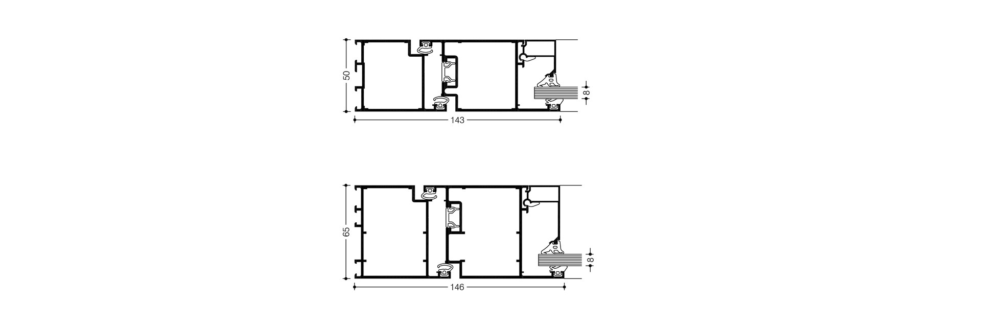
WICSTYLE 50N/65N
Denne konstruktion er specielt for indsatsområder indvendigt i bygningen, eller til indbygningssteder som ikke stiller krav til varmeisolering. Når faktorer som funktionalitet, lang levetid og komfort er i fokus, er disse u-isolerede døre det rigtige valg.
Teknisk beskrivelse
Profilteknik
- U-isolerede aluminiumsprofiler med en byggedybde på 50 mm for WICLINE 50N henholdsvis 65 mm for WICLINE 65N
- Til en-fl øjede og to-fl øjede anslagsdøre med karm og ramme i samme plan
- Til indadgående og udadgående døre
- Sidepartier samt overpartier er mulige både som faste og bevægelige partier
- Mulighed for glasdelene sprosser eller på klæbede sprosser
- Med rullehængsler eller udenpå liggende hængsler
- Mekanisk bundtætning eller påløbs tætning
Specielt for WICSTYLE 50N
- Fyldningstykkelse fra 4 mm til 31 mm
- Rammevægt op til 150 kg
- Rammeformater (B x H) op til 1300 mm x 2350 mm
Specielt for WICSTYLE 65N
- Fyldningstykkelse fra 4 mm til 46 mm ved karm og ramme i samme plan. Henholdsvis 8 mm til 57 mm med udenpå liggende ramme
- Rammevægt op til 200 kg
- Rammeformater (B x H) op til 1450 mm x 2700 mm
Yderligere udførelsesmuligheder
Yderligere udførelsesmuligheder
- WICSTYLE 65N kan også udføres som røghæmmende dør samt som indbrudshæmmende dør i klasserne WK1 og WK2




