WICLINE 115 AFS
凭借全新的WICLINE 115 AFS双扇窗户系统,WICONA可为建筑师、规划师和合作伙伴提供适于对隔热、声音和遮阳等方面要求极高的苛刻项目的解决方案——新建筑和现代化建筑的最佳选择。
在WICLINE 115 AFS双扇窗户系统中,内部窗户层面与前面的附加窗扇相结合。窗扇之间区域中形成空腔。这可提高隔热和噪音保护——无需任何额外措施。
Characteristics
系统测试结果/CE产品通过DIN EN 14351 - 1:2010 - 08标准
Thermal insulation Uf
Thermal insulation Uw
Sound insulation
Air tightness
Water tightness
Wind tightness
Mechanical durability
Durability repeat opening
Standard
标准
EN ISO 10077-1
EN ISO 717-1
EN 12207
EN 12208
EN 12210
EN 13115
EN 12400
Class
等级
不超过0.80 W/(m2K)*
不超过50 (-1;-4) dB
4
不超过E1200
高达C5/B5
不超过4
不超过3
*1230 mm×1480 mm整窗尺寸和Ug = 0.6W/(m2K)情况下,psi = 0.031 W/(mK)
技术性能
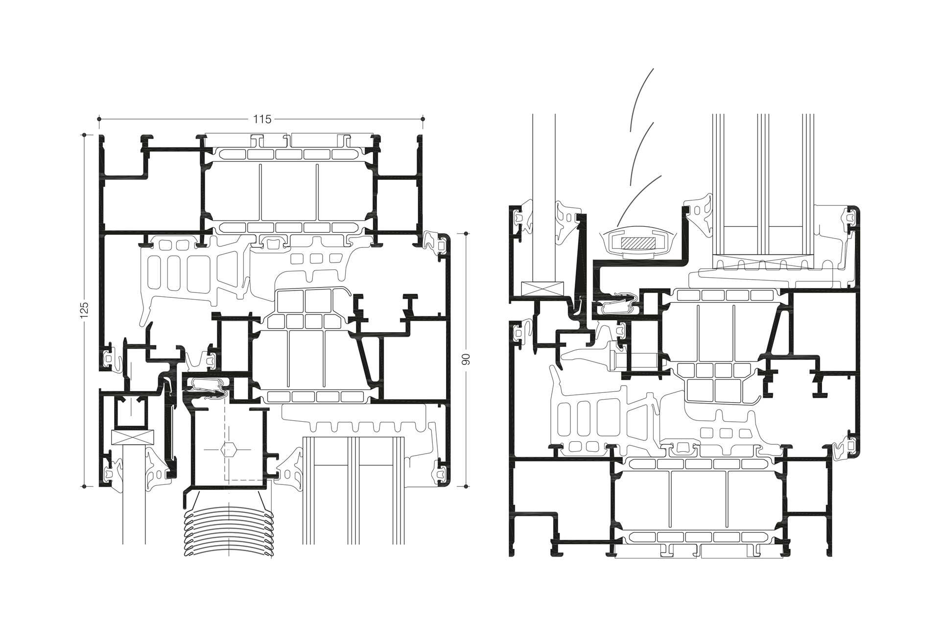
型材技术特点
- 型材深度:115 mm
- 结构深度:125 或 135 mm
- 玻璃厚度可达48 mm(58 mm), 固定部分玻璃可达到100 mm
- 空腔压力平衡
- 经法国CSTB研究所(建筑科学技术中心)正式确认的优异的空腔内冷凝性能
- 隐藏式遮阳系统,可不受天气影响和避免污垢,限制两侧的日光渗透量
- 操作舒适度最高
- 具有可独立操作的外部窗扇,易于安装、维护和清洁
- 可选式窗扇,带通用遮阳区
型材可视面
- 型材可视尺寸范围为84 mm到94 mm
- 横梁型材可视尺寸为128 mm到158 mm
- 窗扇可视尺寸35 mm
隔热性能
- Uw值低于80 W/(m²K),型材深度为115 mm,可视面尺寸仅为125 mm,单位尺寸为1230 x 1,480 mm,0.031 W /(mK) PSI下的Ug值为0.60 W /(m²K)
隔音
- 最高50dB(内部装配隔音玻璃,外部装配单层玻璃)
- 最高43 dB(内部装配绝缘玻璃,外部装配单层玻璃)
五金
- 高品质隐藏式五金,带DPS(直接定位系统)。组件可按任何顺序进行安装。窗扇重量:-最高可承载160 kg重量的隐藏式合页 – 最高可承载200 kg的明装式合页
- 窗扇重量不超过200 kg
- 窗扇尺寸(宽x高):不超过1200 mm x 2500 mm
开启类型
- 平开、内开内倒、内倒内开、内倒、固定

