WICLINE 65 evo/ 75 evo
理想的组合:WICTEC系列幕墙与WICLINE窗系列的集成开启扇。具有扩展性能的多功能系统在最高的技术和设计水平上提供个性化解决方案,适应于大量附加功能。
Characteristics
System test results / CE product pass in accordance with EN 14351-1:2006+A2:2016 and DIN EN 13830
General Information
See classification of the WICLINE window series and
the WICTEC curtain wall series.
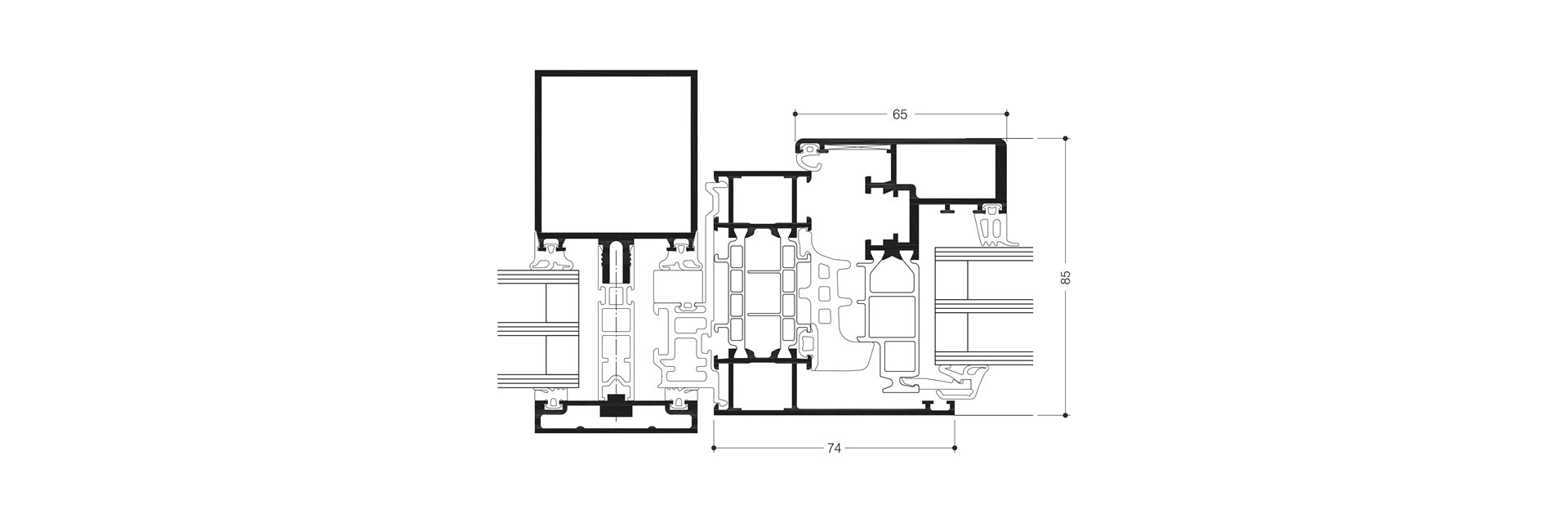
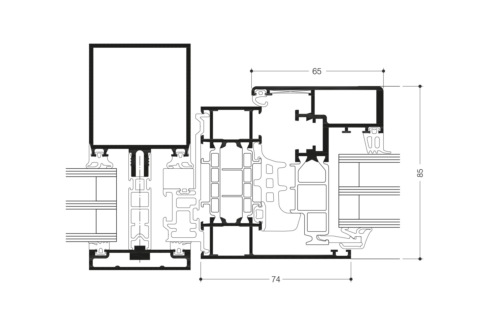
技术性能
型材技术
- 对称设计的高绝缘多室系统,保证热绝缘体连接质量
- 专利的转角和对接连接技术,用于框架和窗扇的高刚度
隔热性能
- Uf值至1.2 W /(m²K)
- Ucw值取决于幕墙和窗扇的组合
内开选项
- 内开/内开内倒/内倒窗口
- 隐藏的窗扇
- 防盗
五金
- 重型系统配件:
- 明装的铰链,粉末涂层或所有颜色的阳极氧化
- 隐藏铰链集成端位置阻尼,最大开角度 105°
- 开启扇重量:
- 明装内开/内倒五金:最高160公斤
- 隐藏式内开/内倒五金:最高可达200 kg
- 内开铰链(按需):高达300公斤
- 开启扇尺寸(宽x高):1700 mm x 2500 mm
- 可选择在各种应用中打开限制器
系统测试结果/ CE产品通过符合DIN EN 14351-1:2006 + A1:2010和DIN EN 13830
- 参见WICLINE窗系列和WICTEC幕墙系列的分类
Outward opening options
- Top-hung window
- Side-hung window
- Italian window
Hardware
- Visible hinges top-hung or side-hung
- Concealed hinges Italian style window
- Sash weight: up to 150 kg
- Sash sizes (w x h): up to 2000 mm x 2000 mm


