WICLINE 75 TOP
WICLINE 75 TOP是一种高隔热型窗户系统,具有符合被动式房屋标准的最佳性能、可靠的工艺和性能数据——具有匹配75 mm窗系统的时尚外观。
Characteristics
System tests / CE-marked product passport according to EN 14351-1:2006+A2:2016
Air permeability
Water tightness
Resistance to wind load
Acoustic Performance
Operating forces
Mechanical strength
Continuous operation
Corrosion resistance of fittings
Burglar resistance
Bullet resistance
Quality assurance
Class 4
E900
Class C5/B5
Rw (C;Ctr) = 47 (-1;-4) dB
Class 1
Class 4
Class 3 (20 000 cycles)
Class 5
RC1N, RC2N, RC2, RC3
FB4 S, FB4 NS (depending on profile combinations)
Certified to DIN EN ISO 9001:2008
Technical performance
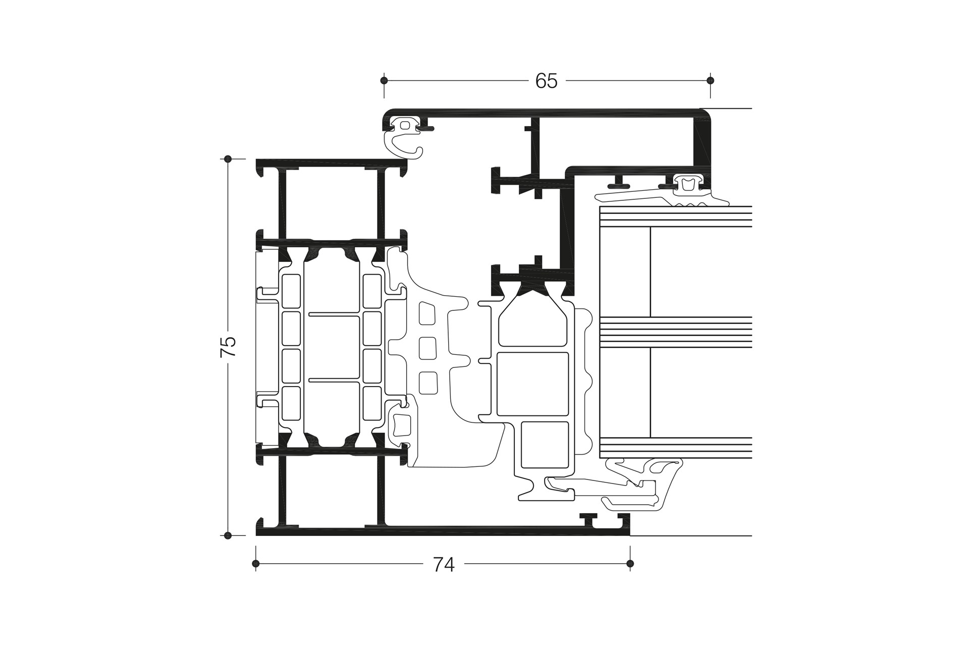
Profile technology
- Highly thermally insulated multi-chamber system with ETC Intelligence® thermal break zone, which implements window designs with only 75 mm frame depth to passive house standards.
- Patented corner and butt joint technology for high rigidity of components
- Infill thickness up to 65 mm
Thermal insulation
- Uf values 0.79 to 1.3 W/(m²K) for fixed glazed units with external sight lines from 48 to 155 mm
- Uf values 1.0 to 1.2 W/(m²K) for sash-frame combinations with external sight lines from 74 to 142 mm
- Uw values less than 0.80 W/(m²K)
Gasket concept
- Central gasket in three variants:
- Circumferential installation without corner pieces
- With formed corners, no adhesive required
- Corner vulcanised frames
Hardware
- Concealed hardware
Optional:- Visible hinges, coated or anodised in all colours
- Concealed hinges with integrated end position damping, opening angle max. 105°
- Sash weights:
- Concealed hinges: up to 160 kg
- Visible hinges: up to 200 kg
- On request: up to 300 kg
- Sash sizes (w x h): up to 1700 mm x 2500 mm, Skylights up to 2500 mm x 1700 mm
- Optional opening limiter
Additional designs
- Concealed sash, infill thicknesses up to 50 mm
- Integration frame for mullion/transom curtain walling
- Skylight with manual lever, crank handle or motor
System combinations
- WICLINE 75 TOP windows can be combined with WICLINE 75 evo windows, WICSTYLE 75 evo doors and using integration sash-frames, with current WICTEC curtain walling


