WICLINE 75 evo
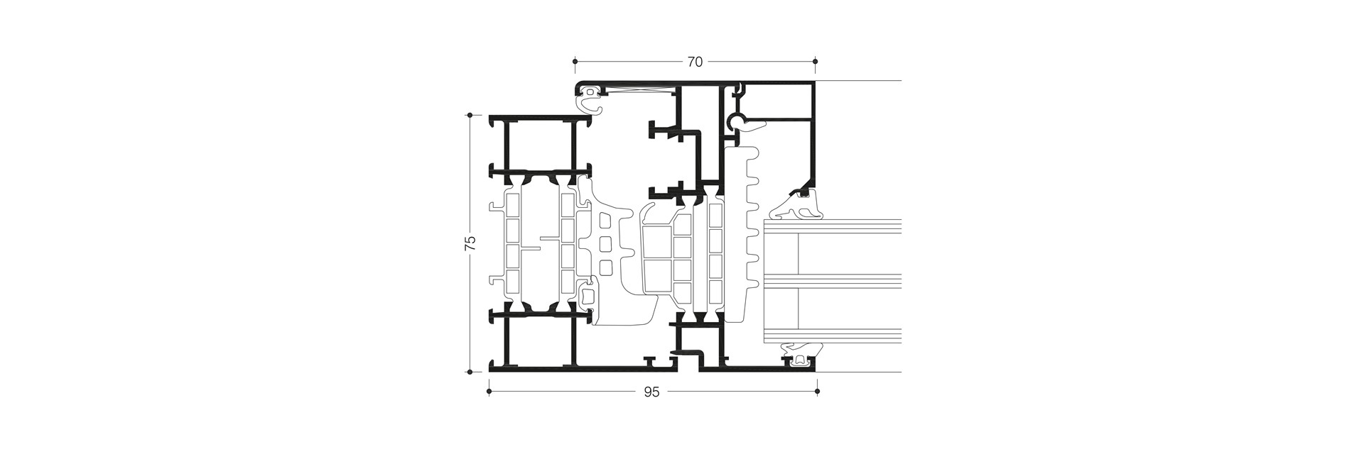
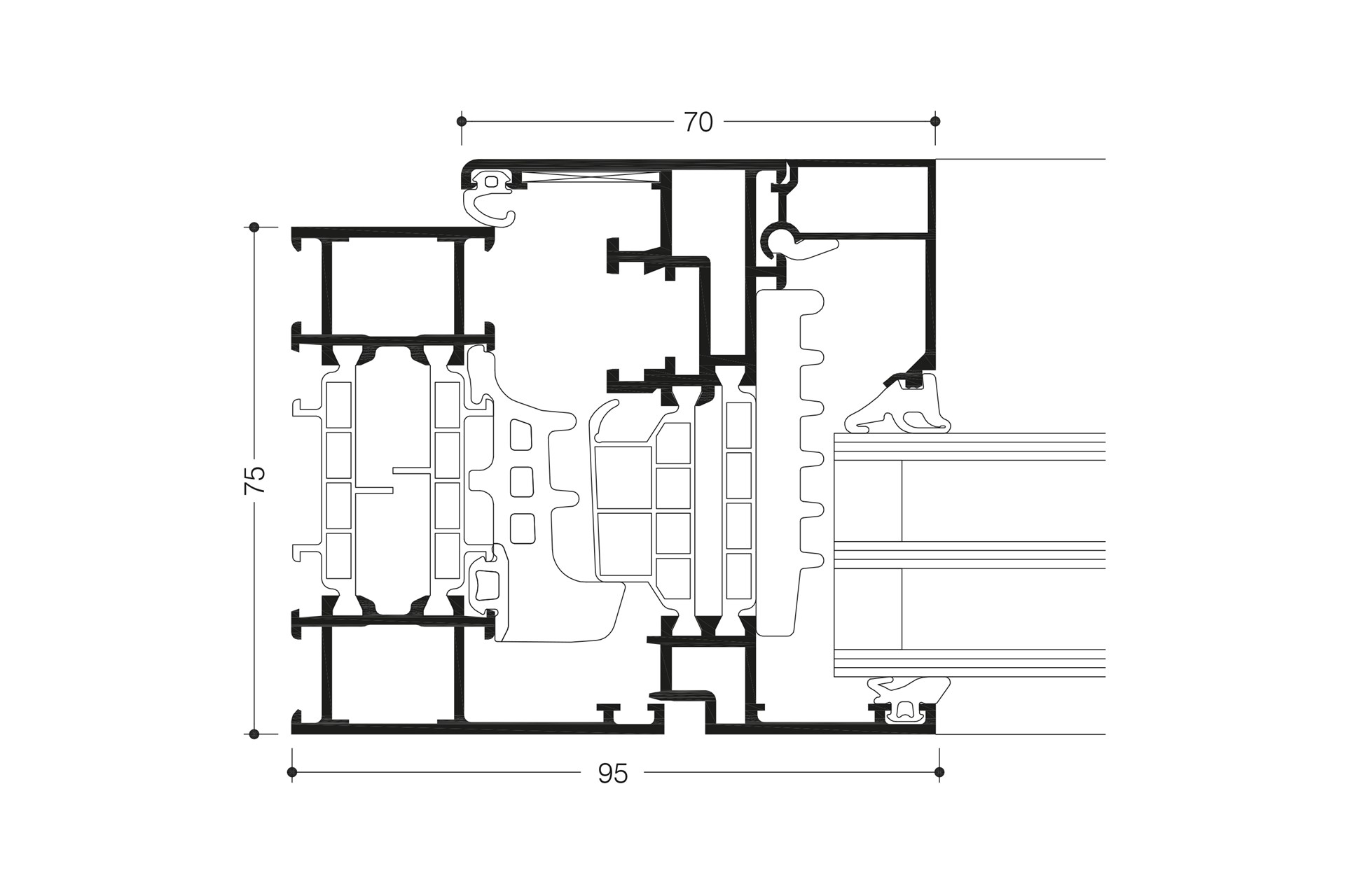
型材结构深度为75mm的WICLINE 75 evo窗系统,具有最高的隔热性能和结构特性。凭借其卓越的技术性能,这个系列铝合金窗系统满足未来所有建筑技术要求。在瑞士WICLINE 75 evo已经成为第一个通过被动房认证的铝合金门窗系统。
Characteristics
System test results / CE product pass in accordance with EN 14351-1:2006+A2:2016
Air permeability
Water tightness
Resistance to wind load
Acoustic Performance
Operating forces
Load bearing capacity of safety devices
Mechanical strength
Repeated opening / closing
Corrosion resistance of fittings
Burglar resistance
Bullet resistance
Quality assurance
Environmental management
Class 4
E900
Class C5 / B5
Rw (C; Ctr) = 47 (–1; –4) dB
Class 1
Fulfilled
Class 4
Class 3 (20 000 cycles)
Class 5
RC1N, RC2N, RC2, RC3
FB4 S, FB4 NS (depending on the profile combination)
Certified according to ISO 9001:2008
Certified according to ISO 14001
技术性能
型材技术
- 对称设计的高隔热多腔体系统,保证型材与隔热条复合的质量
- 专利技术的铸铝角码注胶技术保证了窗框和窗扇的角部的高密封性和高强度
- 玻璃厚度可达69毫米
隔热性能
- Uf值:可达1.2 W /(m²K)
- Uw值:对于开启扇,可达0.87 W /(m²K),固定玻璃部分可达0.72 W /(m²K),三层玻璃配置
- 被动房认证的组件Uw 1E; 0.8 W /(m²K)
密封系统
- 具有三种安装方式的中央密封系统
- 连续密封的中央胶条,角部无接头
- 角部采用专门设计的胶角连接中央胶条
- 硫化胶条框形式的中央胶条密封系统
五金
- 重型五金系统:
- 明合页,粉末喷涂或所有颜色的阳极氧化处理
- 集成阻尼功能的隐藏式合页,最大开启角度可达 105°
- 开启扇重量:
- 明合页:可达200公斤
- 隐藏式合页:可达160公斤
- 特殊需求:可达300公斤
- 开启扇尺寸(宽x高):1700mmx 2500mm,扇形窗2500mmx 1700mm
- 各种规格均可选择开启限位器
附加设计
附加设计
- 隐扇窗
- 古典式设计
- 可与框架幕墙集成
- 电动开启扇
- 水平或垂直中悬立转窗
- 内倾滑移窗
- 意式窗
- 上悬窗
- 窗式门设计,单扇或双扇,内开和外开
Compatible with the door series WICSTYLE 65 evo and WICSTYLE 75 evo

