WICSLIDE 65
WICSLIDE 65 推拉门窗系统为建筑节能和大尺寸隔热推拉门窗需求提供完美解决方案。同时为建筑师提供多样的解决方案包括不同形状的框、扇设计、多扇(2 至6 扇)组合、双色外观设计。
Characteristics
System test results / CE product pass in accordance with EN 14351-1:2006+A2:2016
Air permeability
Water tightness
Resistance to wind load
Acoustic Performance
Operating forces
Corrosion resistance of fittings
Quality assurance
Environmental management
Class 4
Class 7A
Class A3
RA,tr = 36 dB
Class 1
Class 4
Certified to ISO 9001:2008
Certified to ISO 14001
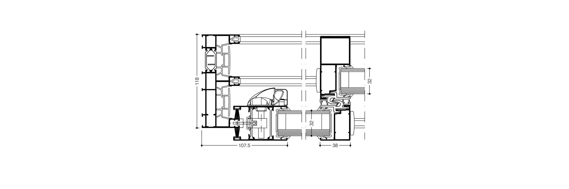
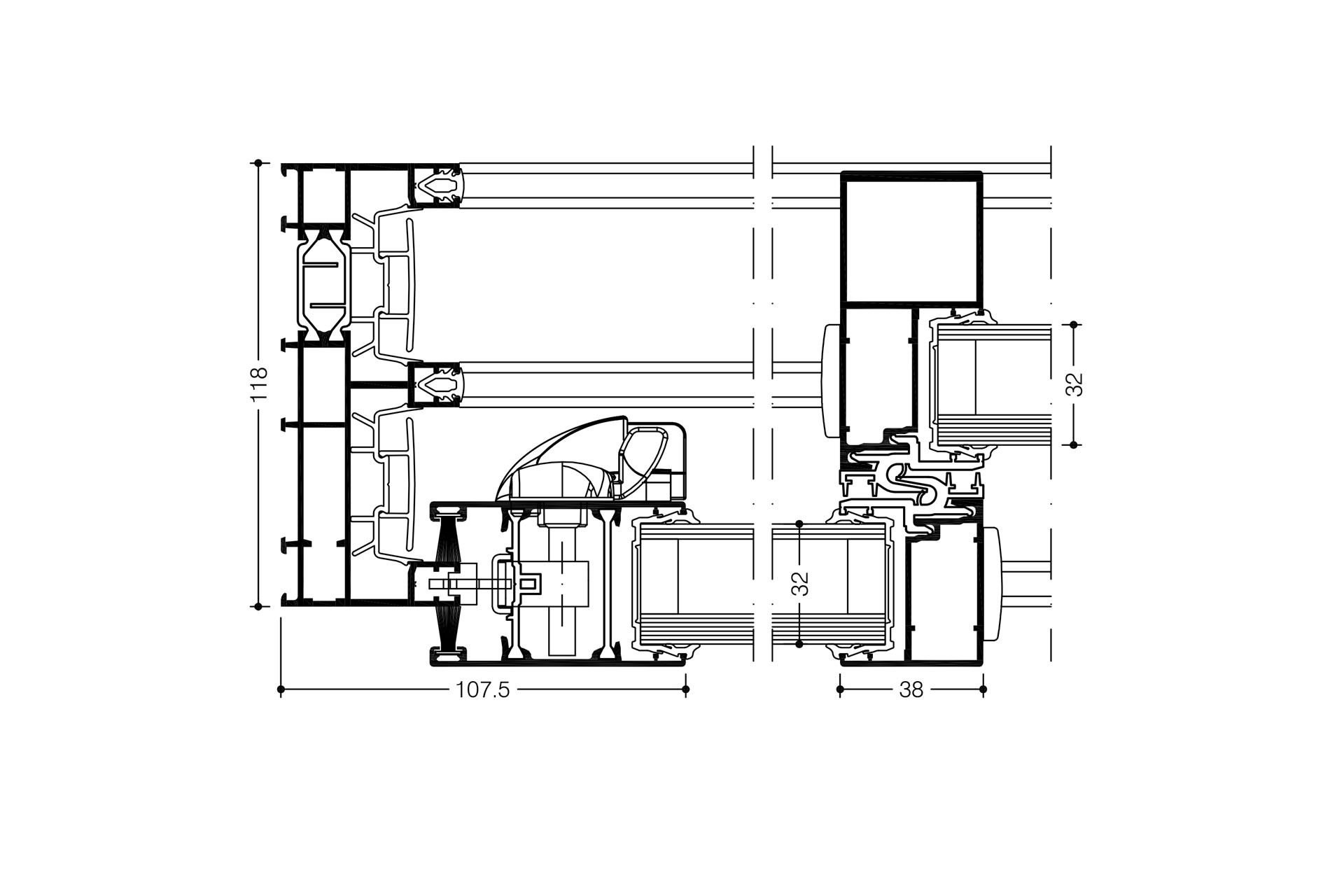
技术特点
Profile technology
- Sliding units with 65 mm construction depth (double-track) or 118 mm (triple-track)
- Two-, three-, four- or six-leaved application
- Patented corner connection technology for high component strength and reduced use of adhesive.
- Infill thicknesses: 24 mm, 28 mm or 32 mm
- Concealed or visible drainage
- Perpendicular leaf profile in different designs, straight or rounded
- Individually customisable profile connection technology
- Optional: Accessible threshold
Thermal insulation
- Uw up to 1.5 W/(m²K) with Ug = 1.0 W/(m²K)
Hardware
- Max. leaf weight with single rollers: 80 kg
- Max. leaf weight with double rollers: 220 kg
- Leaf sizes (w x h): up to 2400 mm x 2500 mm



