WICSTYLE 75 evo
WICSTYLE 65 evo/75 evo系列的门系统可以兼容其它威克纳的产品。其可与WICTEC幕墙系统和WICLINE窗系统组合使用:连接型材、盖条、密封件、角码和其他基本组件都是相同的。除了视觉的一致性,威克纳系统原理还可以实现精简库存和缩短制造加工时间——这是提高盈利的真正法宝。同时,地弹簧门的设计把损耗降至最低。
Characteristics
System test results / CE product pass in accordance with EN 14351-1:2006+A2:2016
Air permeability
Water tightness
Resistance to wind load
Acoustic Performance
Operating forces
Load bearing capacity of safety devices
Mechanical strength
Repeated opening / closing
Impact resistance
Behaviour between different climates
Burglar resistance
Quality assurance
Environmental management
Up to class 4
Up to 7A
Class C2
RW (C; Ctr) until 43 (–1; –4) dB
Class 2
Fulfilled
Class 3
Up to class 7 (500 000 cycles)
Class 1
Up to class 2(e) 2(d)
RC1N, RC2N, RC2, RC3
Certified according to ISO 9001:2008
Certified according to ISO 14001
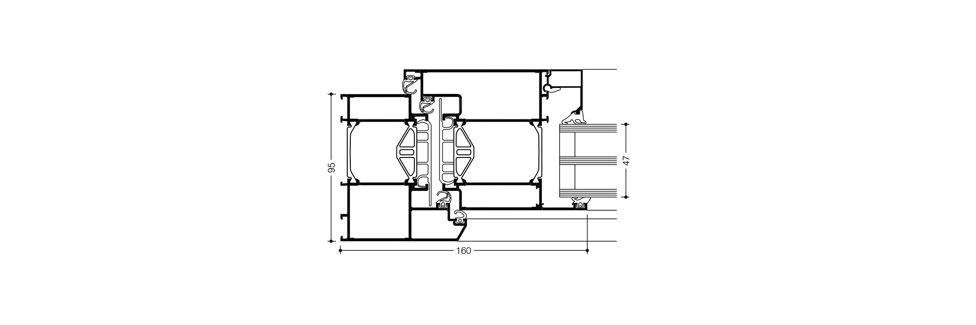
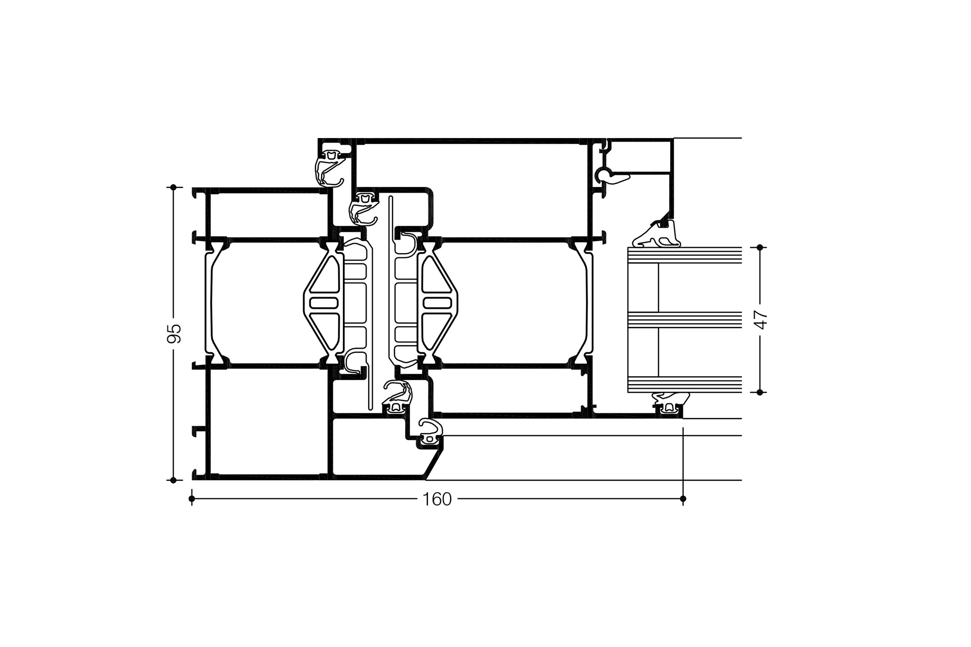
Technical performance
- High insulation multi-chamber system, quality assured thermal insulator connection
- For single and double leaf hinged doors
- For inward and outward opening
- For glass or panels with infill thickness from 3 mm to 76 mm
- Various threshold profiles with or without thermal break, also barrier free
- Fanlights, lateral glazings fixed or opening in combination with WICLINE evo window series
Thermal insulation
- Uf values: from 1.6 to 1.8 W/(m²K), without foam inserts
Hardware
- Butt hinge
- Screwed hinge
- Concealed hinge
- Leaf sizes (w x h): 1400 mm x 2520 mm
- Max. leaf weight: until 200 kg
Additional designs
- Double action doors
- Integration frame for stick façades
- Burglar resistance in classes RC1 to RC3


