WICSTYLE Hırsızlık koruması
Kişisel güvenlik ve bina koruması için projeninizin geneli ile bütünlük ve uyum sergileyen güvenlik sistemleri çözümüne ihtiyaç duyulmaktadır. Bunu WICONA serisi pencereler, giydirme cepheler ve kapılarla sağlayabilirsiniz. Sistemlerin her biri diğer özelliklerinin yanısıra hırsızlığa karşı koruma işlevi sunabilmektedir. Tüm WICSTYLE kapı serilerinde standart tasarım esas alınarak ve çok az sayıda ilave tedbir uygulanarak hiçbir görsel değişiklik olmaksızın çeşitli seviyelerde dayanım sınıfları sağlanabilmektedir.
Broşür
Sistem karakteristiği
Sistem test sonuçları / EN 14351-1:2006+A2:2016 uyumlu CE ürün pasaportu
Genel bilgi
İlgili WICSTYLE kapı serisi sınıflandırmasına bakınız.
Teknik performans
EN 1627 uyarınca hırsızlığa karşı koruma
Hırsızlığa karşı koruma için şu anda geçerli olan EN 1627 standartı, 2011 ve 2012 yıllarında Avrupa ülkelerinde yürürlüğe girmiştir ve önceki ulusal standartların yerini almıştır. Sınıflandırmalar, önceki WK1 ila WK3 sınıflarıyla özdeş olmayan RC1N ila RC3 sınıfları olarak değiştirilmiştir.
WICONA kapı serilerinin test sonuçları
- Çeşitli varyasyonlar içeren yeni WICSTYLE 65 ve WICSTYLE 75 serileri yeni EN 1627 standartına göre test edilmiştir. Bu yeni standarta göre herhangi bir ilave ölçüm gerektirmeden ilgili sistem kolayca seçilebilir veya uygulanabilir.
- Çift kanatlı panik kapıları RC3'e göre başarılı bir şekilde test edilmiştir
DIN EN 1627 / DIN 1627 standartlarına göre hırsızlığa karşı koruma
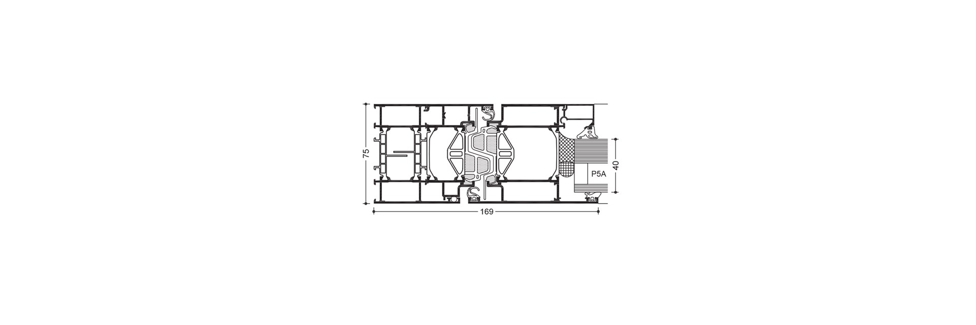
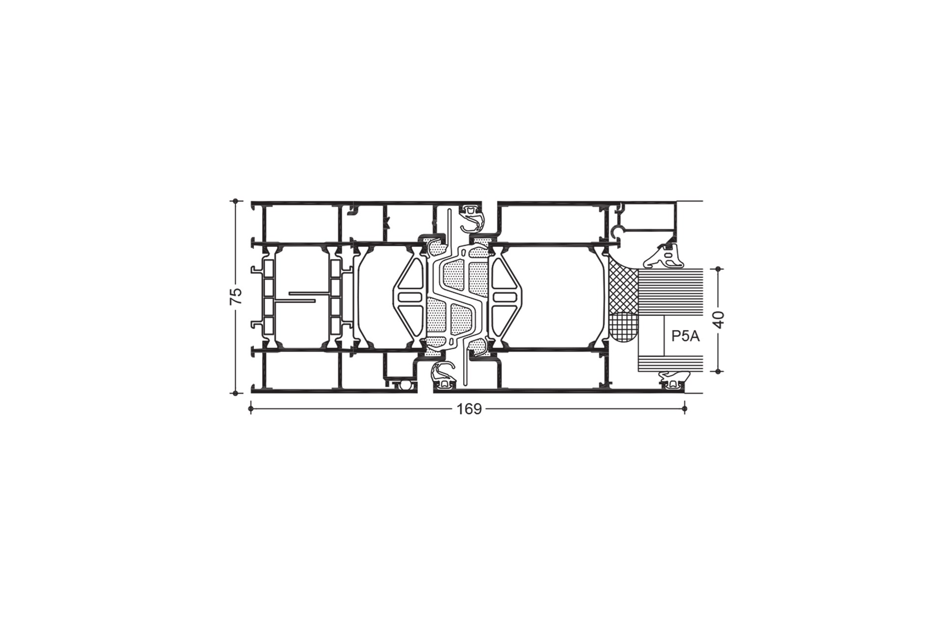
WICSTYLE 65 evo/75 evo Menteşeli kapılar
WICSTYLE 65 evo/ 75 evo Klasik tasarım
WICSTYLE 65N, Yalıtımsız
RC1N, RC2N, RC2, RC3
RC1N, RC2N, RC2, RC3
WK1, WK2


