WICLINE 65 evo/ 75 evo
Broşür
Sistem karakteristiği
Sistem test sonuçları / EN 14351-1:2006+A2:2016 ve DIN EN 13830 uyumlu CE ürün pasaportu
Teknik performans
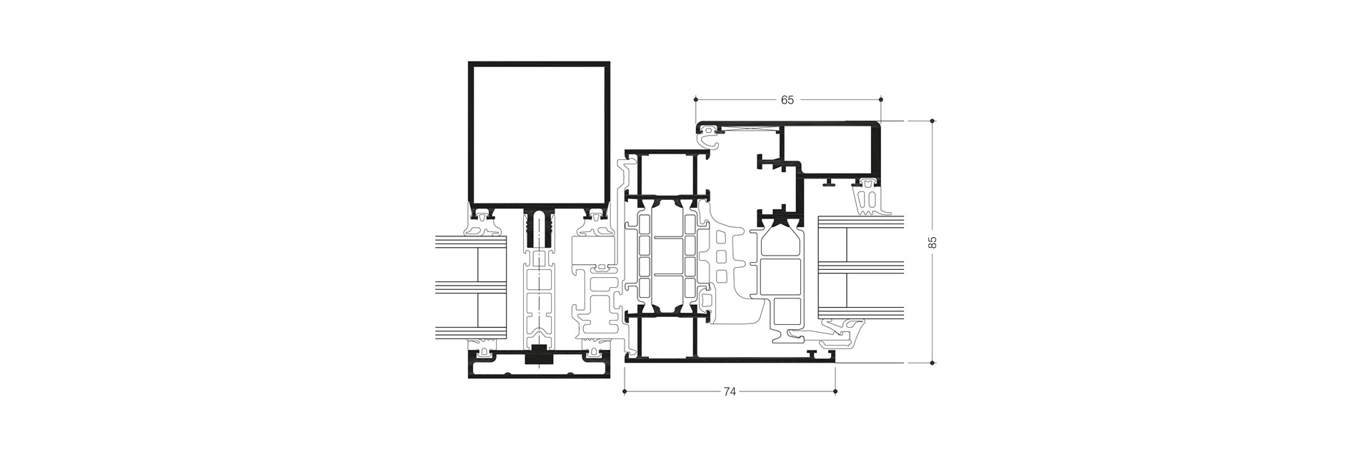
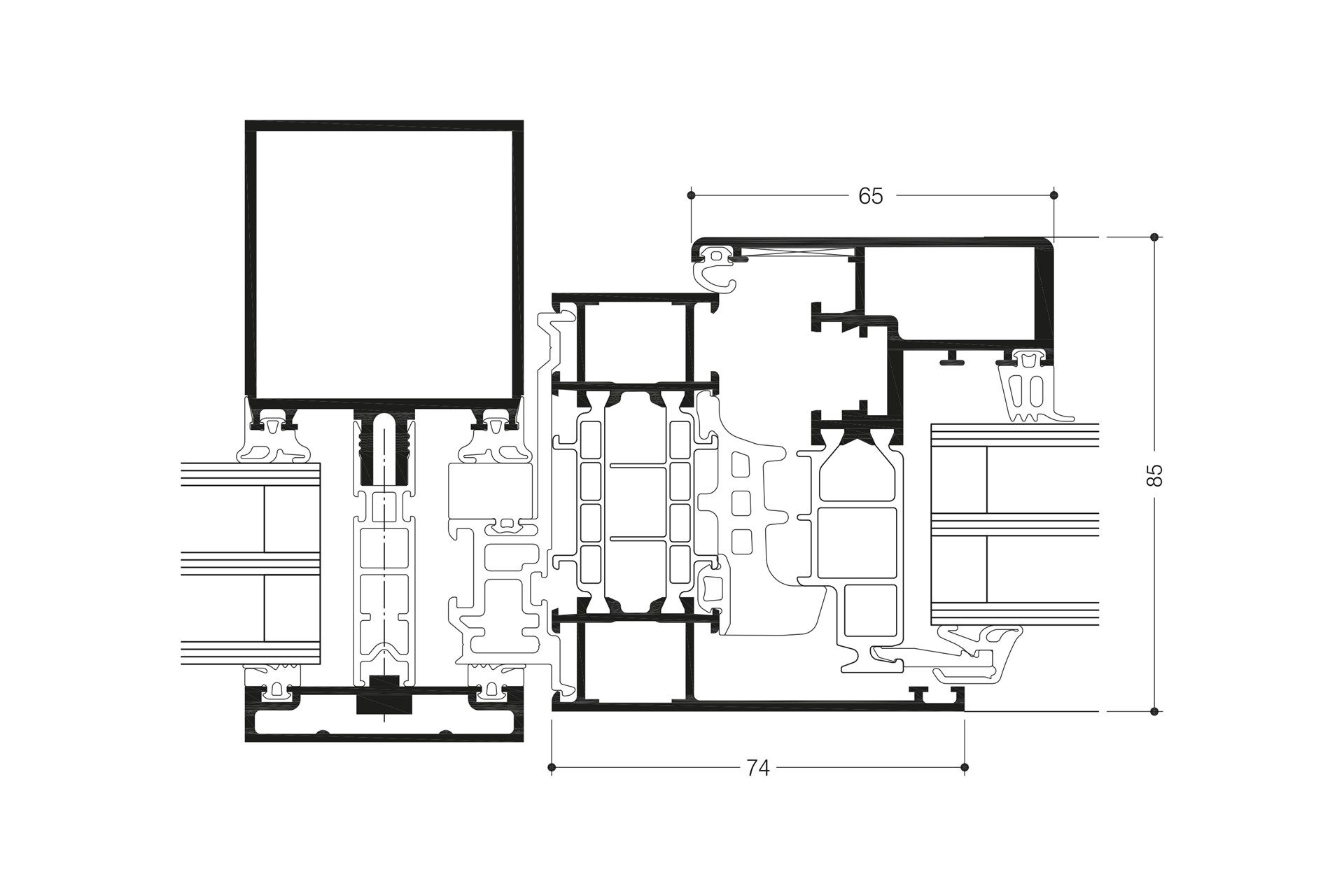
Profil teknolojisi
■Simetrik tasarımlı yüksek yalıtımlı çok odacıklı sistem, kalite güvenceli ısı bariyeri bağlantısı
■ Bileşenlerin yüksek rijitliği için patentli köşe ve alın birleşim teknolojisi
■ Camlama kalınlığı : 69 mm’ye kadar
Isı yalıtımı
İlgili pencere ve kapı serilerinin performans değerlerine bakınız
İçe açılım seçenekler
■Normal açılım / T&T / TBT
■Gizli kanat pencere
■Yatay pivot pencere
■Düşey pivot pencere
■Hırsızlık koruması
Donanım
■ Ağır cam mekanizması (Heavy duty):
-Tüm renklerde toz boya ya da eloksal yüzey işlemli görünür menteşeler
-Entegre konum sabitlemeli gizli menteşeler, maks. 105°
■Kanat ağırlığı:
-Gizli, çift eksen menteşe: 160 kg’a kadar
-Görünür, çift eksen menteşe: 200 kg’a kadar
-Normal açılım menteşe (özel çözüm): 300 kg’a kadar
■Kanat boyutları (G x Y): 1700 mm x 2500 mm
■Opsiyonel açılım sınırlandırıcı
Dışa açılım seçenekler
■Ters vasistas pencere
■Yandan menteşeli pencere
■İtalyan pencere
Donanım
■Ters vasistas ya da yandan açılım görünür menteşeler
■İtalyan açılım gizli menteşeler
■Kanat ağırlığı: 150 kg’a kadar
■Kanat boyutları (G x Y): 2000 mm x 2000 mm


