WICLINE 75 TOP
Broşür
Sistem karakteristiği
Sistem test sonuçları / EN 14351-1:2016+A2:2016 uyumlu CE işaretli ürün pasaportu
Teknik performans
Profil teknolojisi
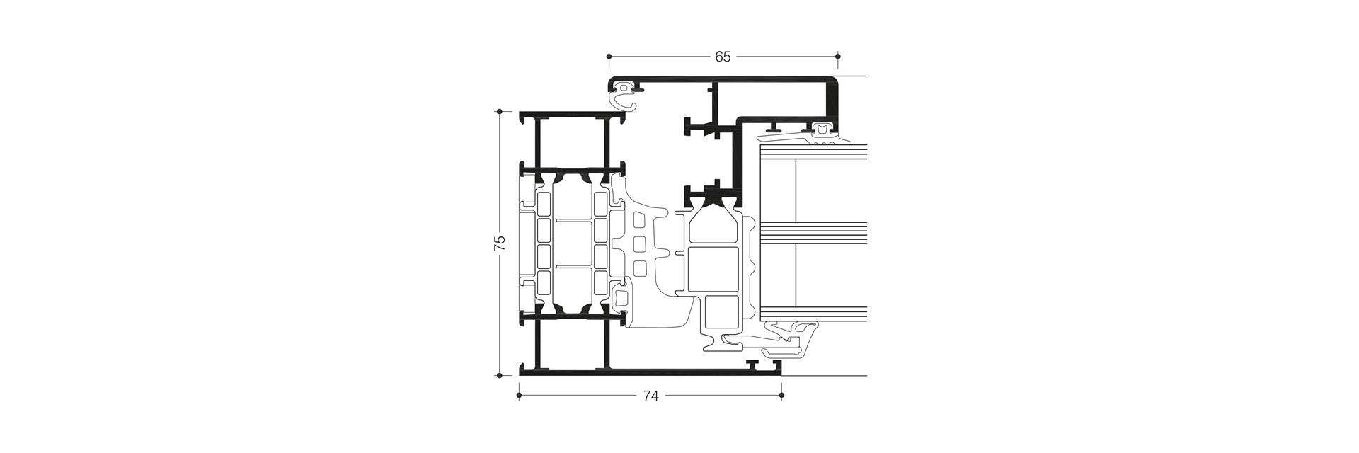
■ Pasif ev standartlarına uygun,kasa derinliği yalnızca 75 mm olan, ETC Intelligence® ısı bariyerli yüksek ısı yalıtımlı çok odacıklı sistem.
■ Bileşenlerin yüksek rijitliği için patentli köşe ve alın birleşim teknolojisi
■Camlama kalınlığı : 50 mm’ye kadar
Isı yalıtımı:
■ Sabit modüller için Uf değerleri : 0.97 ila 1.3 W/(m2K) ; dış ön görünüm hatları 48 ila 155 mm arasında
■ Kasa-kanat bileşimleri için Uf değerleri: 1,2 W/(m2K)’e kadar; dış ön görünüm hatları 74 ila 142 mm arasında
■Uw : 0,80 W/(m2K)’e kadar
Fitil konsepti
■ Üç farklı opsiyon sızdırmazlık fitili:
-Çerçeve formlu fitil,
-İlave yapıştırıcı gerektirmeyen köşe parçaları ile,
-Köşe vulkanize fitil
Donanım
■Gizli mekanizma. Opsiyonel:
-Tüm renklerde toz boya ya da eloksal yüzey işlemli görünür menteşeler -Entegre konum sabitlemeli gizli menteşeler, maks. 105°
■Kanat ağırlıkları: -Gizli menteşeler (maks): 130 kg
-Görünür menteşeler (maks): 130 kg
■Kanat boyutları (G x Y): 1300 mm x 2250 mm
■Opsiyonel açılım sınırlandırıcı
Sistem bileşimleri
WICLINE 75 TOP pencereler WICLINE 75 evo pencerelerle, WICSTYLE 75 evo kapılarla ve özel adaptörü sayesinde WICTEC giydirme cephe ile bir arada kullanılabilir


