WICTEC 50 Hőhídmentes alumínium függönyfal rendszer strukturális üvegezéssel
A WICTEC 50 SG strukturális üvegezésű függönyfal jellegzetessége az egy síkban megjelenő üvegezés, keskeny szilikon tömítéssel az üvegtáblák között. A rendszer egyaránt megoldást kínál függőleges síkú függönyfalakra és ferde síkú tetőkre. A standard WICTEC 50 rendszer alapjaira építve egyszerű, gazdaságos gyártást és összeépítést tesz lehetővé, ugyanakkor garantálja a magas minőséget. A teljes üvegezésű WICLINE 90 SG ablakok - emelkedő vagy
párhuzamosan kifele tolódó - beépítésével megmarad a homogén megjelenés.
Characteristics
System test results / CE product pass in accordance with DIN EN 13830
Air permeability
Water tightness
Resistance to wind load
Impact resistance
Approval
Quality assurance
Environmental management
Class AE
RE 750
2000 Pa, security ± 3000 Pa
Class E5 / I5
ETA: 12/0551
(European Technical Approval)
Certified according to ISO 9001:2008
Certified according to ISO 14001
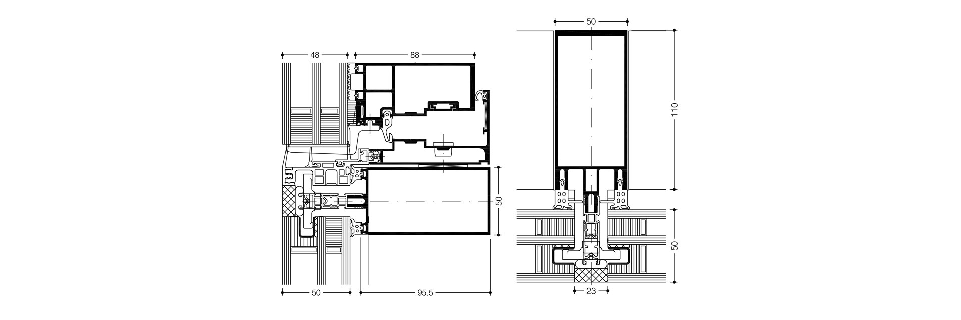
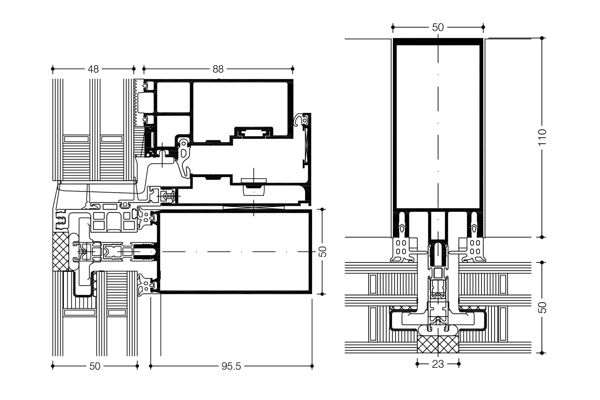
Technical performance
System width
Thermal insulation
Infill thickness
Internal aluminium profiles 50 mm / External silicone joint 23 mm
Uf up to 1.6 W/(m²K)
up to 64 mm
Rendszertechnológia
- Rendszertechnológia
- ETA engedély
- Kitűnő megjelenés
- WICTEC 50 függönyfal alapjai
Azonos profilokkal és tömítésekkel - Könnyű helyszíni üvegezés
- Egyszerű szerelés a szabadalmaztatott rögzítésnek
köszönhetően - Akár fél-strukturális kivitelben is
- Kiegészítő elem: WICLINE 90 SG ablak




