WICSTYLE Betörésállóság
Személyi biztonság és épületvédelem - az épületéhez megoldási megközelítésre van szükség, amelyet teljes és kompatibilis módon lehet megvalósítani az alumínium rendszerekkel. Ezt az ablakok, függönyfalak és ajtók WICONA sorozatával érik el. Mindegyik betörésállóságot nyújt, egyéb kiegészítő funkciókkal kombinálva.
A különféle ellenállási osztályok az összes WICSTYLE ajtósorozattal elérhetők, a szerkezet vizuális megváltoztatása nélkül, csak minimális kiegészítő intézkedésekkel, a szabványos kialakítás alapján.
Characteristics
System test results / CE product pass in accordance with EN 14351-1:2006+A2:2016
General Information
See classification of the respective WICSTYLE door series
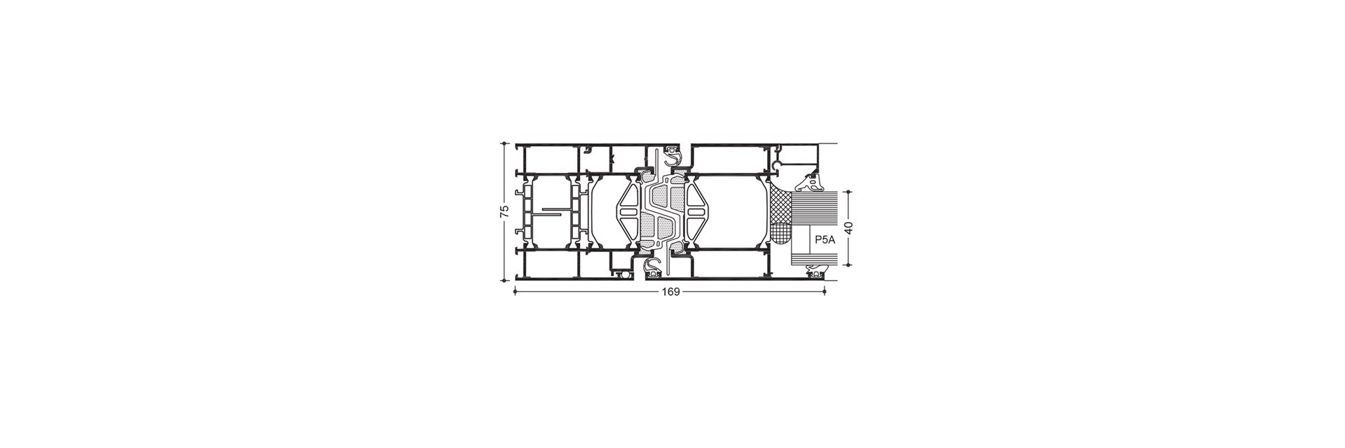
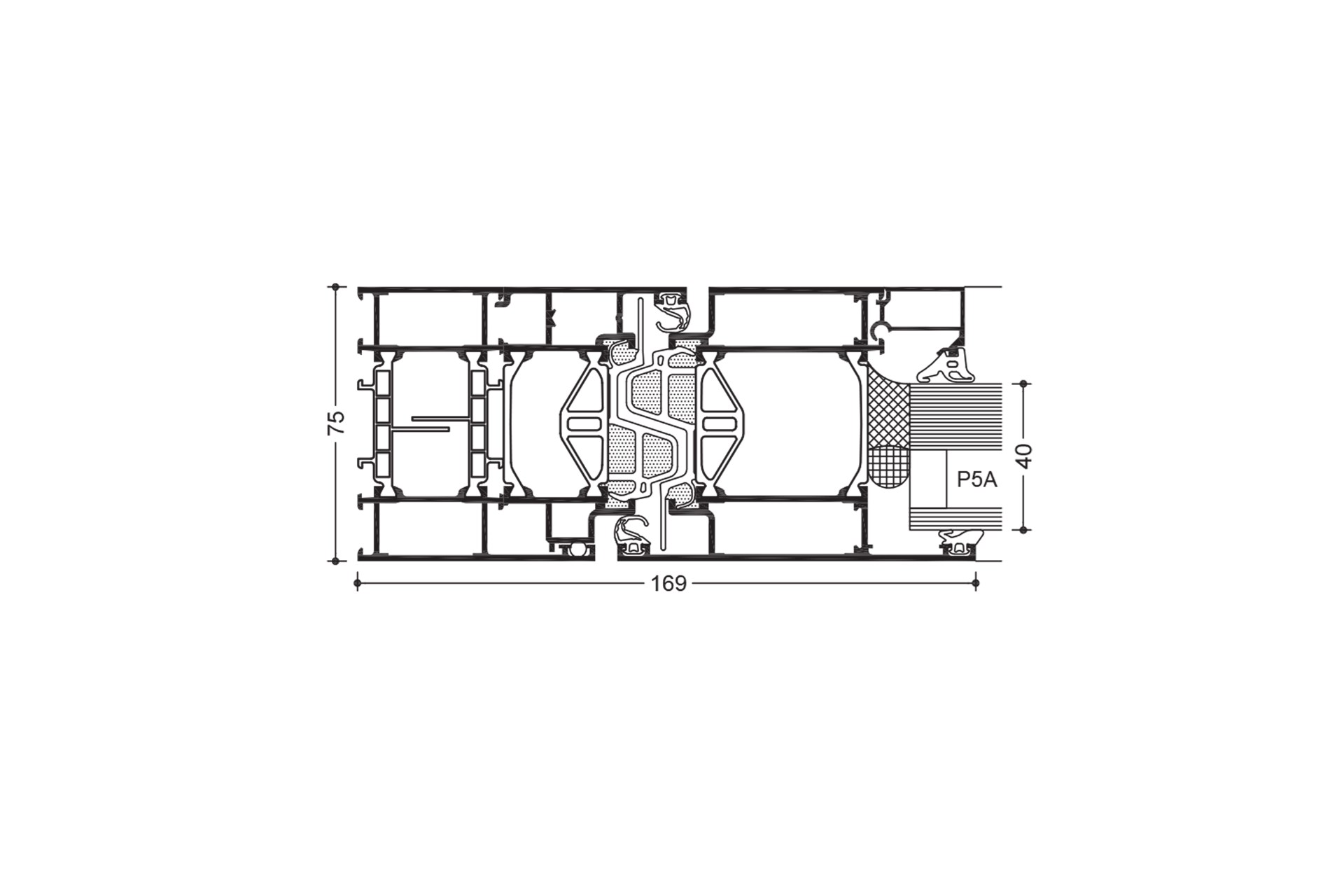
Műszaki teljesítmény
Betörésállóság a DIN EN 1627 szerint
- A betörésállóságra jelenleg érvényes szabvány, a DIN EN 1627 2011 és 2012-ben lépett hatályba az európai országokban. Ez felváltotta a korábbi nemzeti szabványokat. Az osztályozásokat az RC1N – RC3 osztályok módosították, amelyek nem azonosak a korábbi WK1 – WK3 osztályokkal, mivel a tesztszekvenciák megváltoztak.
A WICONA ajtósorozat vizsgálati eredményei
- A WICSTYLE 65 evo és a WICSTYLE 75 evo ajtósorozatokat számos változatban tesztelték az új DIN EN 1627 szabvány szerint. Könnyen meghatározhatók és kivitelezhetők minden további mérés nélkül az új szabvány szerint.
Burglar resistance according to DIN EN 1627 resp. DIN 1627 / classifications
WICSTYLE 65 evo / 75 evo Hinged doors
WICSTYLE 65 evo / 75 evo Classic design
WICSTYLE 65N, non-insulated
RC1N, RC2N, RC2, RC3
RC1N, RC2N, RC2, RC3
WK1, WK2


