WICLINE 65 evo/ 75 evo
Characteristics
System test results / CE product pass in accordance with EN 14351-1:2006+A2:2016 and DIN EN 13830
Technical performance
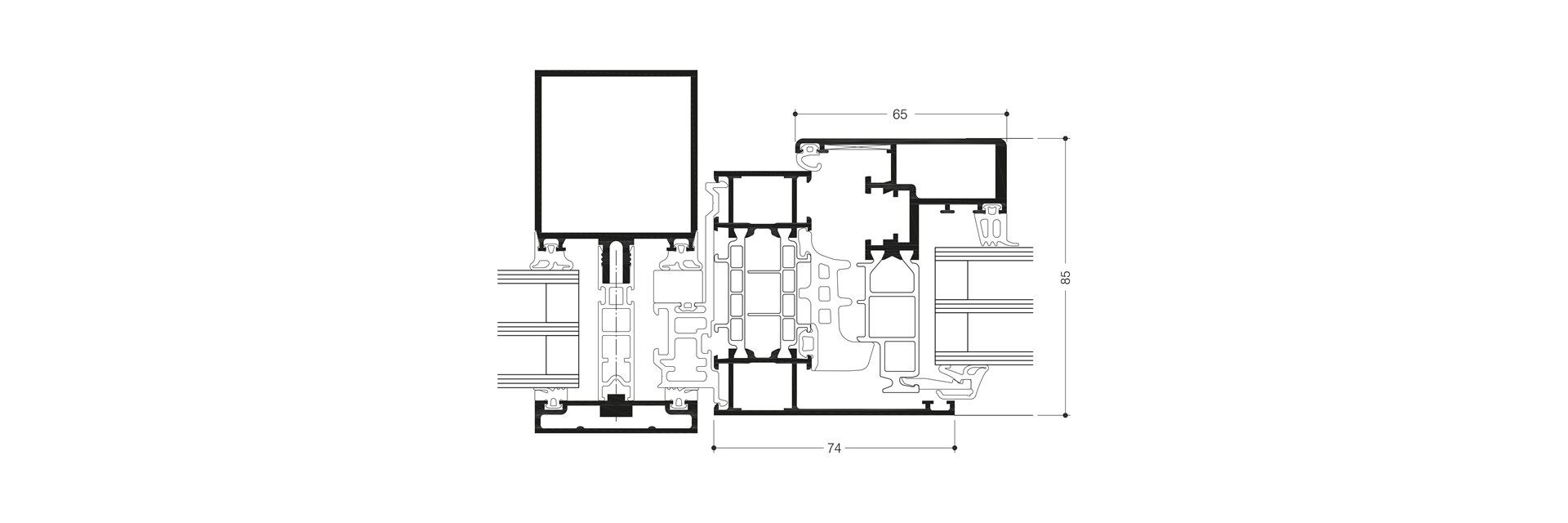
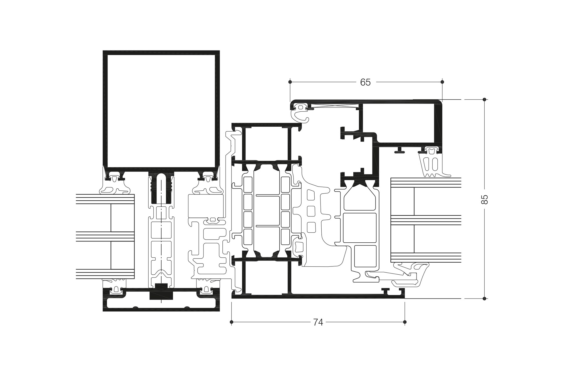
Profiltechnika
-
Nagy szigetelésű, többkamrás rendszer szimmetrikus kivitelben, minőségbiztosított hőszigetelő csatlakozás Szabadalmaztatott sarok- és fenékcsatlakozási technológia a keretek és szárnyak nagy merevségéhez A töltet vastagsága legfeljebb 69 mm
Hőszigetelés
-
Lásd az adott ablak és ajtó sorozat értékeit
Befelé nyílási lehetőségek
-
Ablak elforgatása / elfordítása / billenése
-
Rejtett szárny
-
Vízszintes forgóablak
-
Függőleges forgóablak
-
Betörésállóság
Hardver
-
Nagy teherbírású rendszer hardver:
-
Látható zsanérok, porbevonat vagy anódozás minden színben
-
Rejtett zsanérok beépített végállás csillapítással, nyitási szög max. 105 °
-
Szárny súlya:
-
Rejtett forgatható pántok: legfeljebb 160 kg
-
Látható, forgatható dönthető zsanérok: 200 kg-ig
-
Forgópántok (igény szerint): legfeljebb 300 kg
-
Szárny méretek (szé x ma): 1700 mm x 2500 mm
-
Opcionális nyitáskorlátozó
Nyitási lehetőségek kifelé
-
Kifelé emelkedő ablak
-
Kifelé nyíló ablak
-
Olasz ablak
Hardver
-
Látható zsanérok fent vagy oldalra függesztve
-
Rejtett zsanérok, olasz stílusú ablak
-
Szárny súlya: 150 kg-ig
-
Szárnyméretek (szé x ma): 2000 mm x 2000 mm-ig


