WICLINE 75 evo Hőhídmentes alumínium ablakrendszer
75 mm-es profilmélységével a WICLINE 75 evo ablakrendszer kiemelkedő hőtechnikai és szerkezeti paramétereket ér el. Magas műszaki teljesítményének köszönhetően ez ablak összhangban van a jövő építészeti elvárásaival. A WICLINE 75 evo az első fémablak, mely Svájcban a MINERGIE P minősítést megkapta.
Characteristics
System test results / CE product pass in accordance with EN 14351-1:2006+A2:2016
Air permeability
Water tightness
Resistance to wind load
Acoustic Performance
Operating forces
Load bearing capacity of safety devices
Mechanical strength
Repeated opening / closing
Corrosion resistance of fittings
Burglar resistance
Bullet resistance
Quality assurance
Environmental management
Class 4
E900
Class C5 / B5
Rw (C; Ctr) = 47 (–1; –4) dB
Class 1
Fulfilled
Class 4
Class 3 (20 000 cycles)
Class 5
RC1N, RC2N, RC2, RC3
FB4 S, FB4 NS (depending on the profile combination)
Certified according to ISO 9001:2008
Certified according to ISO 14001
Technical performance
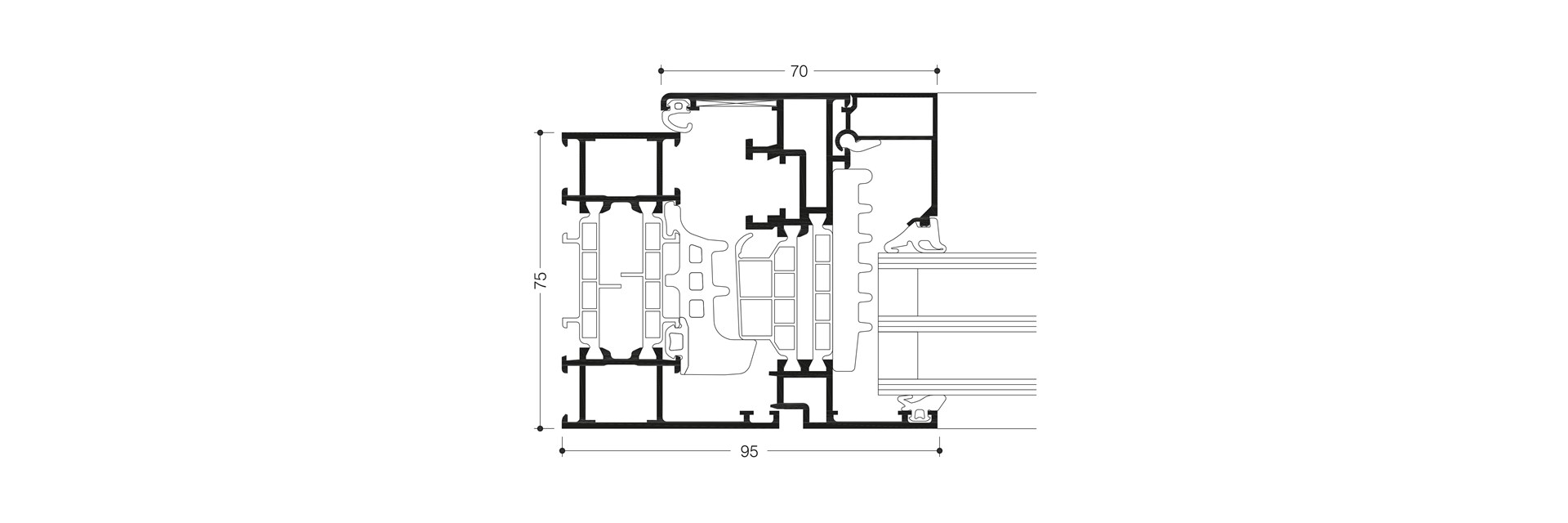
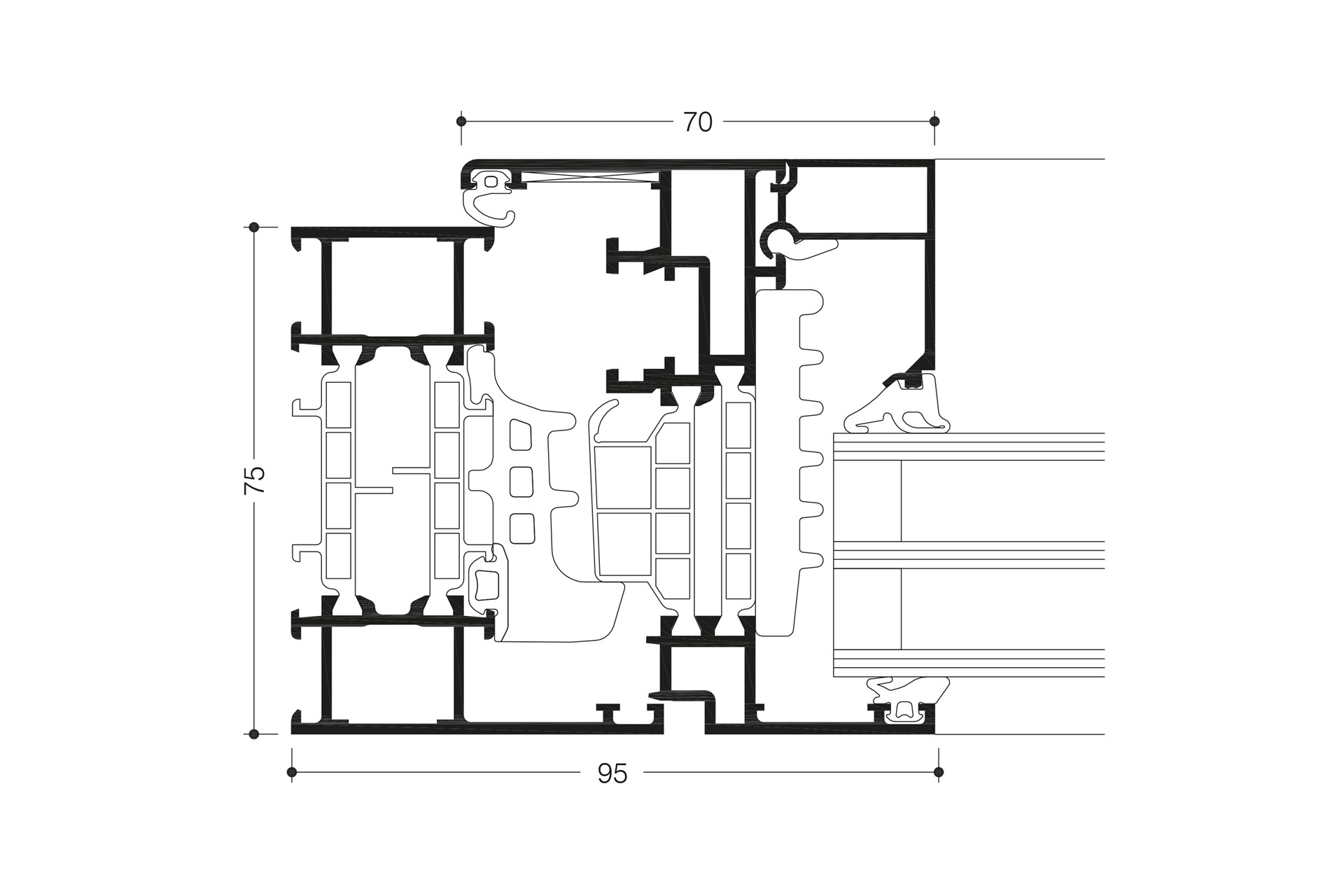
Profiltechnika
- Magas hőszigetelésű többkamrás, szimmetrikus
rendszer, minőségbiztosított profilegyesítéssel - Szabadalmaztatott sarok - és bordabekötési
technológiával - Befogható panel- vagy üvegvastagság max. 69mm
Hőszigetelés
- Uf érték: akár 1.2 W/(m²K)
- Uw érték: akár 0.87 W/(m²K) szárnyprofilokkal vagy 0.72
W/(m²K) fix kialakítással, háromrétegű üvegezéssel - Minősített Minergie P module Uw 0.8 W/(m²K)
Tömítési rendszer
- Erőteljes központi tömítés három beépítési technikával:
- Körbefutó gumitömítés, megszakítás nélkül a sarkokon
- Vulkanizált sarokelemekkel
- Vulkanizált keretekkel
Vasalat
- Nagy teherbírású vasalatok:
- Látható pántok festett vagy eloxált kivitelben
- Rejtett pántok, végállás csillapítóval, max. nyitási szög 105 fok
- Szárny súly:
- Rejtett pántok: 200 kg-ig
- Látszó pántok: 200 kg-ig
- Egyedi kialakítás: 300kg-ig
- Szárny méret (sz x m): 1700 mm x 2500 mm
- Igény szerint nyitáshatárolóval
További lehetőségek
Additional designs
- Rejtett szárny
- Klasszik design
- Függönyfalakba integrálható
- Felülvilágítók kézi vagy motoros működtetéssel
- Forgó ablak, vízszintes vagy függőleges tengellyel
- Bukva-toló kialakítás
- Emelkedő és süllyedő-emelkedő ablak
- Akadálymentes erkélyajtók egy- vagy kétszárnyú kivitelben, kifele vagy befele nyíló szárnyakkal
Compatible with the door series WICSTYLE 65 evo and WICSTYLE 75 evo
Compatible with the door series WICSTYLE 65 evo and WICSTYLE 75 evo


