WICSTYLE 65 NG - Portes simple action à ouverture inversée
Les portes simple action à ouverture inversée simplifient le passage puisqu'il suffit de pousser pour entrer et sortir
Performances techniques
Résultats d'essais du système / produit avec certification CE conforme à la norme EN 14351-1:2006+A2:2016
Perméabilité à l’air
Étanchéité à l'eau
Résistance au vent
Performance acoustique
Résistance aux chocs
Résistance mécanique
Capacité de résistance des dispositifs de sécurité
Efforts de manœuvre
Ouvertures / Fermetures répétées
Jusqu'à classe 4
Jusqu'à 7 A
Classe C2
Rw (C; Ctr) = 43 (–2; –5) dB
Classe 1
Classe 3
OK
Classe 2
Classe 8 (1 000 000 cycles)
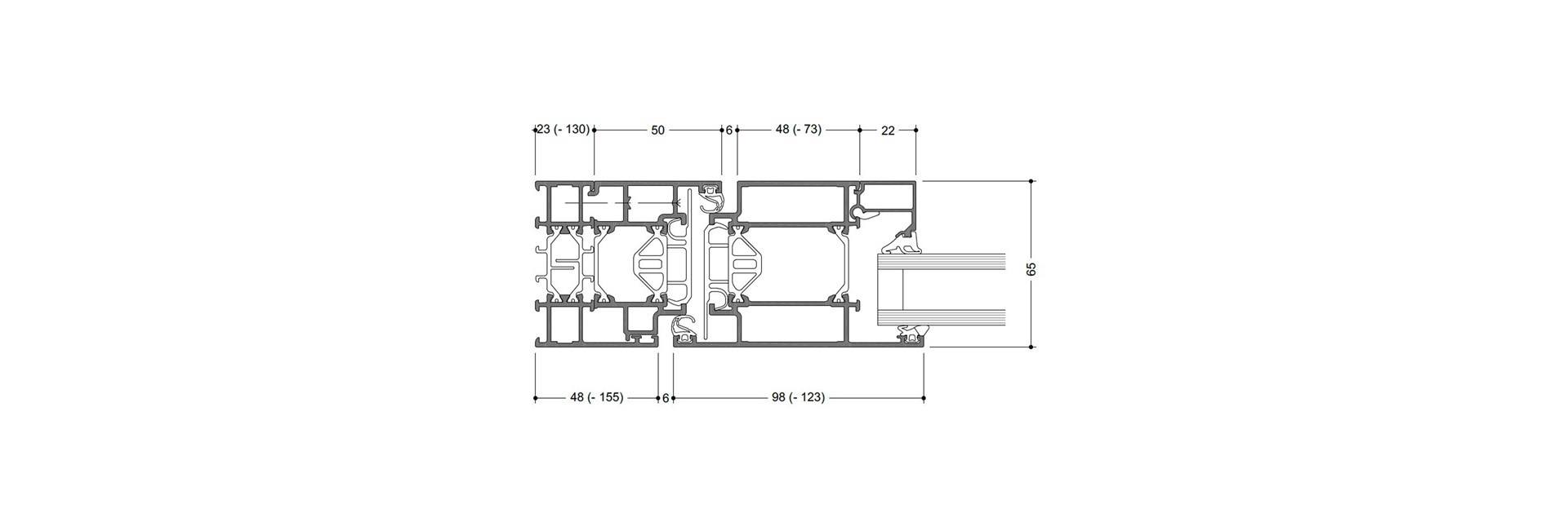
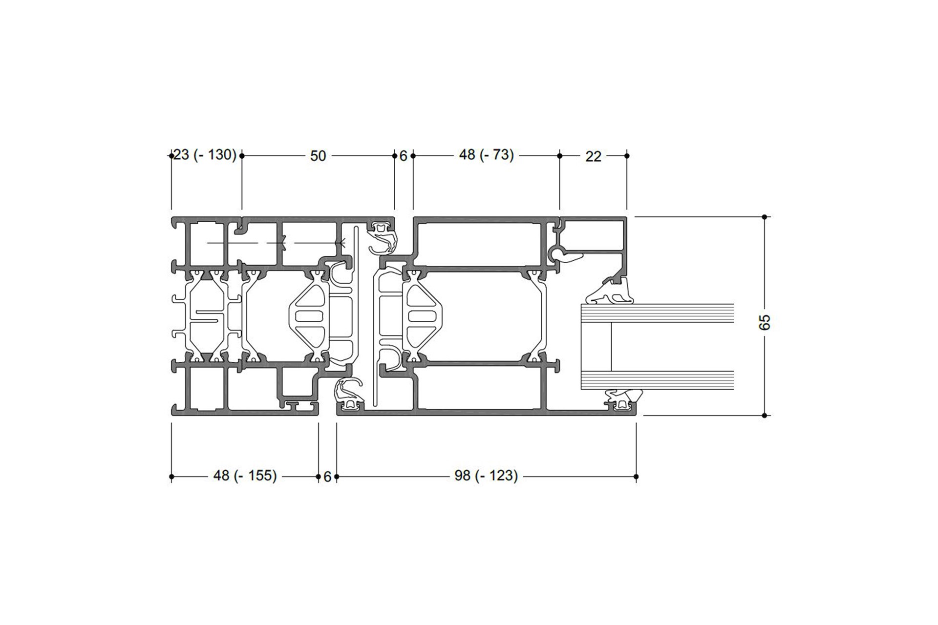
Caractéristiques
Technologie du système
-
Portes battantes à deux vantaux dont un vantail s'ouvre vers l'intérieur et l'autre vers l'extérieur
-
Portes pleines ou vitrées, avec un remplissage de 3 à 50 mm
-
Ensembles menuisés, avec fixes ou ouvrants latéraux
Caractéristiques des profilés
-
Dormants de 48 à 225 mm
Quincaillerie
-
Paumelle à clamer en aluminium et inox
-
Paumelle en applique
-
Paumelle cachée
-
Dimensions de vantail (l x h) : jusqu'à 1 200 x 2 300 mm
-
Poids max. vantail : jusqu'à 200 kg
Applications complémentaires
- Profilés d'intégration pour façades
Applications



